新手小白,求大神指导

2020-10-14/ 户型方案/ 户型交流/ 只看大图 阅读模式
仅供分享不做任何商业用途,版权归原作者所有,谢谢配合。

马上注册,结交更多好友,享用更多功能,让你轻松玩转社区。

您需要 登录 才可以下载或查看,没有帐号?注册

x
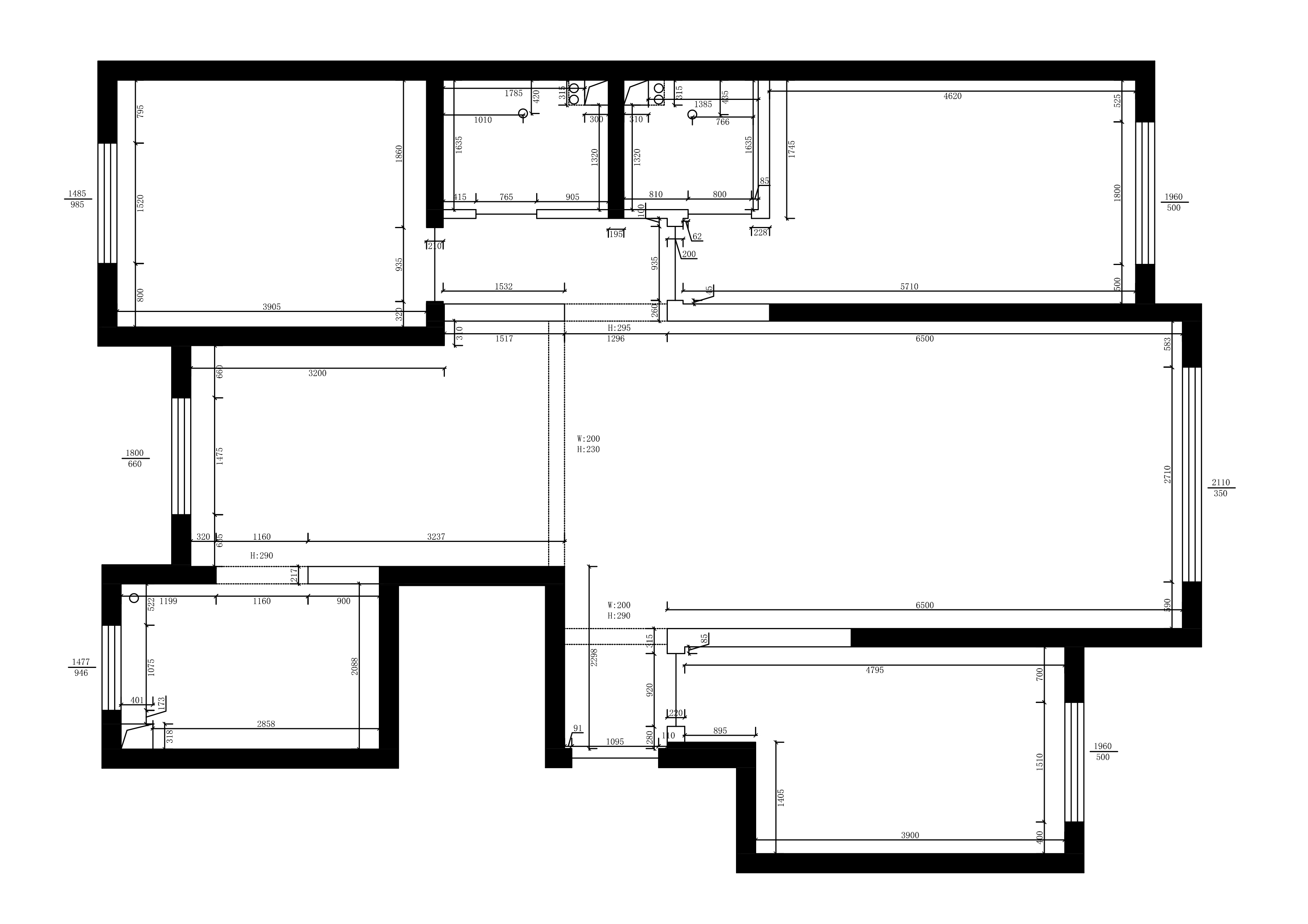
大神们给看看,玄关太窄,鞋柜没地方放,厨房小,冰箱能不能放下,两个卫生间都小,想要淋浴房,洗衣机不知道放那,从那块儿能划分出个晾衣区。卧室的衣柜能不能大点儿?
wowowowo.jpg

 

精华推荐
换一换

发表评论2

新手小白,求大神指导
拓者推荐
  • 【广州站】设计师创业课
  • 【广州站】收纳设计思维训练营
  • 【广州站】户型优化总监内训课
  • 【广州站】 风水丨设计与签单课
  • 【广州站】获客实操训练营
  • 2025拓者年费+案例Vip会员说明!
  • 【 拓者年费--CAD图纸】
  • 【 拓者年费--户型方案】
  • 【 拓者年费--豪宅视频】
  • 【 拓者年费--灵感图库】