这户型哪边朝南呀

2020-10-20/ 户型方案/ 户型交流/ 只看大图 阅读模式
仅供分享不做任何商业用途,版权归原作者所有,谢谢配合。

马上注册,结交更多好友,享用更多功能,让你轻松玩转社区。

您需要 登录 才可以下载或查看,没有帐号?注册

x
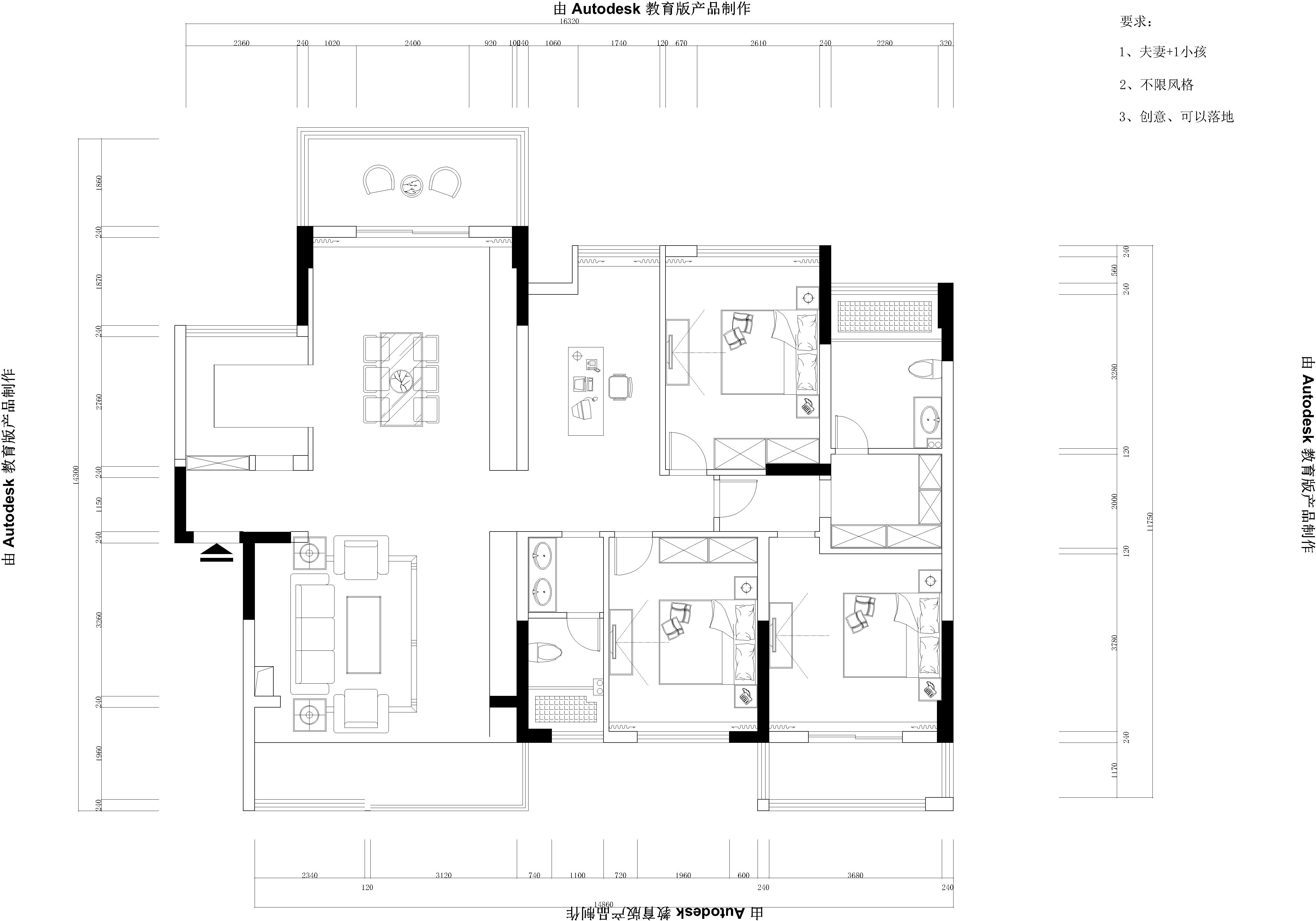
拿到这个户型图第一感觉分不清楚方向啦,感觉主卧带内卫应该是南边吧,夫妻居住,一个小孩,保证两个房间要朝南吧,做的大气一些,房间数量肯定可以不用这么多,各位大佬,有比较有创意大气的建议吗。





原建筑平面

原建筑平面

家具布置平面

家具布置平面

 

精华推荐
换一换

发表评论1

这户型哪边朝南呀
拓者推荐
  • WSD世尊新作-南京顶级别墅
  • 苏州绿城越溪合院330样板间方案
  • 召禾邵程设计-上海徐汇绿城潮鸣东方
  • 杭州法式500户型合院别墅方案
  • 比佛利山庄1亿美元的豪宅!
  • 2025拓者年费+案例Vip会员说明!
  • 【 拓者年费--CAD图纸】
  • 【 拓者年费--户型方案】
  • 【 拓者年费--豪宅视频】
  • 【 拓者年费--灵感图库】