本帖最后由 橘.设计 于 2020-11-25 15:44 编辑
一首沁园春 · 雪可见心中豪情, 一首两柜累累藏酒现予不拘格律, 典雅茶桌增添三分庄重, 文房四宝更显雅致儒风。 任何一种室内装饰风格背后,对应的是一种文化观念,一种生活方式,以此来传递特定文化氛围中人们的生活追求 雨醉东风
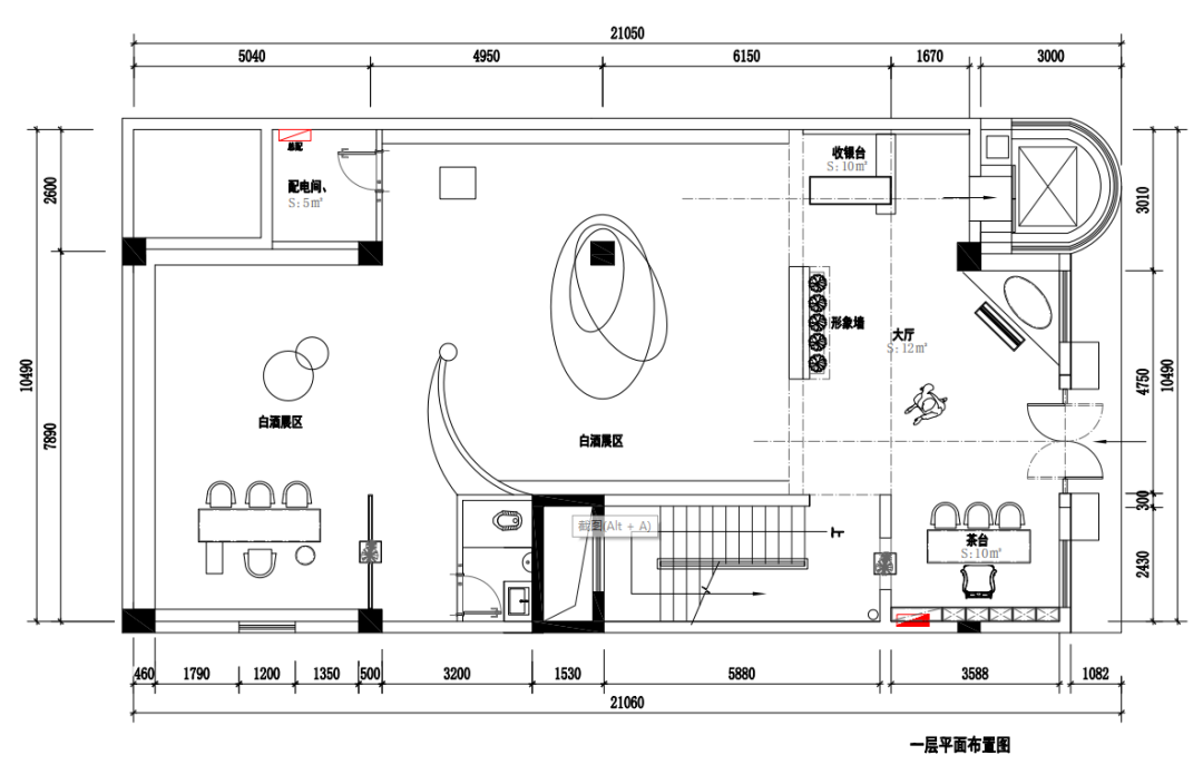
一楼大厅,是现代的时尚工艺与传统中式文化元素相结合,中式的灵魂的在现代的工艺环境中,得到一种疏阔轻朗的气质,让空间的变化性更强 古朴严谨又可得自在,不论休闲或商务洽谈,从大厅入口都能营造一方亲切随和,休闲惬意的空间
醉卧墨林
走廊处遵循对称美,放置一幅《沁园春·雪》,用肆意书写的古墨书法,结合中国传统“圆”的元素,更强调意境,只可意会,不可言传 信步走过,俯仰皆有美景入心,悠然自得不复言
且醉风吟
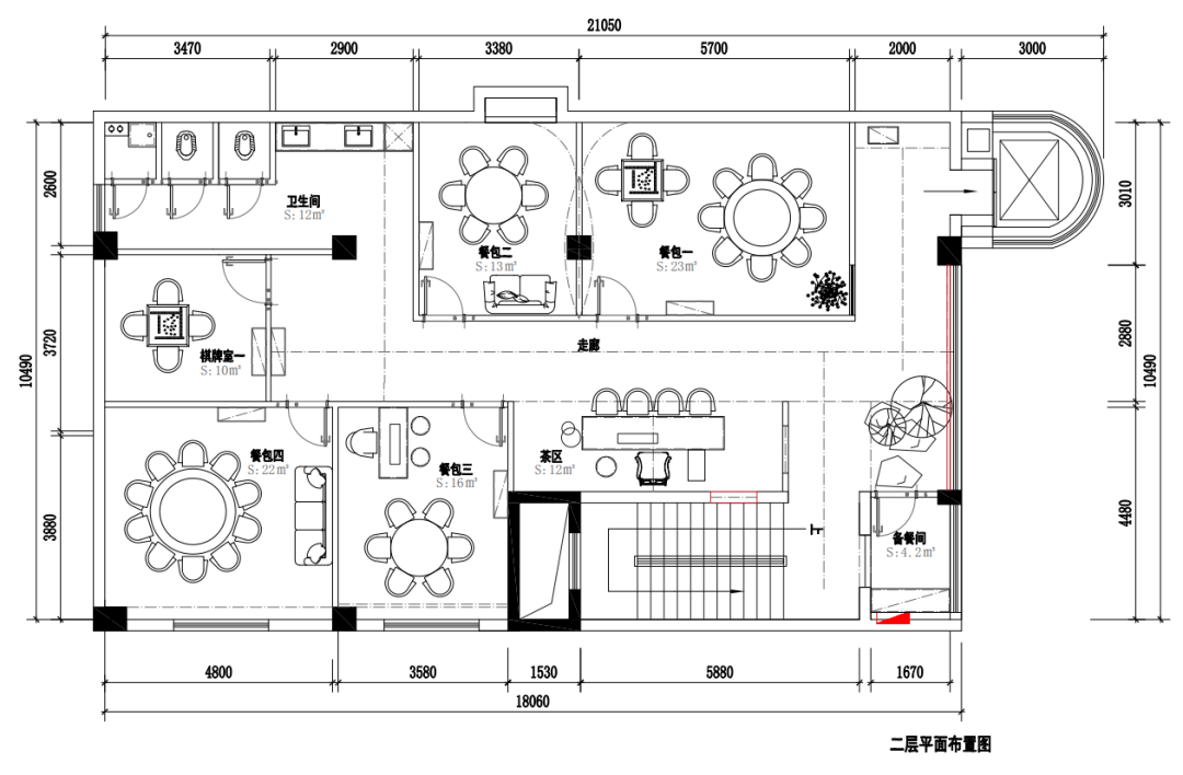
包间使用较为柔和的灯光来装饰,给予人一种"隐私性"和温馨之感,而中式特有的气韵,也在特定的光和背景下更显大气精妙 营造舒心愉悦、宾至如归的和谐气氛,令人产生愉悦的心情
盏茶抿醉 茶室呼应中国特有的意境,布置幽静,感观舒适 远景看,整座茶室仿佛一幅传世的水墨国画
醉花荫
来到过厅,用简单院景来修饰“留白”之美 右手边可步步赏“飞阁流丹”,左手边能施施而行看“庭景深深”,融合了“庄重”与“优雅”双重气质
中式风拥有难以替代的设计之雅,设计之曲,设计之趣。深邃和妙境,是中式风历史悠久,流行更古不歇的原因。 项目地址 / 河 南 许 昌 设计机构 / 聚 合 设 计 设计负责人 / 翟 刚 设计时间 / 2 0 2 0 . 3 完工时间 / 2 0 2 0 . 1 0 项目面积 / 5 0 0 平 方 摄影机构 / 晟 苏 建 筑 摄 影 |
精华推荐
换一换




很好喜欢喜欢