求大神帮忙看看方案,联排别墅。跪求

2020-12-2/ 户型方案/ 户型交流/ 只看大图 阅读模式
仅供分享不做任何商业用途,版权归原作者所有,谢谢配合。

马上注册,结交更多好友,享用更多功能,让你轻松玩转社区。

您需要 登录 才可以下载或查看,没有帐号?注册

x
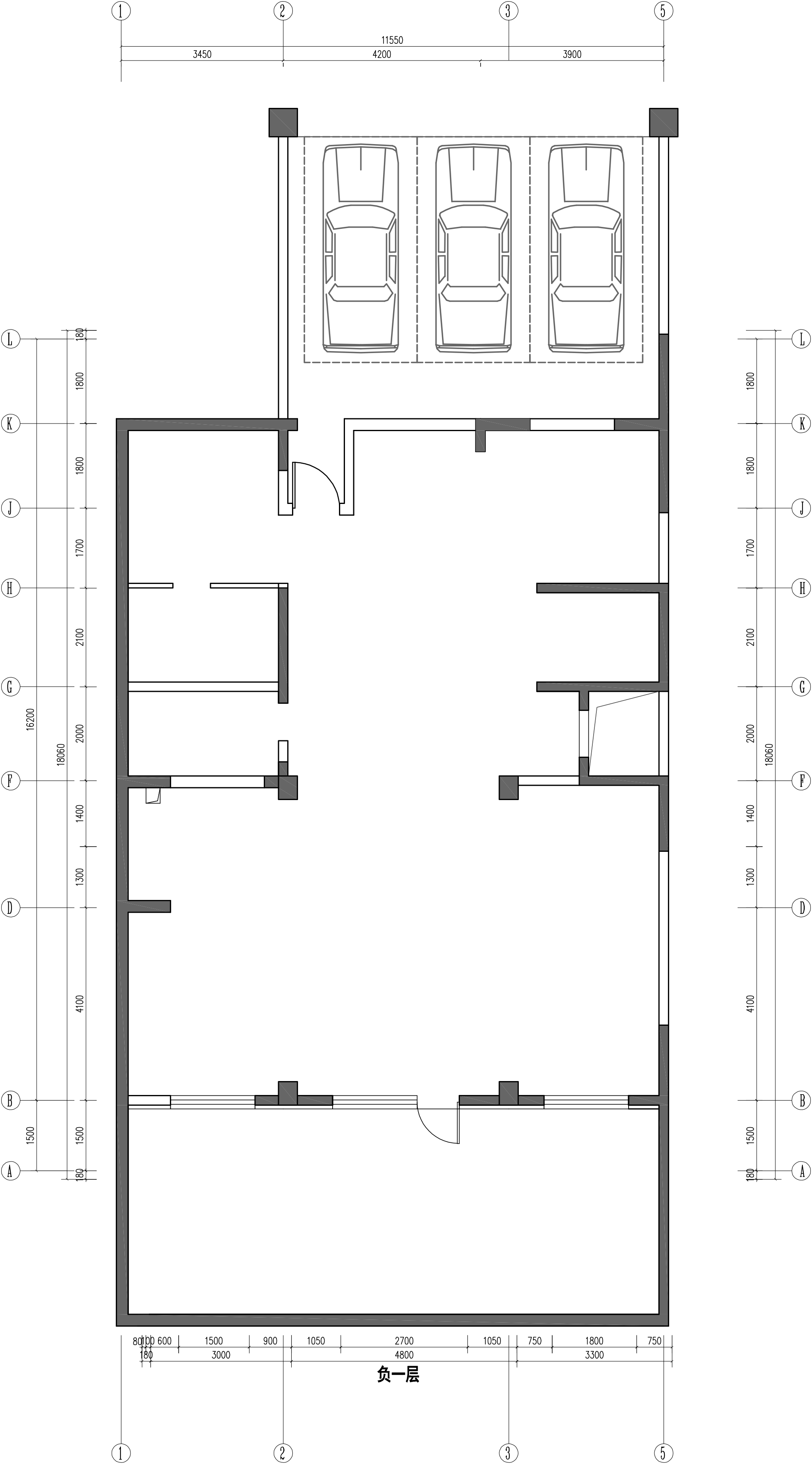
要求 负一层:会客  、休闲、写字  、考虑一个健身或者桌球的功能。  负一层夹层:保姆房、储衣间      。 一层:会客、餐厅,两面房间两个老人各一间。  
二层:两个小孩两个卧室,女儿房就是有个室外平台的那个,放一个古筝。   三层:主卧、书房、储衣间。书房以孩子写作业为主。
1.层.jpg
-1层.jpg
二层.jpg
三层.jpg

 

精华推荐
换一换

发表评论1

求大神帮忙看看方案,联排别墅。跪求
拓者推荐
  • 2026拓者 CAD户型方案 发布
  • 赛拉维:安顿生活的栖心之境
  • Atelier MKD|极简主义风格!
  • 东莞保利首铸鹭湾185样板间!
  • 【梁志天】西安曲江·九曲松间
  • 无间-上海汤臣君品合院方案
  • 君品-汤臣金桥花园项目方案
  • 无间-上海大宁中建玖上琅宸
  • HWCD-烟台洲際酒店深化方案图册
  • 琚宾新作-资兴东江湖度假酒店
  • 2025拓者年费+案例Vip会员说明!
  • 【 拓者年费--CAD图纸】
  • 【 拓者年费--户型方案】
  • 【 拓者年费--豪宅视频】
  • 【 拓者年费--灵感图库】