|
本帖最后由 漪天设计 于 2020-12-5 00:51 编辑 梦 想 给 予 我 们 力量 我 们 在 时 间 里 不 停 地 逐 梦 愿 归 来 之 时 我 们 仍 是 少 年
每个人的童年,都有一个关于太空的梦想,或穿梭于时空隧道,或漫步在云端之上。我们对未来充满渴望、对自由充满向往。而这一切美好的愿望,都将伴随入口的太空粒子,引领你前往记忆深处的童年。 时 空 之 旅
圆圈造型的炫彩艺术装置仿佛是时空轨迹,交错、盘旋。阳光透过灯带投影在墙上,五彩斑斓,如梦如幻。行走在其中,仿佛穿梭在时空隧道之中,感受科技的神秘力量。
光影与金属,呈现着神秘的科幻力量。这里有着成人才有的风度与气质,但灵魂里却还揣着一颗未泯的少年之心。
梦 想 领 航 员 “云端”,是科技发展的新产物。充满梦幻感的“云端”主题空中雕塑,在阳光的折射下,电镀炫彩材质的颜色酷炫多变,科幻神秘,以此致敬科技的发展,表达对太空探索的渴望。 围绕雕塑的,是书墙与太空场景微缩装置。“知识改变世界”,骏骏宇航员在此,带领大家探索这个宇宙的未解之谜,重拾儿时太空梦。
镜面装置在一片安逸静谧中,流淌神秘蓝光,这是时间隧道的出口,梦从中来。
太 空 旅 行 对于孩子们来说,这不只是个游乐场,也是一段太空旅行的开始。梦想只要能持久,就能成为现实。我们不就是生活在梦想中的吗?
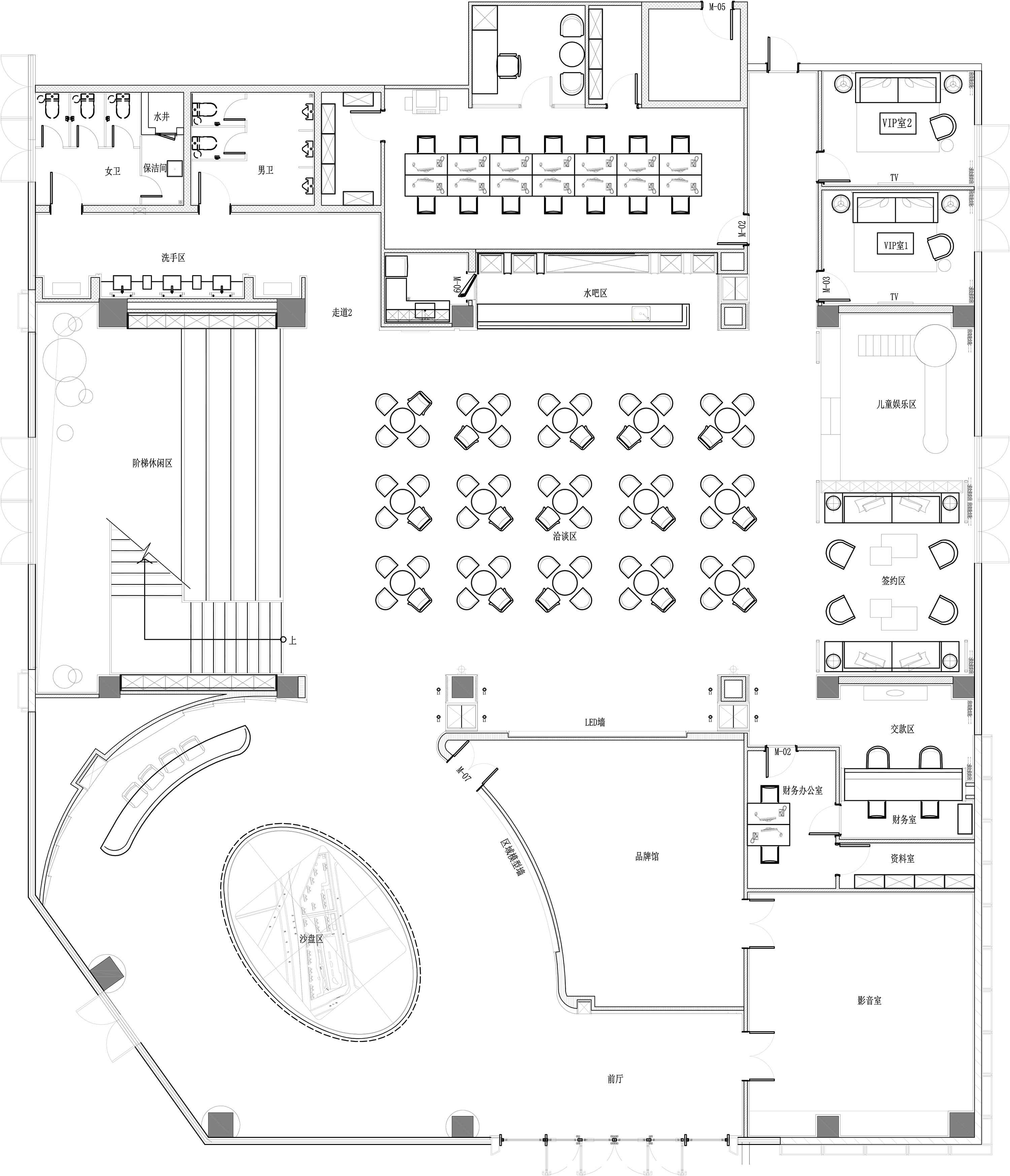
平面图▼
项目名称 | 铜川·中骏世界城售楼处 业主信息 | 中骏置业 项目地点 | 陕西省铜川市 项目面积 | 680㎡ 完成时间 | 2020年10月 设计单位 | 厦门市漪天装饰设计有限公司 设计团队 | 林艺芬 吴舒兰 何丹 |
精华推荐
换一换


发表评论0