新手上路,抛砖引玉,希望各位大佬给点意见,谢谢

2020-12-6/ 户型方案/ 户型交流/ 只看大图 阅读模式
仅供分享不做任何商业用途,版权归原作者所有,谢谢配合。

马上注册,结交更多好友,享用更多功能,让你轻松玩转社区。

您需要 登录 才可以下载或查看,没有帐号? 注册

x
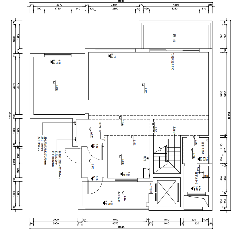
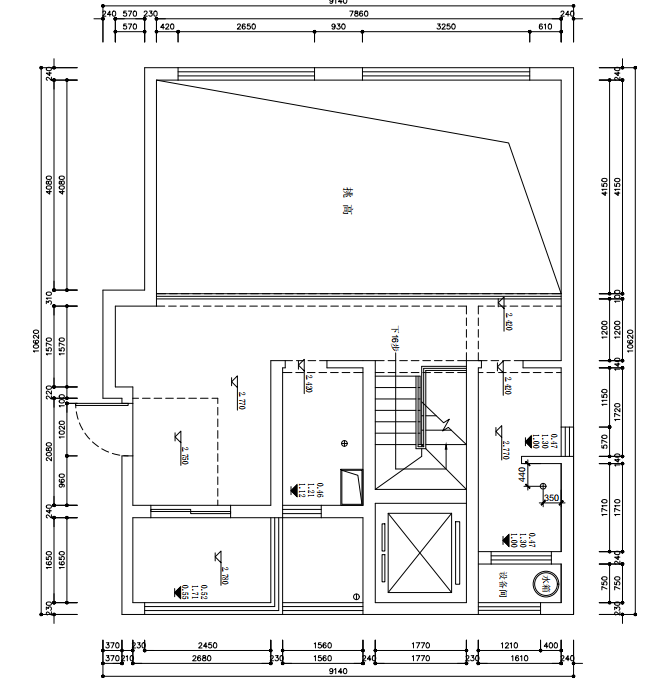
本帖最后由 1600794057 于 2020-12-6 09:49 编辑

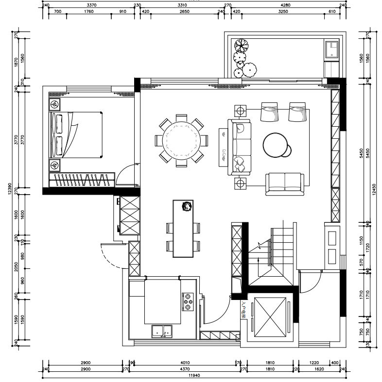
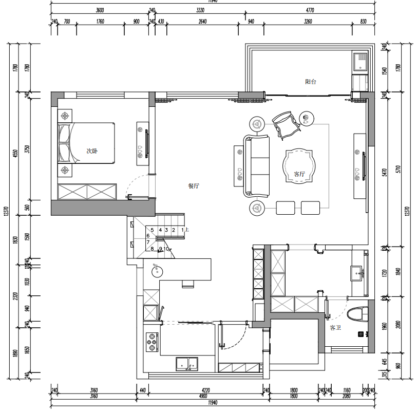
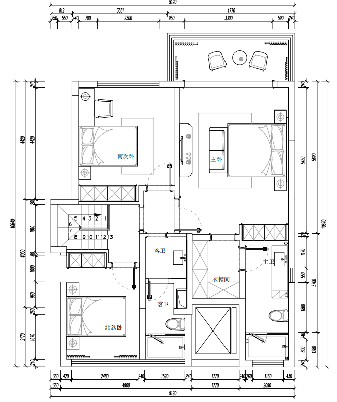
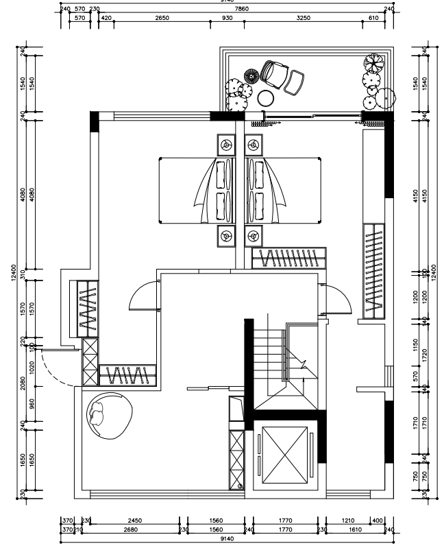
一楼需要老人房 ,二楼男孩加主
人 二楼只要一个卫生间 男孩高
三喜欢电脑游戏拍视频发B站(一楼卫生间放空调室外机 二楼全部给男孩,父母去下面卫生间)
微信截图_20201206095052.png
微信截图_20201206095102.png
微信截图_20201206095110.png
微信截图_20201206095119.png
微信截图_20201206095135.png
微信截图_20201206095142.png

 

1.pdf

142.62 KB, 下载次数: 53

2.pdf

127.51 KB, 下载次数: 42

3.pdf

84.2 KB, 下载次数: 44

4.pdf

87.91 KB, 下载次数: 40

5.pdf

88.76 KB, 下载次数: 164

6.pdf

62.31 KB, 下载次数: 40

精华推荐
换一换

发表评论0

新手上路,抛砖引玉,希望各位大佬给点意见,谢谢
拓者推荐
  • CCD--580㎡福州建总雍湾
  • 观享际 x 北谷地产
  • 会讲方案的设计师,行走的印钞机
  • 郝泽伟设计工作室 | 《木朴》
  • 【CCD+SRD】苏州·双湖玫瑰园
  • CCD-华润 CCBD 889㎡设计方案
  • 【召禾设计]天际江景超大平层方案
  • 【WSD世尊】建发·云启玉诸
  • CCD-华润玺宸上院中叠样板间
  • CCD-武汉绿城外滩玫瑰园别墅
  • 2025拓者年费+案例Vip会员说明!
  • 【 拓者年费--CAD图纸】
  • 【 拓者年费--户型方案】
  • 【 拓者年费--豪宅视频】
  • 【 拓者年费--灵感图库】