|
我愿做那一道光, 指引你回家的路!
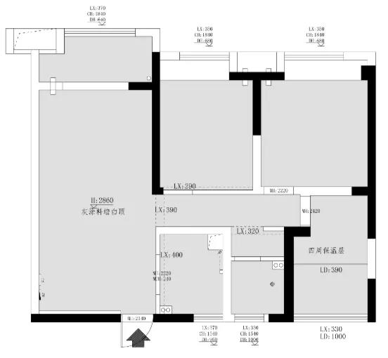
本案主打现代简约风,设计师运用木材为基材的护墙板提升整体质感,全方位解析布局,包容建筑本身缺陷,用生活的悦动作为媒介,去丰富、去创造空间灵魂。 【设计说明】 ①原厨房面积较小,设计开放式厨房,以及备餐、用餐区。 ②改变次卧门洞位置,借用次卧空间完成烘焙区,并于次卧内飘窗设计滑轨抽屉,安装墨菲床。 ③打通阳台,扩大客厅采光面;移出洗手台,实现干湿分离,优化整体空间配比。 ④设计双排衣帽间,内部设嵌入浴缸。
有人说,每间房屋的样式,从建成前就形成了。藏与露,遮与掩,抛弃与保留,成为了设计的永恒命题。然而,其真正魅力,正在于它的丰富与多样,有形与无形,以及,永远不曾被定义。
从空间需求出发,打通阳台,扩大客厅采光面,阳光透过窗户毫无阻碍洒入室内,退却了生活的烦恼与喧嚣。 无主灯设计搭配木地板,简单且明丽。木饰面吊顶嵌入灯带,将空间设计中不可或缺的光元素完美呈现。
所有的一切似乎都在无声诉说着满室温暖与家人共欢。 沉稳大气的灰色木饰面电视背景墙,似立于幽幽远山之巅,在斑斓光影中回味自己的清欢岁月。一株绿植简单置于一侧,是对生活和生命的热爱与敬畏。
家是什么?是一年四季,一日三餐;是温酒煮茶共杯盏,尝遍人间,归老山川。
生活百态,向外延展;设计千面,向内探寻。设计师一改原厨房布局,做出L型开放式厨房,并于一侧设计岛台与餐桌。
灰色质感墙面、收纳柜相得益彰,与墙上玻璃置物柜内嵌灯带一起,形成了静默的用餐空间。在这一桌、一椅、一荤、一素之间,凝练着你我的百味人生。 如果说,美食是生活的调味剂,那么设计就是空间的最优解。不怕打破原有壁垒,这种独具匠心的思考方式,源于对生活最纯粹的关心与热爱。
卧室延续客餐厅的基调,保留空间的通透流畅。木饰面的沉稳、灯带的高级氛围,以及装饰画的点亮,打破了室内寂静感。地台床的设计更是强调了空间整体性,也将收纳做到了极致。
盈盈灯饰,微微晨光,在这样的早晨醒来,应该会舍不得离开吧!
值得一提的是,设计师将原北次卧设计出双排衣帽间,并借用两面顶天立地式穿衣镜扩展视觉空间,最里设内嵌浴缸。简约的造型,不简单的视觉呈现和功能规划赋予了生活不凡品位。
一切设计,皆为建筑空间的再创作,皆为生活。
设计师对次卧空间进行重新配比、规划,外侧设计烘焙、冰箱区,内侧设计钢琴房,增加生活功能的多样性。
房内利用飘窗设计滑轨抽屉,完美契合了隐藏在墙上的墨菲床,对家居元素进行彻底的沉淀与升华,组合出丰富的动态关系,满足生活需求又饱含纯粹之美。 当悠扬的钢琴声响起,一曲音符化为充沛的情感体现。尽情享受内心的豁达与安定,去梦一回真正的闲适人生!
卫生间区域也进行了重新调整,移出洗手台,实现干湿分离,内侧设计顶天立地式镜子,与顶部灯带的邂逅,更是赋予了空间二次生命。
家作为一个包容万物的抽象器皿,其维度也远比我们想象的更加丰富,足够被感知和被期望。自在行走,恣意生活,去打破、去塑造,去构建一个新秩序。 设计由细节入手,处处体现生活需求,从室内空间的无序中探索有序的存在,深零不仅是在营造一所懂你的房子,更是将设计与生活底蕴结合,用设计语言去造就空间力量! 道阻且长,行则将至。深零愿与各位一起持续探索设计的无限可能! |
精华推荐
换一换


发表评论0