|
搭某设计丨倚恋 地点/ Site:泰国 清迈•MAYA清迈一号 设计时间/ Time :2019年12月 面积/Square e meter :84平米 材质/Material :塑木板、KD饰面板、鱼肚白石材 ◤LIVING ROOM◢ 最好的礼物 最近的憧憬 你喜欢一个人倚在窗前,享受微风带来的轻松 看它在阳光下独自嬉戏 它用那对总是随着光线不停变化的双眸瞅着你 而你用手轻轻按着它,迎上它的视线
设计师用不同比例不同材质的色块作为造型基础 地面用灰+深绿松石色线性地毯作为过渡 让空间充满理性却并不冰冷
◤DINING ROOM◢ 木质餐桌与大理石吧台 黑与白的经典衔接 让空间层次感更强 莫兰迪粉的塑木板为空间增添温度
◤KITCHEN◢ 这样的厨房少了些烟火气 但却非常适合都市精英的生活方式
◤MASTER BEDROOM◢ 卧室门与卫生间门特意选用长虹玻璃作为主体 加高加宽,有微光、不透明,简约舒服 水泥质感的墙纸与塑木板的结合 让酷酷的卧室有了家的温馨感
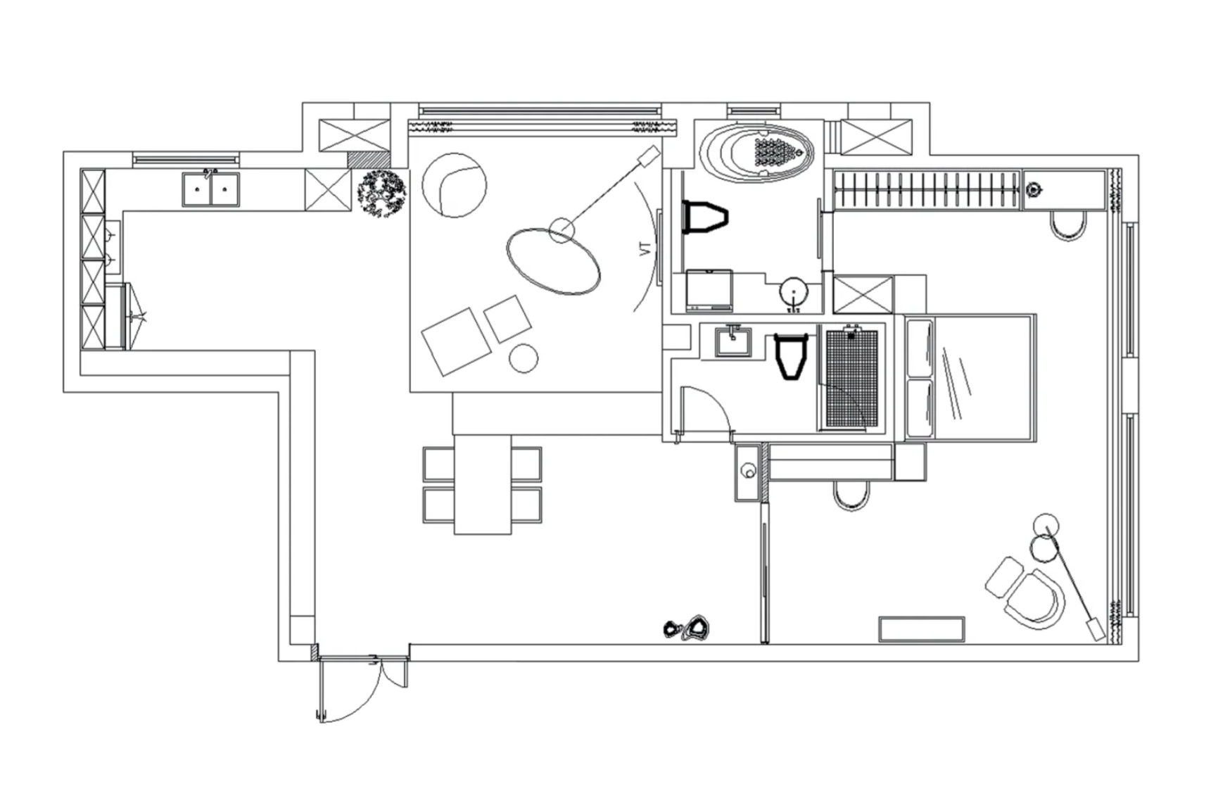
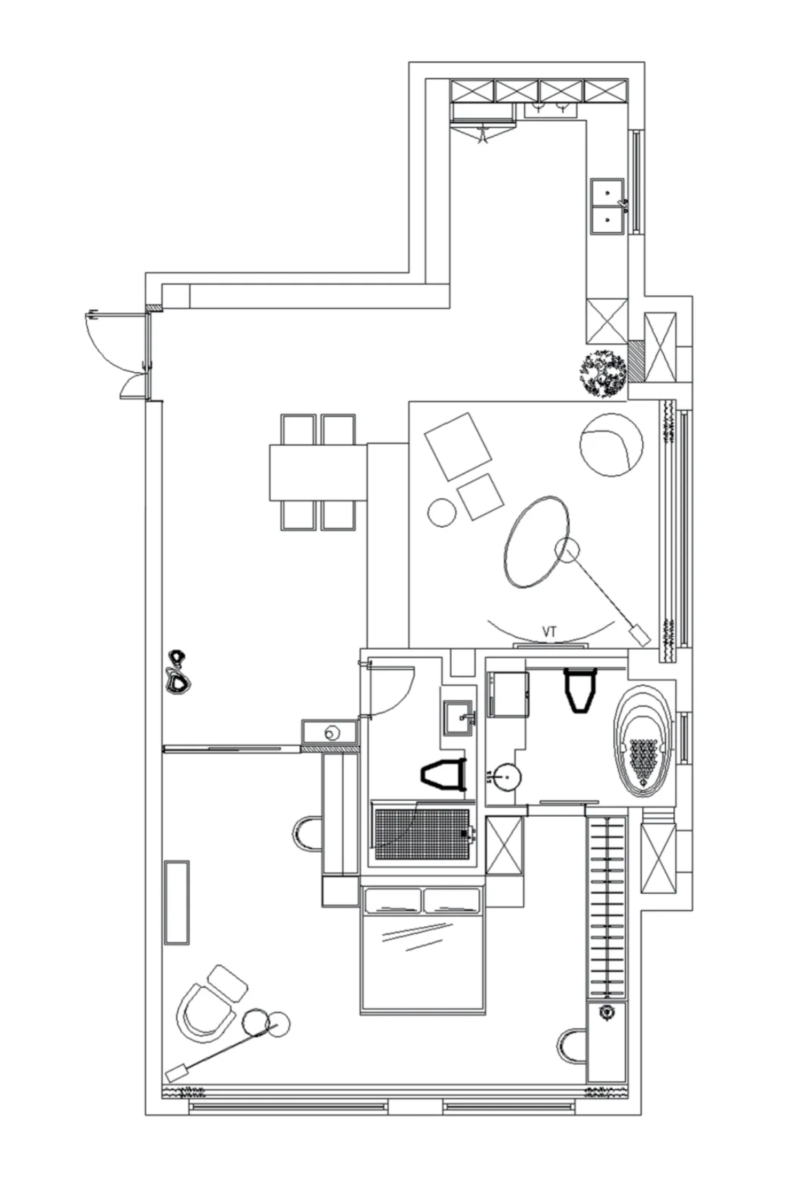
◤PLANAR STRUTURE◢
19年寻星奖全国四强作品 - 搭其万殊 某舍为家 - THE END
|
精华推荐
换一换


发表评论0