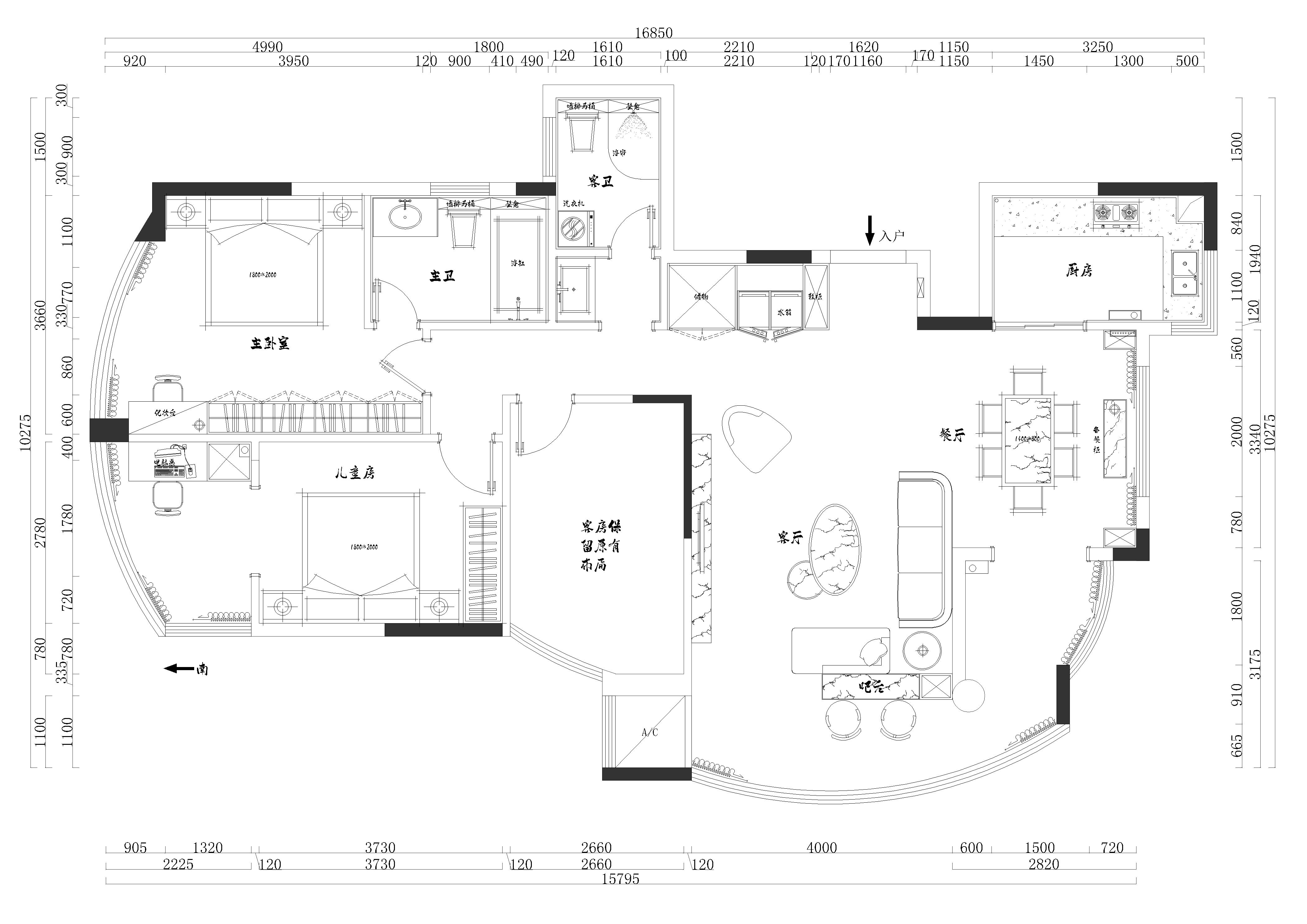
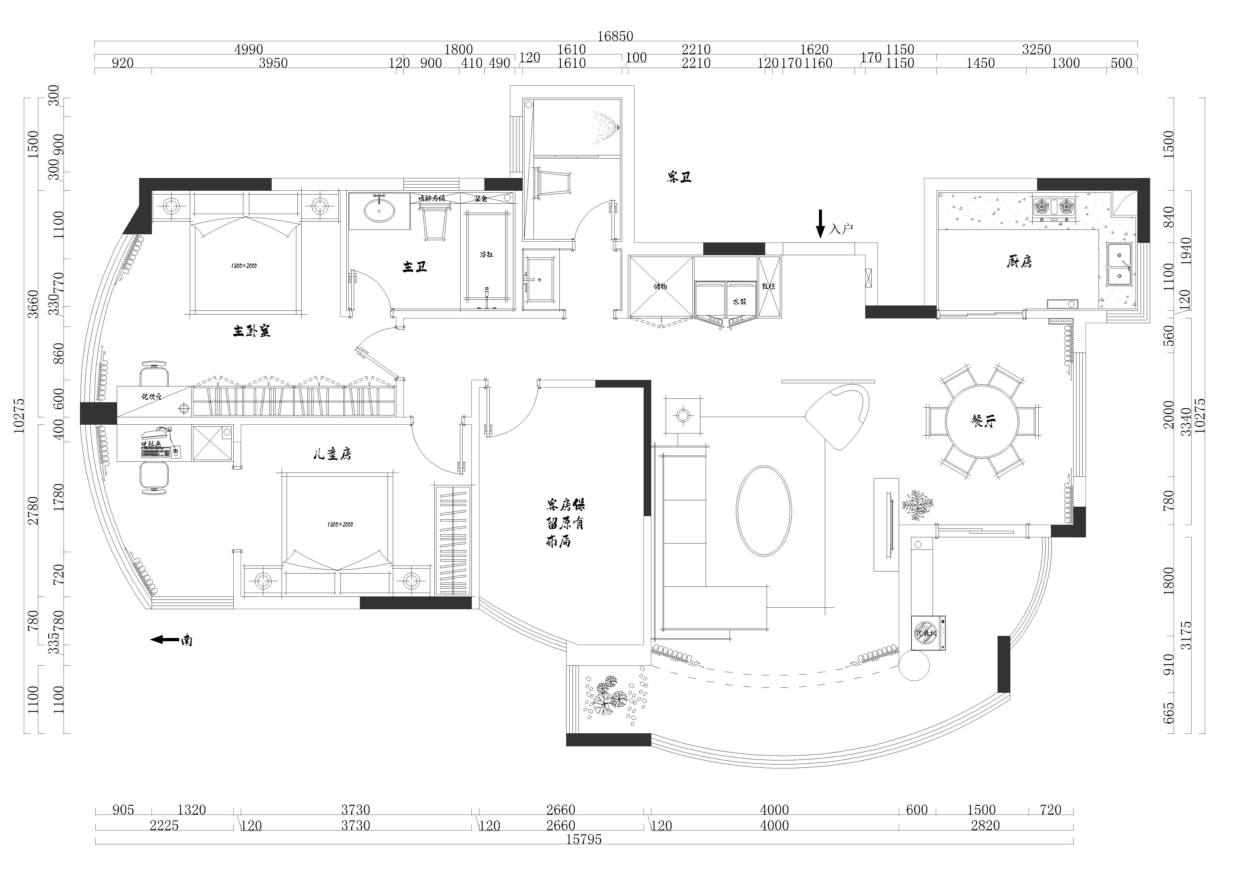
平面练习,做了两套方案,感觉不是很惊艳 ,跪求大佬指点。

2021-1-2/ 户型方案/ 户型交流/ 只看大图 阅读模式
仅供分享不做任何商业用途,版权归原作者所有,谢谢配合。

马上注册,结交更多好友,享用更多功能,让你轻松玩转社区。

您需要 登录 才可以下载或查看,没有帐号?注册

x
原始结构图.jpg 方案一.jpg 方案二.jpg
精华推荐
换一换

发表评论3

  • 18239500594 2021-1-2 15:47:45

    点的有点快CAD没有放进去,不好意思,因为是自己做着玩,所以没有做彩平图,这个就是给大家参考,所以不用CAD应该也是可以的吧。

平面练习,做了两套方案,感觉不是很惊艳 ,跪求大佬指点。
拓者推荐
  • 2026拓者 CAD户型方案 发布
  • 赛拉维:安顿生活的栖心之境
  • Atelier MKD|极简主义风格!
  • 东莞保利首铸鹭湾185样板间!
  • 【梁志天】西安曲江·九曲松间
  • 无间-上海汤臣君品合院方案
  • 君品-汤臣金桥花园项目方案
  • 无间-上海大宁中建玖上琅宸
  • HWCD-烟台洲際酒店深化方案图册
  • 琚宾新作-资兴东江湖度假酒店
  • 2025拓者年费+案例Vip会员说明!
  • 【 拓者年费--CAD图纸】
  • 【 拓者年费--户型方案】
  • 【 拓者年费--豪宅视频】
  • 【 拓者年费--灵感图库】