求新颖思路

2021-1-19/ 户型方案/ 户型交流/ 只看大图 阅读模式
仅供分享不做任何商业用途,版权归原作者所有,谢谢配合。

马上注册,结交更多好友,享用更多功能,让你轻松玩转社区。

您需要 登录 才可以下载或查看,没有帐号?注册

x
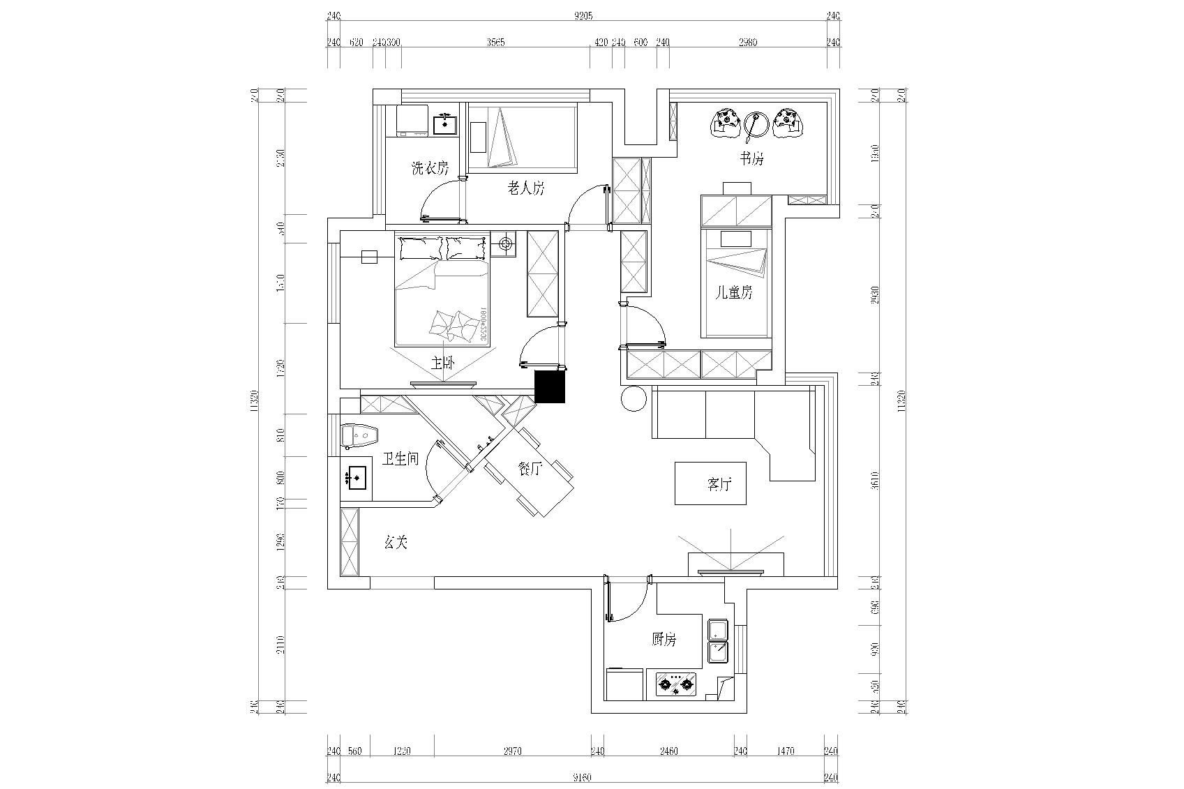
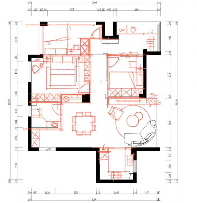
1.jpg 2.jpg
1.主卧(夫妻)儿童房(孩子三岁,男孩)老人房
2.希望儿童房有学习的地方
3.一家人生活希望储藏空间多一点,可以接受客厅小一点不放电视机。
求大神看看有没有更好的思路
精华推荐
换一换

发表评论5

  • 辰星一力创 2021-1-23 16:07:15

    看不明白你原建筑中间有个小房是什么功能间,还有原建筑绘制的墙体特别大什么有问题。

    原先装修过是衣帽间,重新装修
求新颖思路
拓者推荐
  • 孟也新作-七都岛640法式别墅拓者空 600㎡极简别墅
  • 【武汉站—“樱”你而来】获客实操
  • 【武汉站—“樱”你而来】户型优化
  • 【武汉站—“樱”你而来】风水
  • LSD-宁波鳳栖雲庐合院样板间
  • CCD-华润 CCBD 889㎡设计方案
  • 孟也新作-七都岛640法式别墅
  • 【WSD世尊】建发·云启玉诸
  • 苏州绿城樾庐合院样板房
  • 无间设计-上海万科中兴傲舍
  • 2025拓者年费+案例Vip会员说明!
  • 【 拓者年费--CAD图纸】
  • 【 拓者年费--户型方案】
  • 【 拓者年费--豪宅视频】
  • 【 拓者年费--灵感图库】