五层上下叠奇葩户型求帮忙

2021-2-2/ 户型方案/ 户型交流/ 只看大图 阅读模式
仅供分享不做任何商业用途,版权归原作者所有,谢谢配合。

马上注册,结交更多好友,享用更多功能,让你轻松玩转社区。

您需要 登录 才可以下载或查看,没有帐号?注册

x
这是一幢5层的住房,原来2户上下叠,客户已经全部买下,现在楼梯位置与电梯位置基本确定
使用需求:一楼:厨房,餐厅,客厅,品茗区,小卫生间
                 二楼:老人房,保姆房,衣帽间,卫生间
                 三楼:女儿房,客卧(书房),衣帽间,卫生间
                 四楼:男主人房,女主人房,衣帽间,大卫生间
                 五楼:洗衣房,储物间,露台
求各位大神指点,主要是一楼方案,客户要求,一楼通透,大气,各项功能需齐全(层高4米1),难点是:柱子太多,进门做了玄关就不通透了
  拜托大神们指点迷津

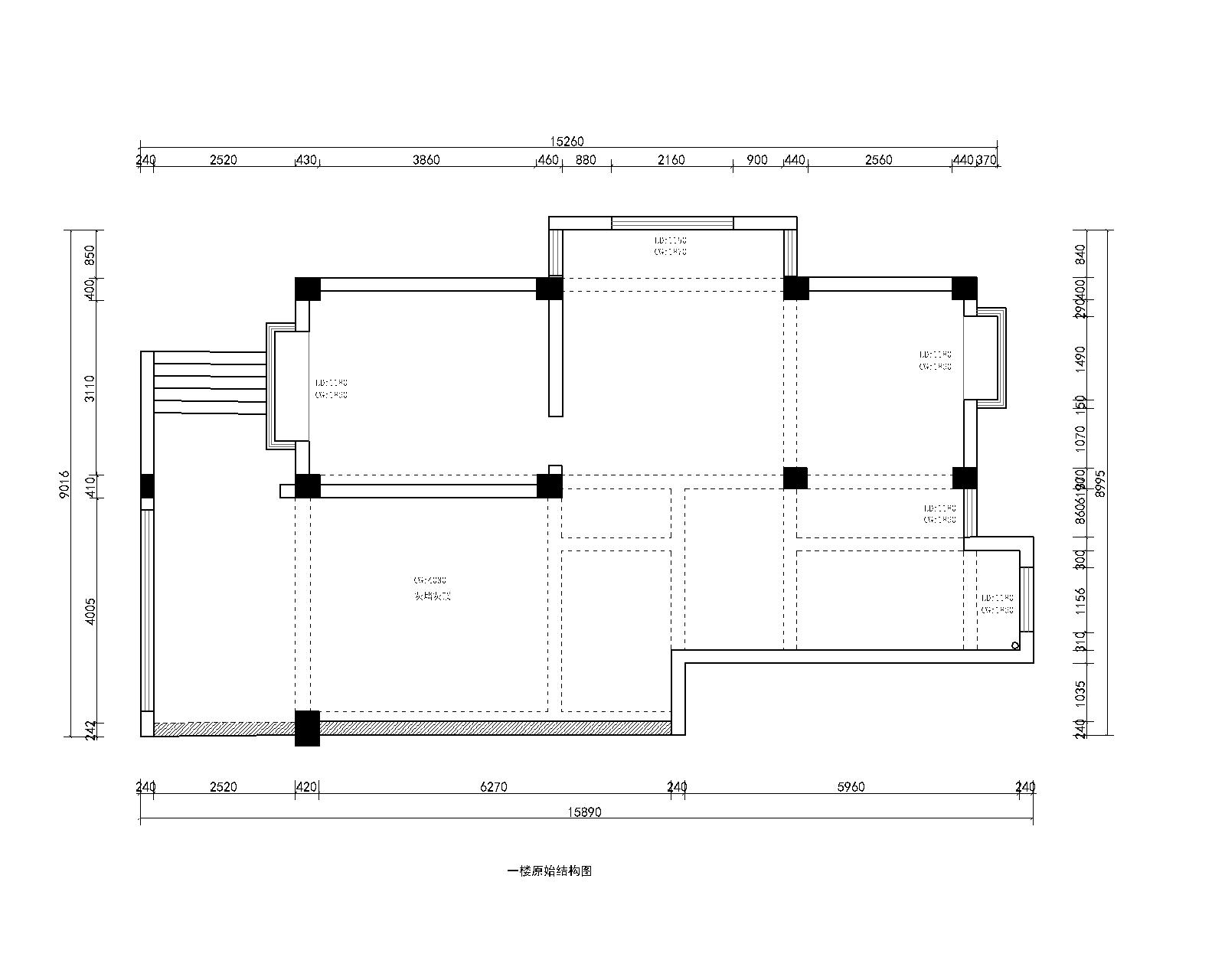
一楼原始结构图

一楼原始结构图

一楼基本方案

一楼基本方案

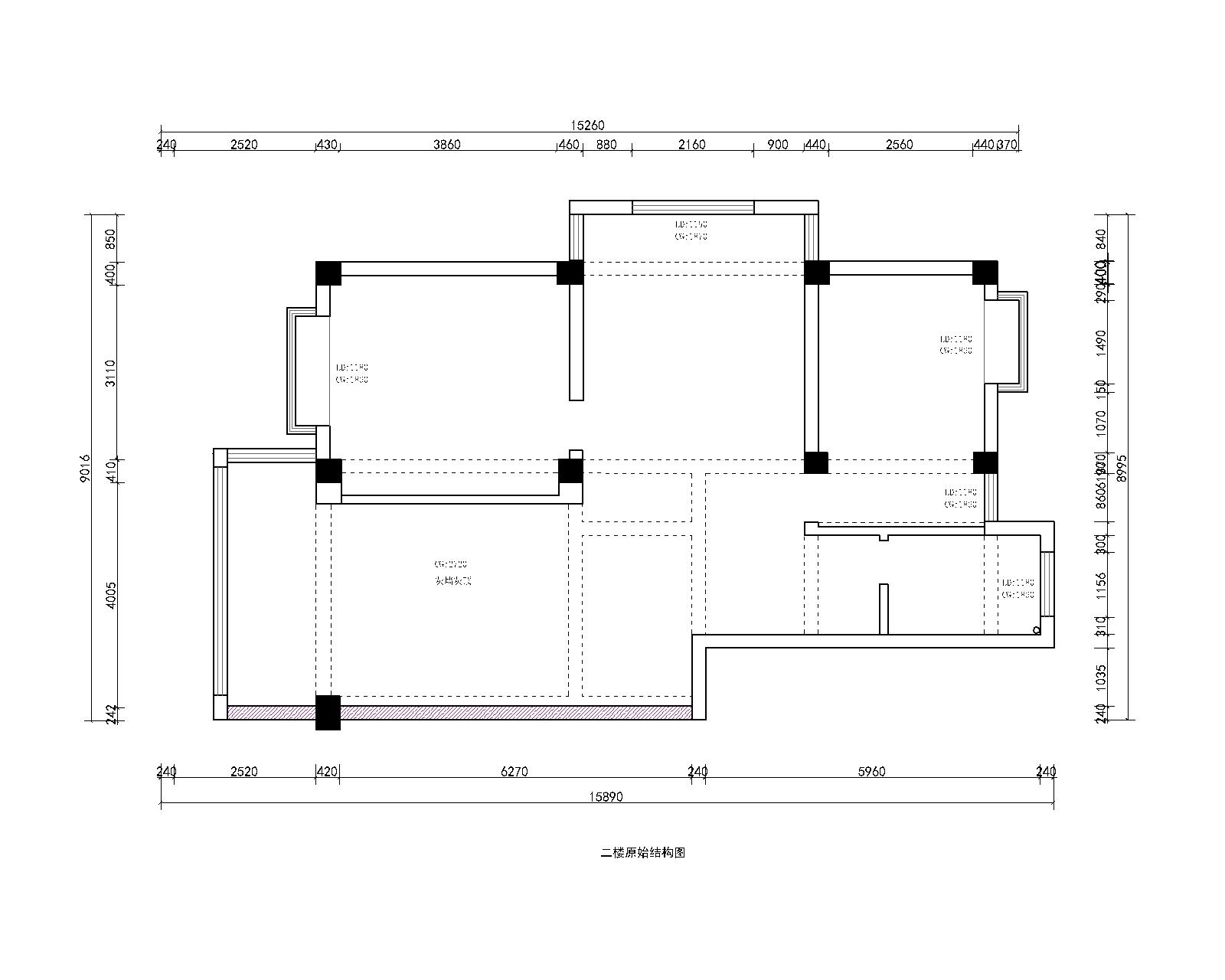
二楼原始结构图

二楼原始结构图

三楼原始结构图

三楼原始结构图

四楼原始结构图

四楼原始结构图

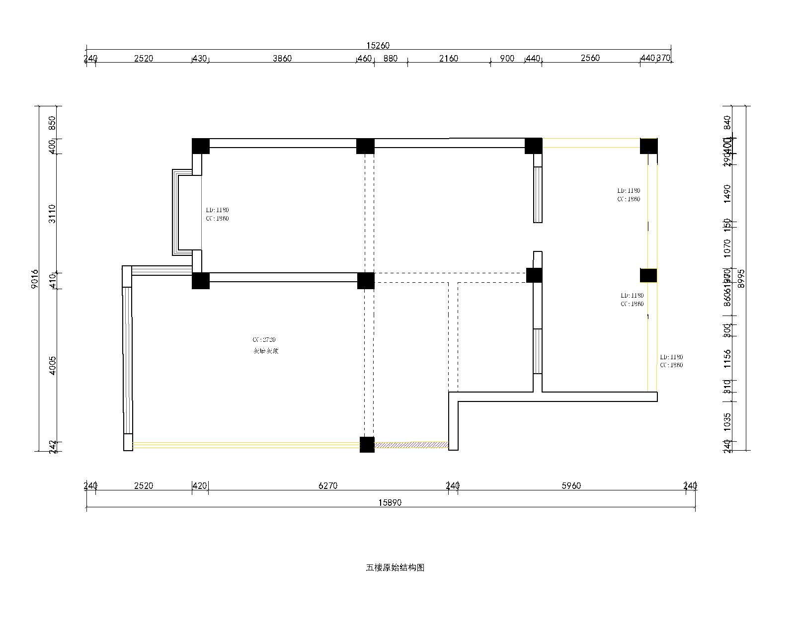
五楼原始结构图

五楼原始结构图

精华推荐
换一换

发表评论0

五层上下叠奇葩户型求帮忙
拓者推荐
  • 2026拓者 CAD户型方案 发布
  • 赛拉维:安顿生活的栖心之境
  • Atelier MKD|极简主义风格!
  • 东莞保利首铸鹭湾185样板间!
  • 【梁志天】西安曲江·九曲松间
  • 无间-上海汤臣君品合院方案
  • 君品-汤臣金桥花园项目方案
  • 无间-上海大宁中建玖上琅宸
  • HWCD-烟台洲際酒店深化方案图册
  • 琚宾新作-资兴东江湖度假酒店
  • 2025拓者年费+案例Vip会员说明!
  • 【 拓者年费--CAD图纸】
  • 【 拓者年费--户型方案】
  • 【 拓者年费--豪宅视频】
  • 【 拓者年费--灵感图库】