|
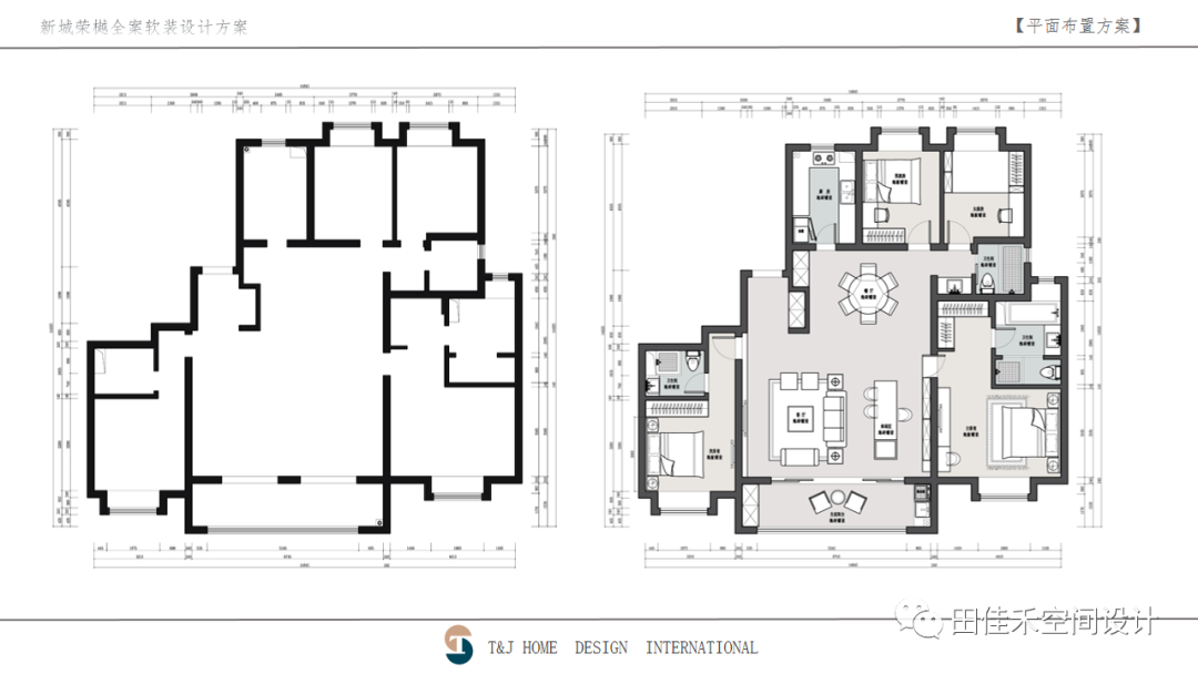
T & JHOME DESIGN 我们与生活空间的关系, 不应该是占有,而是共处。 Our relationship with living space should not be possession, but coexistence. T&JHOME Design Delicate ------------ 地址:泰州新城荣樾 软装公司:T&JHOME软装设计公司 项目性质:开发商精装整体软装设计 面积:180² 风格:意式轻奢 - 01 「 The living room 客厅 - 「实景照 一入户,映入眼帘的高级的克莱因蓝贯穿整个公共区域 异形的皮质意式沙发给整个空间增加了一丝高级感 蓝色与金属的激情碰撞,别具风格 墙面采用子午灰墙板和暖咖色墙咔相结合 使其整个空间具有交流性和互动性 02 「RESTAURANT 餐厅 - 「实景照 换种方式说,餐厅是一个家庭最好的共享区 也可以更好的感受空间给予日常的不同体验方式 其暖咖色的色彩搭配与客厅互享互融 墨绿色的餐边柜犹如点睛之笔 让整个空间活跃了起来 03 「Mingpin District 品茗区 - 「实景照 采用深色木质加铂金透明桌腿的大板桌和水晶透明椅 整个空间给人既沉稳又通透的感觉 鱼肚白的背景和墙咔隐形门的设计别出心裁 让居住者身心得以释放与安定 04 「Master bderoom 主卧 - 「实景照 此刻,环境、空间、人达到一种和谐的平衡 设计的背后,是给予居住者发自内心的舒适感 主卧作为一个家格调的基垫,几何线条画与氛 围吊灯的结合也增加了休憩空间的品质感,背景采 用深浅暖色系墙咔组合而成,与窗帘色系相呼应 整个空间犹如一位温柔的母亲,紧紧的拥抱自己的孩子 电视背景和梳妆台背景设计成一个整体 温柔的奶白色掺杂着橘粉色 灯光洒在上面 优雅而不失格调 05 「Senior room 长辈房 - 「实景照 长辈房的色彩搭配像春天的暖阳温暖着我们的心 皮质的床的床头背景金属装饰线条与线形灯相互呼应 床背景上的灯光壁饰更是灵魂之笔 为整个空间点亮了一盏灯 06 「Boy room 男孩房 - 「实景照 男孩房蓝黄白的配色成熟中带着一丝稚嫩 两个流浪地球的小摆件为整个空间增加了一点童趣 整个男孩房的设计加入了符合孩子年龄的明亮色彩 为孩子打造出了一个充满想象与学习的梦想基地 最好的教育就是在尊重中守护,适当地放手 自由的成长,一点一滴 形成独立自我的认知 07 「Girl room 女孩房 - 「实景照 大面积是以可爱的俏皮粉为基调 通过白灰色的与其融合,使其可爱中透露一丝沉稳 在榻榻米外侧加了一个幔头不仅达到美观的效果 更会让睡在里面的孩子有一种温馨的安全感 这也是设计的初衷 平面布置图 - 联系我们 - 【版 权 声 明】 本文均为T&JHOME原创,切勿盗用 - END - |
精华推荐
换一换



发表评论0