安定案例 | 如何让六口之家有个舒适空间

仅供分享不做任何商业用途,版权归原作者所有,谢谢配合。

马上注册,结交更多好友,享用更多功能,让你轻松玩转社区。

您需要 登录 才可以下载或查看,没有帐号? 注册

x
本帖最后由 安定空间设计 于 2021-3-11 16:52 编辑

ANDING
屋主的需求:六人四房
喜欢的风格:现代简约
喜欢的色彩:白、灰、暖色
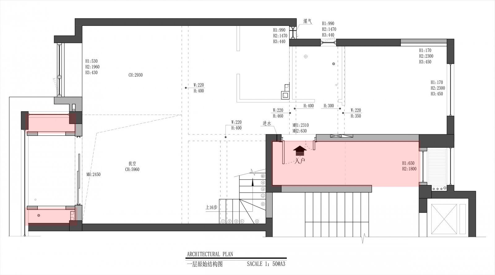
原始结构分析:
优势:户型方正,三面均有采光,南北对流,红色为可扩建区域。
缺点:入户没有玄关,进门直接对着卫生间,客厅餐厅空间偏小,过道狭长,卫生间空间狭小,楼梯踏步过陡,空间阳角过多。

▲一层原始结构图


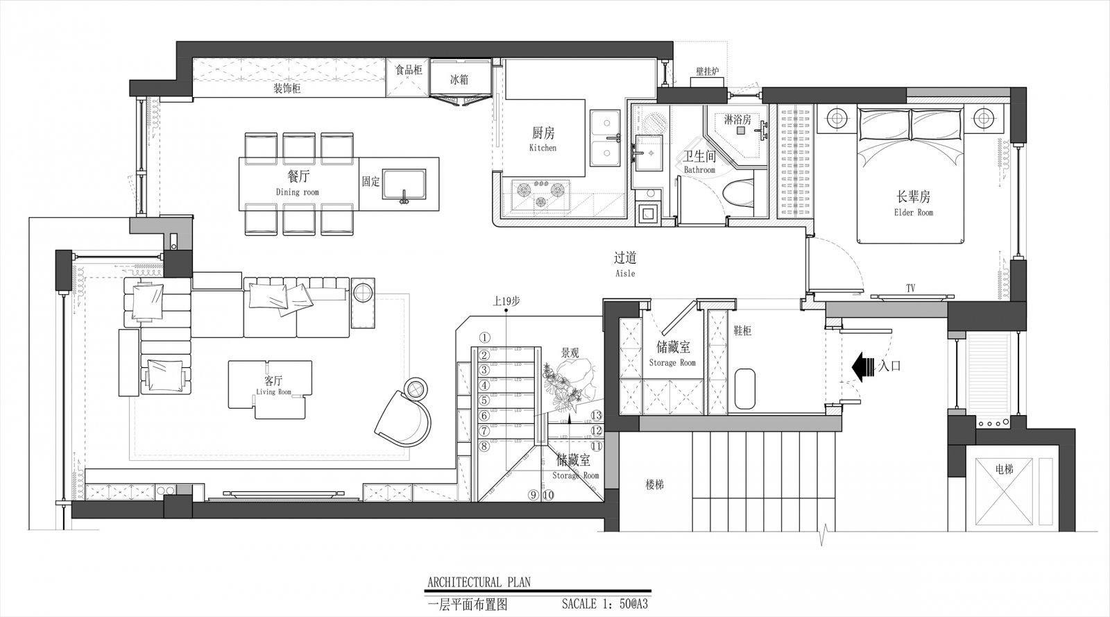
设计思路:
1、原先户型没有玄关,现在利用可扩建区域,结合实际情况,将玄关规划到扩建区域,既有了鞋柜还能增加储藏空间;
2、将厨房位置的地梁敲掉,原先4㎡的小厨房扩大了一些,做成U字型空间,餐桌旁设置中岛台让生活更便利;
3、打通阳台的两堵非承重的墙,将其纳入客厅区域,客餐厅的纵向无法改变,那就改变客厅的横向布局;
4、原卫生间框架狭小,占用一些厨房位置,加上原有的窗户,不至于太烦闷;
5、从原始结构可以看出楼梯比较陡峭,修改成17步之后,从科学上来说单数的踏步数也比较舒适;
6、利用楼梯下的空间做储物间,加上餐边柜、电视柜,储物不再是难题。

▲一层平面图


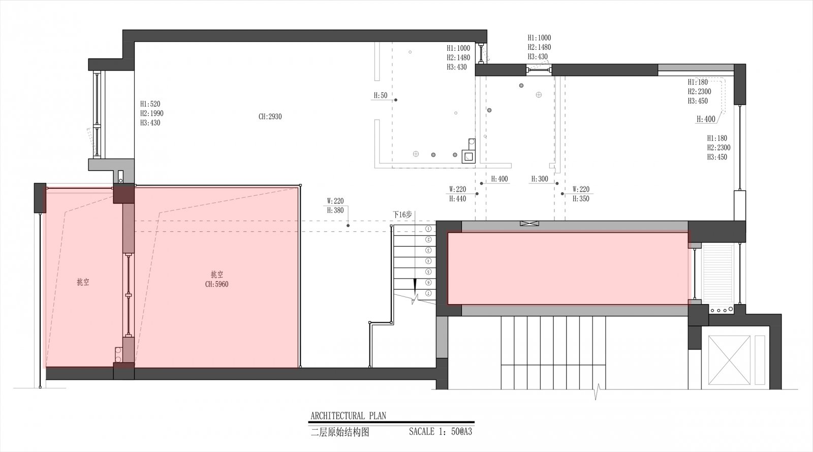
原始结构分析:
优势:南北通透,多处采光,可扩建。
缺点:部分卧室偏小,卫生间在厨房上方,过道狭长。

▲二层原始结构图


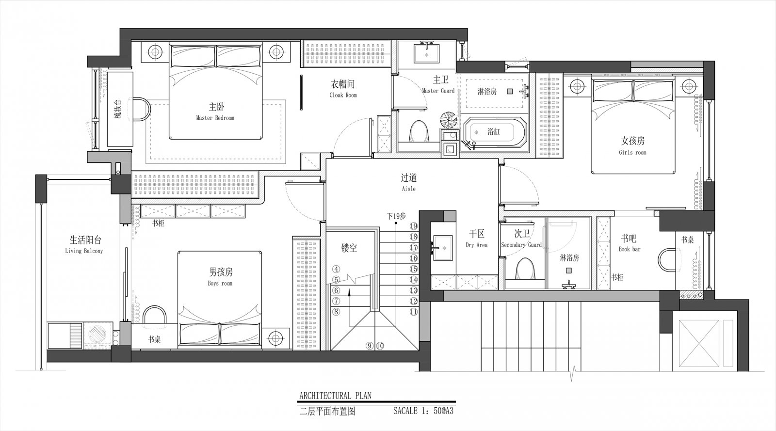
设计思路:
1、如果按照原始结构设计卫生间,主卧将没有衣帽间,将次卫设于扩建区域,并且采用干湿分离,也满足了次卧的使用。


▲二层平面图


利用楼梯与客厅之间,做了展示柜,满足书籍、客厅杂物的储物需求。
The use of stairs and between the living room, to do a display cabinet, to meet the books, living room storage needs of sundry.

当阳台融入客厅范围后,明显通透了很多,往外眺去,还能看到一抹绿。
When the balcony into the living room after the scope, obviously a lot of transparent, looking out, you can see a touch of green.

进深30cm的柜体把客厅和阳台之间不可拆除的管道及柱子包进柜体。
The cabinet with a depth of 30cm wraps non-removable pipes and columns between the living room and the balcony into the cabinet.
f5a57885d33ac938c93c183ebeb200f副本.jpg
橱柜选择了开放格形式,房间本身的优势是采光很好,南向的采光给白色的橱柜更多的饱和度。
Ambry chose open case form, the advantage of the room itself is daylighting is very good, south daylighting gives white ambry more saturation degree.

利用飘窗安置梳妆台。
Use The bay window to place the dressing table.

粉色含括着女孩从儿童的稚嫩到少女的温婉。
The pink contains the girl from the child's immature to the young girl's gentle.

项目地点 | 福州

项目名称 | 建发央著

项目面积 | 170㎡

设计团队 | 福建安定空间设计有限公司

福建安定空间设计有限公司创立于2016年,致力于室内空间规划设计及施工,专注于高端住宅空间,商业空间、办公空间设计与施工服务。在“一切让客户安心”的理念下,用最专业的设计及服务,为客户提供最满意安心的作品。以安定空间设计研究所为管理核心和创意源泉,打造有家装、公装、软装、园林三大业务板块,为广大客户带来高品质、专业化、精细化的整装服务。

标签: 现代简约
精华推荐
换一换

发表评论0

安定案例 | 如何让六口之家有个舒适空间
拓者推荐
  • CCD--580㎡福州建总雍湾
  • 观享际 x 北谷地产
  • 会讲方案的设计师,行走的印钞机
  • 郝泽伟设计工作室 | 《木朴》
  • 【CCD+SRD】苏州·双湖玫瑰园
  • CCD-华润 CCBD 889㎡设计方案
  • 【召禾设计]天际江景超大平层方案
  • 【WSD世尊】建发·云启玉诸
  • CCD-华润玺宸上院中叠样板间
  • CCD-武汉绿城外滩玫瑰园别墅
  • 2025拓者年费+案例Vip会员说明!
  • 【 拓者年费--CAD图纸】
  • 【 拓者年费--户型方案】
  • 【 拓者年费--豪宅视频】
  • 【 拓者年费--灵感图库】