老房子顶楼斜顶复式平面

2021-3-14/ 户型方案/ 户型交流/ 只看大图 阅读模式
仅供分享不做任何商业用途,版权归原作者所有,谢谢配合。

马上注册,结交更多好友,享用更多功能,让你轻松玩转社区。

您需要 登录 才可以下载或查看,没有帐号?注册

x
本帖最后由 xiongbinbin518 于 2021-3-14 01:20 编辑

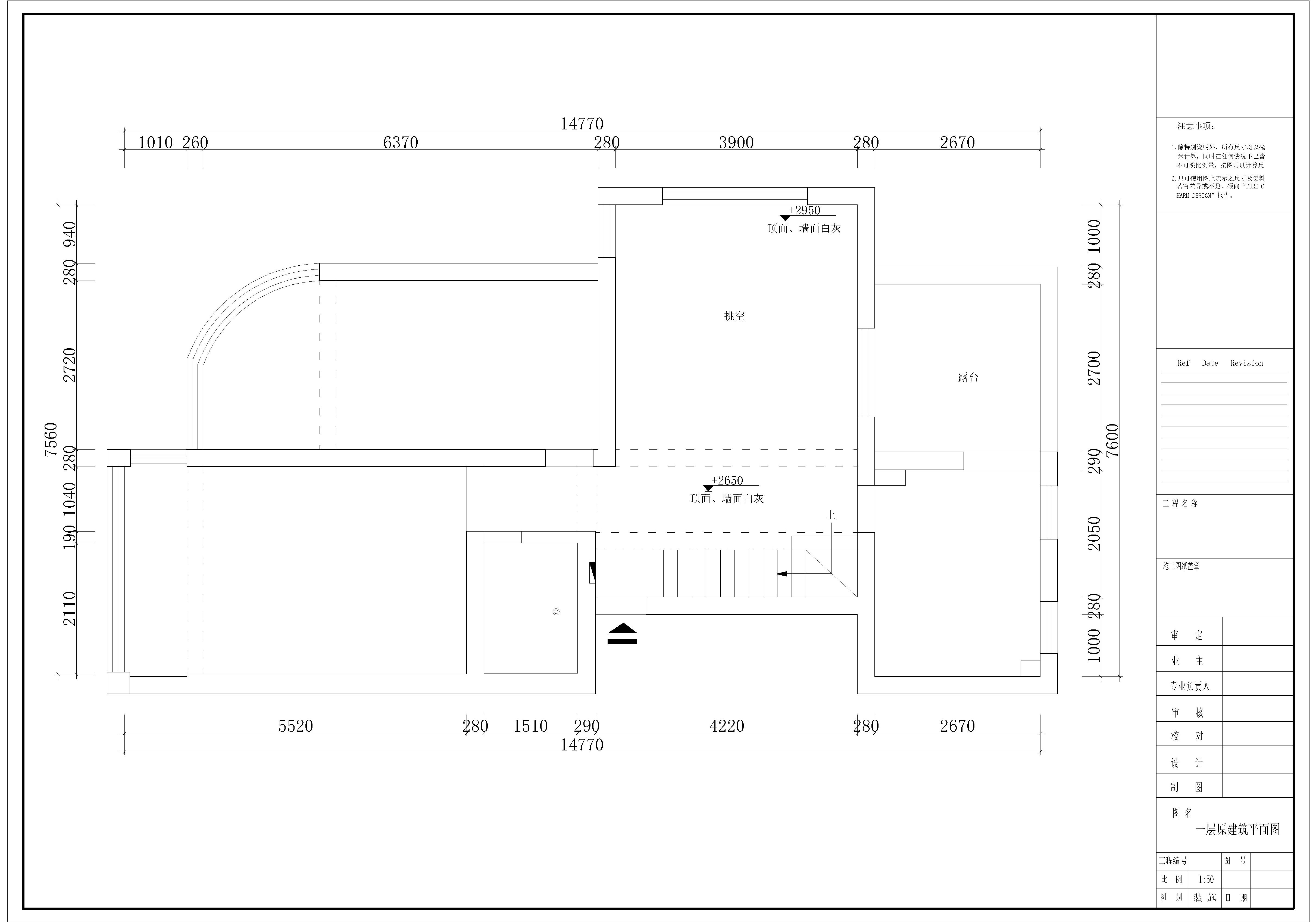
一层原始平面图

一层原始平面图

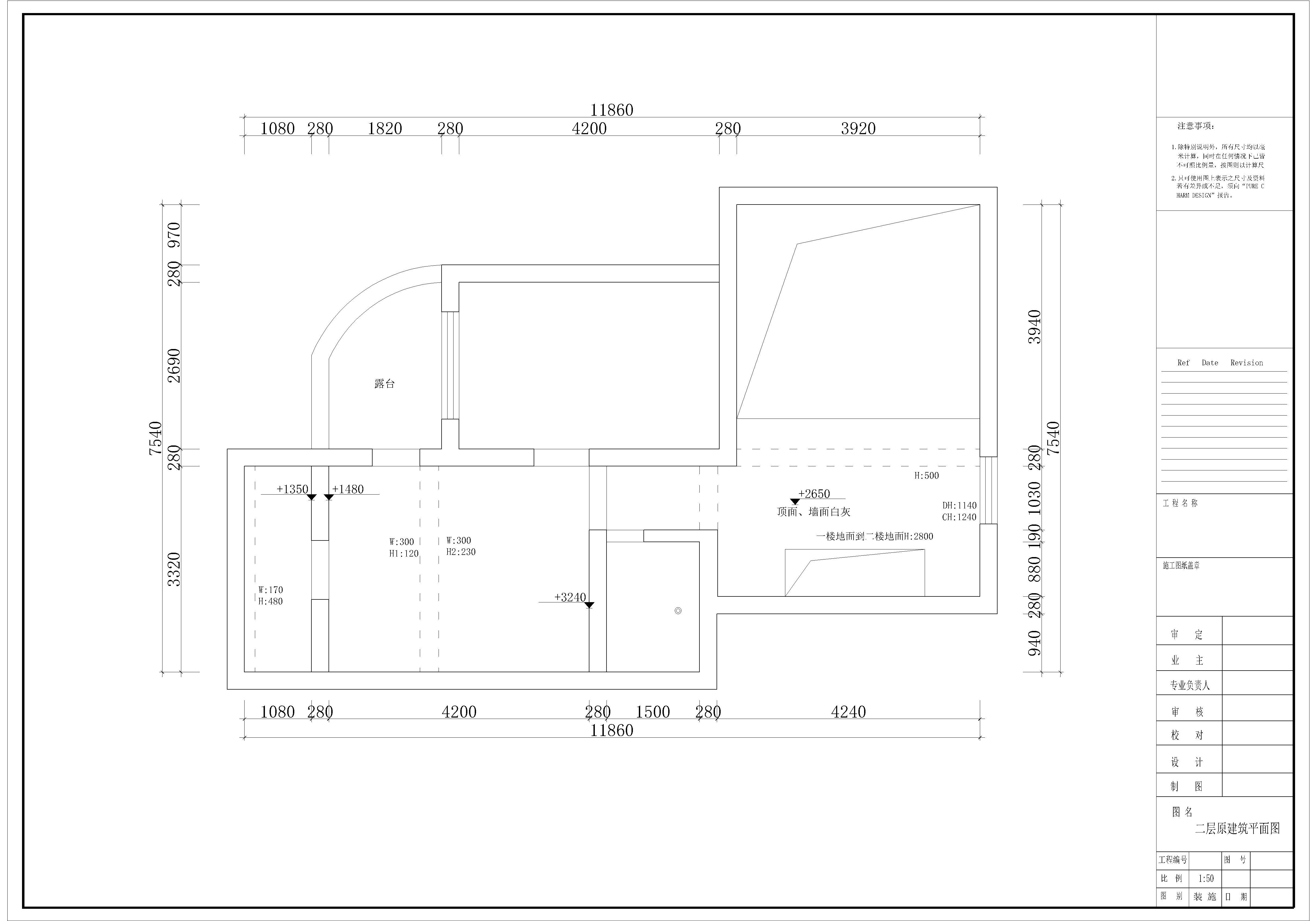
二层原始平面图

二层原始平面图

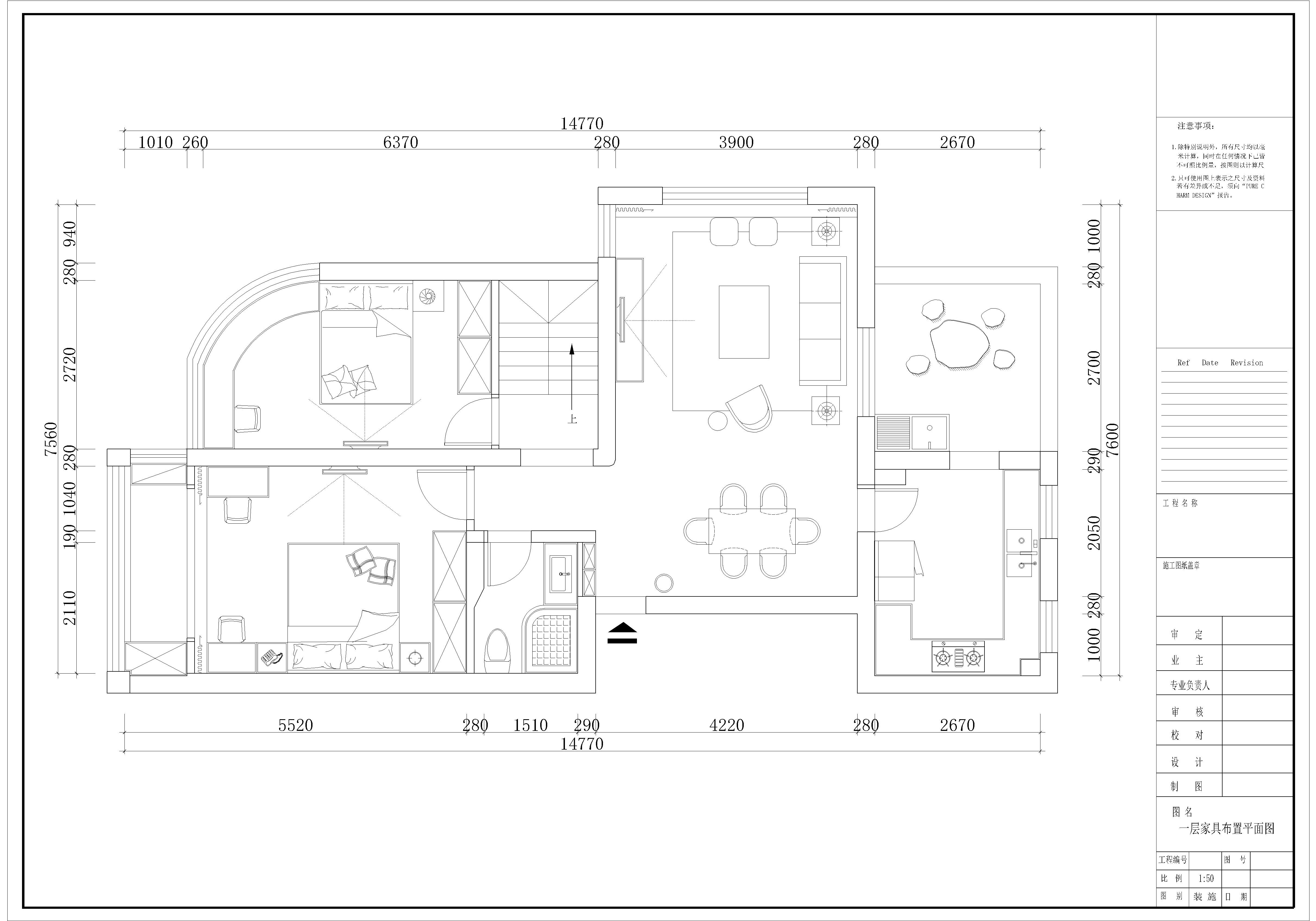
一层家具布置平面图

一层家具布置平面图

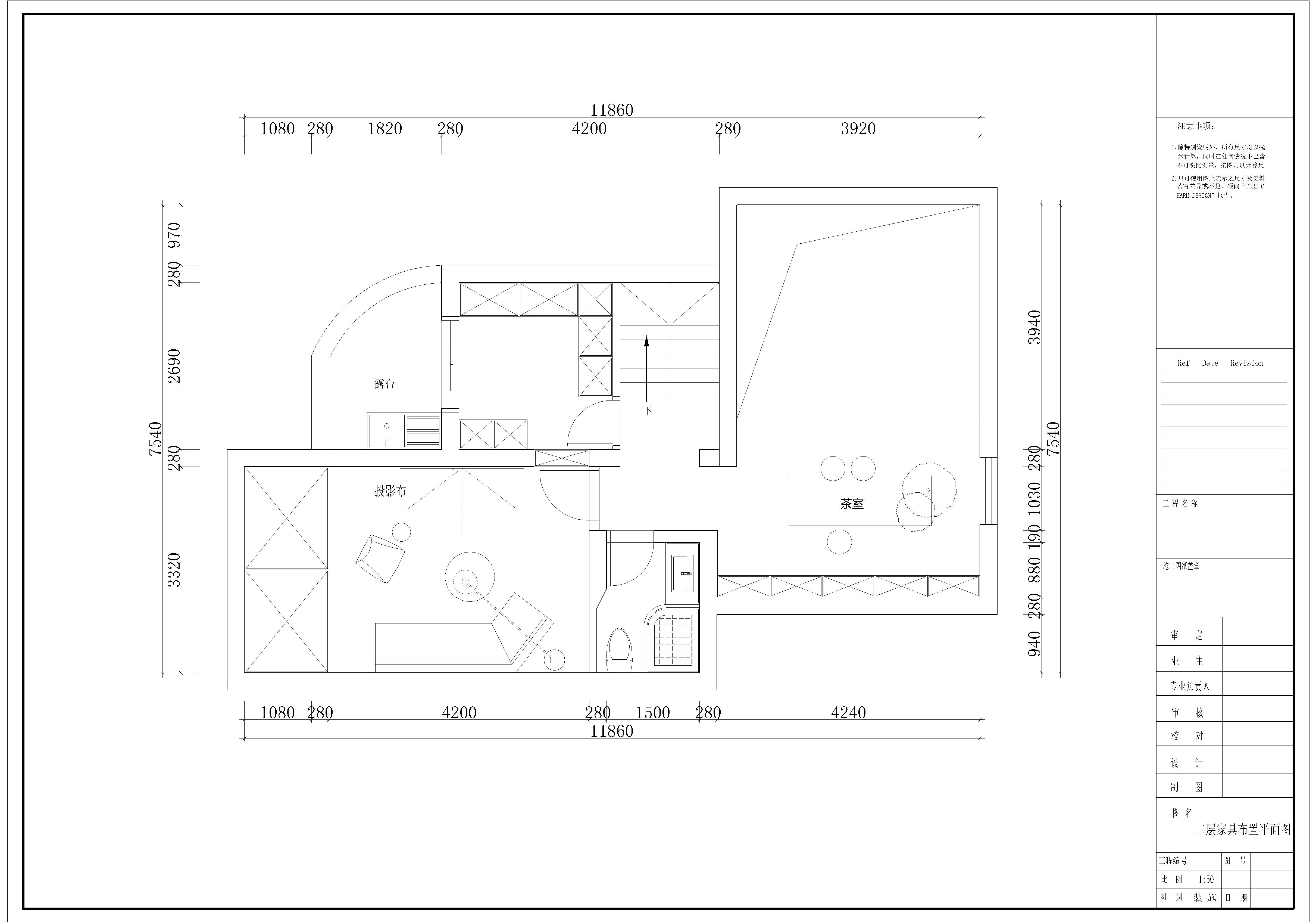
二层家具布置平面图

二层家具布置平面图
老房子顶楼带阁楼斜顶,房子应该都是砖结构,估计不太能砸太多墙,原有的楼梯放在那里餐厅不是很好摆放,所以入手点从这个楼梯开始。业主的意思倒也没有强烈意识改楼梯,进门希望有可以坐的地方换鞋子。主卧朝南晒衣服主要在朝南阳台,有时候下雨天希望有一个临时挂衣服的区域,化妆,办公都有需要。次卧小孩子房间可能需要展示一些小时候玩具,是个十几岁男孩,尽可能的还希望有锻炼的区域,俯卧撑,甚至引体向上之类的。卫生间希望大一点。一楼露台主要生活洗衣区,也会考虑烧烤之类的,露台顶上做玻璃顶,侧面通风,不用封窗户。厨房与露台之间的关系问题。二楼有一个茶区,衣帽间,影音室,二楼朝南的露台和衣帽间开门方式如何处理,各位大佬有更好的想法吗

精华推荐
换一换

发表评论0

老房子顶楼斜顶复式平面
拓者推荐
  • WSD世尊新作-南京顶级别墅
  • 苏州绿城越溪合院330样板间方案
  • 召禾邵程设计-上海徐汇绿城潮鸣东方
  • 杭州法式500户型合院别墅方案
  • 比佛利山庄1亿美元的豪宅!
  • 2025拓者年费+案例Vip会员说明!
  • 【 拓者年费--CAD图纸】
  • 【 拓者年费--户型方案】
  • 【 拓者年费--豪宅视频】
  • 【 拓者年费--灵感图库】