|
本帖最后由 hfshenling 于 2021-3-22 14:34 编辑 一草一木皆得光阴温暖 一日一年不负岁月深情
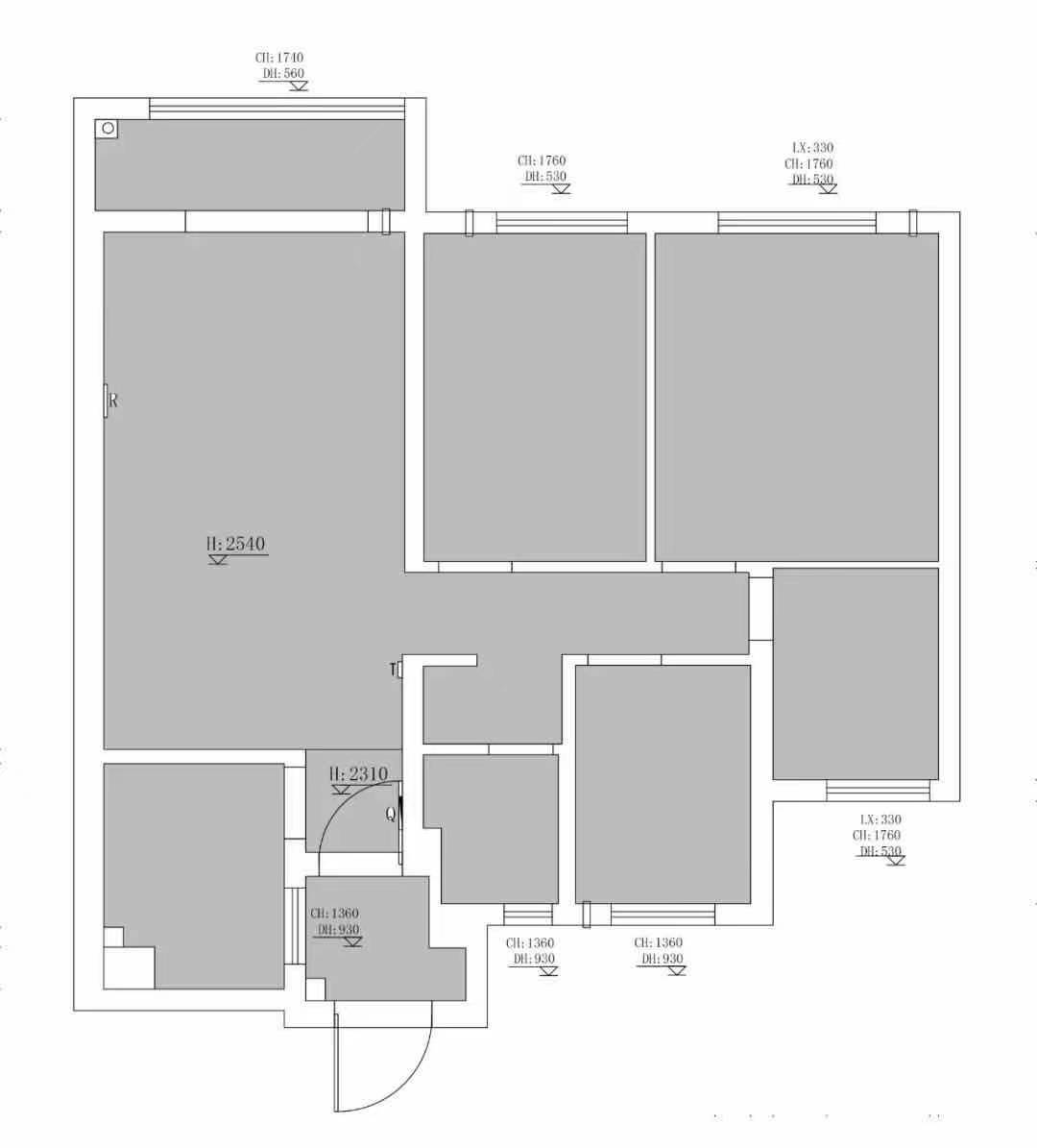
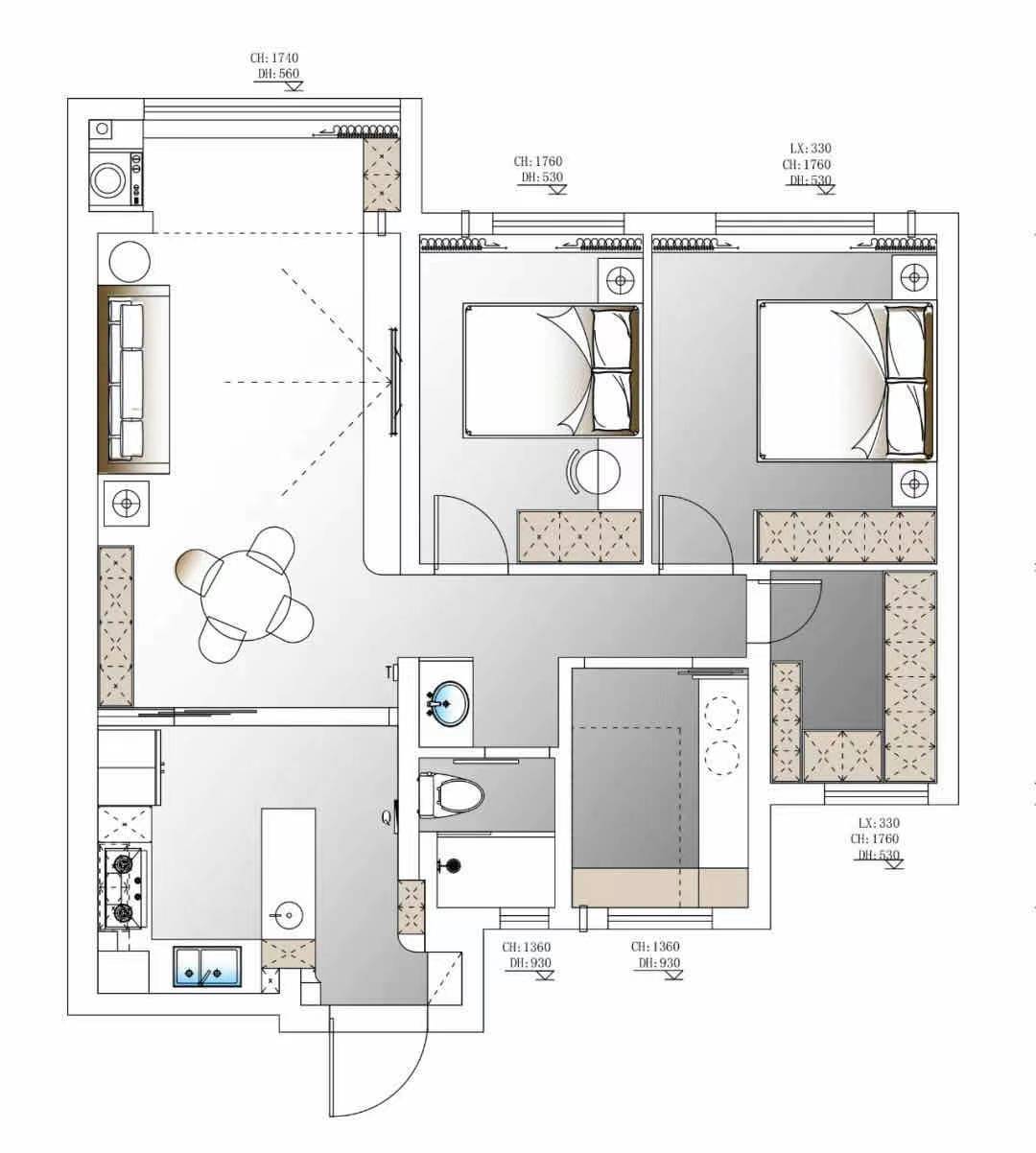
本案是位于【合肥-万科森林公园】的一个95㎡精装房改造项目。保留精装房原始布局基础,完善各区域功能,将生活最好的状态通过平静的空间温柔呈现。
【设计说明】 ①拆除入户门厅非承重墙,设计玄关柜、吧台,打造半开放式厨房。 ②阳台并入客厅,设地台休闲区及衣物洗烘区。 ③增设餐边柜、大衣柜,保留储物间,优化空间储物功能。
万物静观皆自得,四时佳兴与人同。 生活不是茶余饭后的消遣,也不是空虚时的填充;是空间里的记忆,和家人一起的治愈时光。
本案最大改动,也是空间的亮点,来自入户门厅处。拆除入户门厅非承重墙,打造玄关柜、吧台作过渡。半开放式厨房与内嵌式玻璃移门搭配,在感性与理性之间完成了空间定义。
家的故事,在灯光的明暗变化中产生。暖黄灯光,并无固定形态,却可以成就一份独特的慰藉。当溯时光之河而上,我们也会满怀温情地回忆时光里的星星点点。
你来人间一趟,你要看看太阳。 延续灯光的暖黄色调,木材的平和带来真正的内心宁静,鱼骨拼更是彰显个性。阳台打通后,自然光线充分进入室内,一片俊雅悠然,温暖如春。
主卧规整有序,功能一应俱全。如此空间,理想生活、对家的期待油然而生。生命的旅途,总是千回百转,以清净心看世界,以欢喜心过生活,人间何处不小暖。
“精装房”概念在经济社会的发展中日渐火热,但随之而来的,是趋向于统一的装修风格和布局,缺乏个人风格,与居者对家的期待有强烈的冲突。 设计的本质,即展现生活的丰富和独特性。 我们打破精装房的千篇一律,拓宽空间延展性,将它打造成体现居者个性审美,同时又不乏实用及人文关怀的生活空间。置身此地,只觉余韵犹存。 时光日复一日更迭,愿你与深零同行,在安静、质朴的空间中感受阳光和家的温度! |
精华推荐
换一换


这个色调搭配出来真棒