设计理念 Design concept 简单的活着是不够的 我们还需要有阳光、有自由 和一点点的花的芬芳 设计信息 Design information 设计主持 :傅晓 主案设计 :傅晓 设计面积 :180㎡ 项目地址 :安徽省合肥市 信达公园里 服务团队 :麻吉空间联合设计机构 总监组 效果图展示 Show effect chart
步入空间,统一的色调和简约的设计,让空间自然延展的同时,又兼具色彩雕刻版的感染力。
柔和细腻的氛围光线,内敛纯色的哑光材质,以及惯用的大理石元素,一气呵成,高低错落,在休憩与畅饮之间渗透融合。
如同宝盒一般的空间内,个性十足的艺术家具陈列有序,和户外洒入的光影一起构成空间的生活动能。
打破时间的藩篱,经典复古的元素和现代柔性的艺术风格,在过去与未来之间穿梭,增强空间氛围的视觉表现力。
厚重狭长的隐形门后,是一个相对私密的卧室空间,沉浸却不闭塞,相对独立却又功能完善,散发着家的温馨。
贯穿了外部生活空间的典雅之白,散发着沉静、含蓄的氛围,有助于抚平人内心的焦虑,让人可以慢下来审视内心。
如同导演对于电影画面的把握一般,我们着重把控观者的视觉容量,在灯光和陈列的悉心设计下,随时都能欣赏到不同的怡人景致。
米灰的墙壁处理使得光线变得柔和,成色古旧的地板也安稳低调,大大的玻璃窗下有着软踏踏的飘窗,如同被云彩包裹般舒适。 大宽幅的玻璃拉门,让沉稳的空间里有多了几分随性和洒脱。
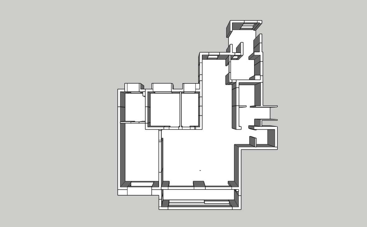
衣帽间是主卧套间的“庭院部分”,原始空间的俩扇玻璃窗,搭配玻璃衣柜,白色软塌,将有限空间变成一个和谐的整体。深蓝色调的墙面与橡木色地板的搭配也十分耐看。 户型分析 Information analysis
① 客厅面积很大,但是对于业主来说,实际生活利用率低下,不符合她的生活空间使用需求; ② 主卧套间功能和面积不能满足业主对于休息和娱乐的规划; ③ 次卧和公卫的功能配置不在业主需求范围内,改造为其他功能空间使用。
卧室收纳空间 约为 23.51m3 23.51m3储物空间 ≈ 477个21寸Rimova行李箱 公共收纳空间 约为 8.1m3 8.1m3储物空间 ≈ 164个21寸Rimova行李箱
意向氛围 Results show
|
精华推荐
换一换


这个二人世界的感觉不错,成功用设计拒绝了来客,清净有格调。