本帖最后由 麻吉空间设计 于 2021-3-24 09:31 编辑
设计理念 Design concept 删繁去简,去伪存真 追求感官上的素净整洁 注重品味中的优雅格调 低调奢华,时尚与传统 令人享受安静的生活气息 设计信息 Design information 设计主持 :傅晓 主案设计 :傅晓 设计面积 :230㎡ 项目地址 :安徽省合肥市 巴黎都市 服务团队 :麻吉空间联合设计机构 总监组 效果图展示 Show effect chart 平面设计效果图
玄关
玄关处,采用简单低调的设计,为房间留了一些空白,也为生活留一些空白。相同的整体一致的基调,细节处又有自己的特点,让玄关成为一个融合又独立的空间。 极简的珍珠白演绎出一种轻奢质感,干净而又纯粹,呈现了极大的包容性。 餐厅
餐厅通过细节支撑着整个空间的气质,柔软的窗帘,坚硬石材,灰蓝色与金色的碰撞,灯光与阳光的交融,都为整个空间添上一笔浓重的色彩。 高级灰和爵士白,搭配餐桌餐椅的金色支架,大理石餐桌,为空间散发出高贵气质。酒柜的玻璃门搭配柜内灯管把时尚气息展现的淋漓尽致,精致的生活从餐厅开始。 客厅
客厅处,在干净简洁的基础上采用玫瑰金的元素作点缀,另外当然也少不了线条的叠加,墙面与顶面都会采用不同规格不同形式的线条来体现轻奢风的一些特点。 摒弃了过多的约束,摆脱了沉闷的装修格局,让空间更加开放现代与古典的融合。 卧室
主卧室,空间明亮柔和,深色的家居颜色配上柔软的灯光,酝酿出自然舒适的感受。浅色的基调、深色的家居,线条的横竖,构成整个卧室呈现出一种宁静的氛围。 整体设计没有采用任何过于抢眼的颜色,灰色、浅咖啡色相互映衬,家具的组合使卧室看起来较为理性、沉静。花瓶中的一抹绿色,营造出品质生活的高尚感。 户型分析 Information analysis
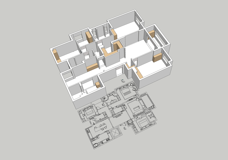
①. 玄关对称的设计体现出整个空间的简洁大气,使整个空间富有一种仪式感; ②. 客餐厅中间宽大的哑口,可以让两边的光线充分的进入到室内,保证最大限度的采光; ③. 中西厨开放式餐厅的设计,家人还可以带着孩子在餐厅写作业或者玩耍,无声地陪伴也是莫大的支持; ④. 主卧的功能划分明确,独立的衣帽间和卫生间,为夫妻二人提供私密的空间; ⑤. 子女房与主卧划分在临近的空间内,便于夫妻二人照看孩子; ⑥. 客房的设计集休闲、休息、书房和储物于一体,增加了空间的使用率。
收纳空间展示
|
精华推荐
换一换


发表评论0