设计理念 Design concept 很多时候,设计师都在探索空间的极致 以便在空间中赋予纯粹的艺术 同时又令阳光、空气和人的活动能够自由流动 家具物体与软装色彩的结合能够建立稳定性 当心爱的空间被阳光所笼罩时 生活的色彩也随之变得更加饱和 设计信息 Design information 设计主持 :傅晓 主案设计 :傅晓 设计面积 :240㎡ 项目地址 :安徽省合肥市 恒大华府 服务团队 :麻吉空间联合设计机构 总监组 效果图展示 Show effect chart
就生活而言,空间更多时候像一个大容器,盛放着一家人的生活物品,记录着他们的喜怒哀乐、生活轨迹、个人喜好。 而玄关,则是一瓶红酒的木塞,大小、颜色、材质都得恰到好处,适合才是最完美的。
设计师以居者的视角从生活中提取色彩,整体空间简洁明净,不囿于风格,不随波逐流,在低调的细节充分表现,打造一处可观可赏的心灵安放之所。
餐厅整体色调呈现分割状态,素雅且大色块的运用使得空间显得沉稳,彰显出华丽与高雅的气息。 不同材质的运用可以影响空间的整体质感与文化格调,每一种材质都有自己独特的语言,他们的质感使空间氛围感更强,美感得以提升。
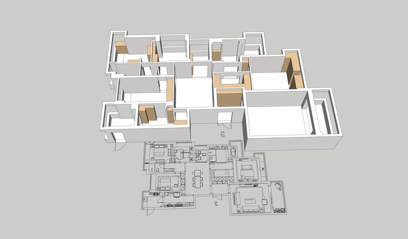
真正的生活品质是回到自我,清楚地衡量自己,而后更好地追求生活与自我。在主卧的休憩空间中,我们抛弃了大部分的娱乐设备和电子产品,还原一个睡眠的本质。 物品承载着记忆,而空间容纳着生活,对于主卧来说,生活就是睡眠。 户型分析 Information analysis
原始户型由于是精装房(二手房),除了衣帽间符合业主的基本需求,其余空间储物空间均缺失,各空间也没有合理的布局规划,使空间利用率低。 设计师通过对空间比例的重新规划,合理安排业主需求的空间及功能,在最大化实现功能需求之余融入更多的增值空间。
|
精华推荐
换一换


发表评论0