麻吉设计|意式现代——置地双玺效果图

仅供分享不做任何商业用途,版权归原作者所有,谢谢配合。

马上注册,结交更多好友,享用更多功能,让你轻松玩转社区。

您需要 登录 才可以下载或查看,没有帐号? 注册

x
本帖最后由 麻吉空间设计 于 2021-3-24 10:34 编辑

首图.jpg

设计理念
Design concept

每个家都有属于自己的情感抒发方式
我们对于家的设计
不仅是追求空间形体之美
更需要包容生活的多样和多元
简洁中的变化性
纯粹中的复杂性
给予主人带来丰富美妙的体验

设计信息
Design information

设计主持 :傅晓
主案设计 :傅晓
设计面积 :437㎡
项目地址 :安徽省合肥市  置地双玺
服务团队 :麻吉空间联合设计机构 总监组
效果图展示
Show effect chart

CAD平面-负一楼11.jpg

02会客厅.gif1.gif

03电视背景墙1.gif

04娱乐区1.gif

会客厅小景.jpg

在原有的大开间空间外,我们将天井纳入室内,结合透明的玻璃顶面,朝晖可见日月,风雨旦晓轮回。

08楼梯间1.gif

楼梯间小景.jpg

原始楼梯的踏步陡且拥挤,位置也不理想,业主希望能够在设计中考虑更换。
结合上下空间的动线分布,我们重新将楼梯进行了设计,让踏步更加的缓和且具备展示的美感。

书房.jpg

书房内景.jpg

书房空间的设计我们考虑男主游戏办公与家人的互动关系。顶部空间我们增加了整面的玻璃栈道,将一楼平台靠近阳台位置的楼板打开引入日光,补充负一层的采光。

CAD平面-一楼22.jpg

03餐厅1.gif

02餐厅1.gif

餐厅位置借用了原有墙面与其他卧室的空间在墙面中嵌入展示酒柜。

04西厨.jpg

休闲区.jpg

木质与大理石的“邂逅”,奠定了品味调性,外加玻璃墙砖和天井的应用,使得不同材质间的温柔碰撞,能够强化家居空间的质感。

06主卧对床单视角.jpg

09衣帽间.jpg

05卫生间单视角2.jpg

除了常规的浴室柜壁龛,在干区空间内,根据业主不同空间的收纳需求,我们还设计了许多其他的独立收纳空间(最后落地的实景后会给大家详细介绍)
床头小景.jpg

在主卧套房中,我们努力平衡空间的尺度关系,在衣帽间、盥洗区、休息区三个功能性为主的小空间彼此连通的基础上,使得整体主卧的私密性得到保障。

00儿童房1.gif

这是业主夫妻让女儿自己设计的一间“多功能卧室”,面对家的打造,她们的想法更为感性。当你通过每天观看、使用和感受其中时,如果不是你自己选择的,多少还会有遗憾。
为此,我们还专门为女儿房设计了独立的衣帽间和盥洗室,更大程度上强化孩子的隐私意识。

户型分析
Information analysis

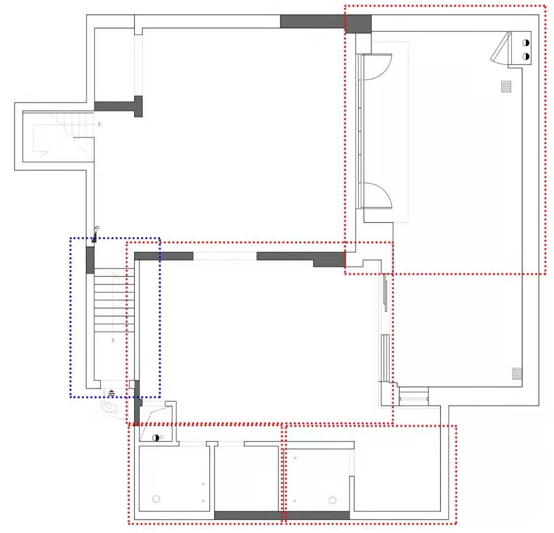
一层户型.jpg

①:一层空间动静区动线交叉混乱,空间配置一般,舒适性不好。
②:入户过道狭长,利用率低;楼梯口正对主卧门,私密性差。
③:原户型楼梯窄小,台阶坡度高,不利于老人和小孩上下通行。
④:客厅位置面宽较窄,空间不够开阔;主卧布局局促,不满足业主的需求;客房暗卫使用感差;室外花园需要优化设计。

一楼拆除2.png

一楼新建.png

负一户型.jpg

①:负一层的空间规划布局不清晰,内里客厅的采光极其不理想。
②:双卫生间和设备间设计,空间都非常局促,实际使用效果差。
③:地库入户楼梯,坡度过长,台阶过陡,基本无自然光源。
④:天井花园检修口必须入户,影响业主私人生活。

负一拆除.png

负一新建.png

一层收纳.gif

负一收纳.gif

卧室收纳空间
28.8m3 + 23.65m3 = 52.45m3
52.45m3储物空间 ≈ 1157个21寸Rimova行李箱
公共收纳空间
25.7m3 + 25.06m3 = 50.76m3
50.76m3储物空间 ≈ 1029 个21寸Rimova行李箱

1行李箱.jpg

意向氛围
Results show

2.jpg

3.jpg

4.jpg

5.jpg

6.jpg




精华推荐
换一换

发表评论0

麻吉设计|意式现代——置地双玺效果图
拓者推荐
  • CCD--580㎡福州建总雍湾
  • 观享际 x 北谷地产
  • 会讲方案的设计师,行走的印钞机
  • 郝泽伟设计工作室 | 《木朴》
  • 【CCD+SRD】苏州·双湖玫瑰园
  • CCD-华润 CCBD 889㎡设计方案
  • 【召禾设计]天际江景超大平层方案
  • 【WSD世尊】建发·云启玉诸
  • CCD-华润玺宸上院中叠样板间
  • CCD-武汉绿城外滩玫瑰园别墅
  • 2025拓者年费+案例Vip会员说明!
  • 【 拓者年费--CAD图纸】
  • 【 拓者年费--户型方案】
  • 【 拓者年费--豪宅视频】
  • 【 拓者年费--灵感图库】