本帖最后由 麻吉空间设计 于 2021-3-24 11:04 编辑
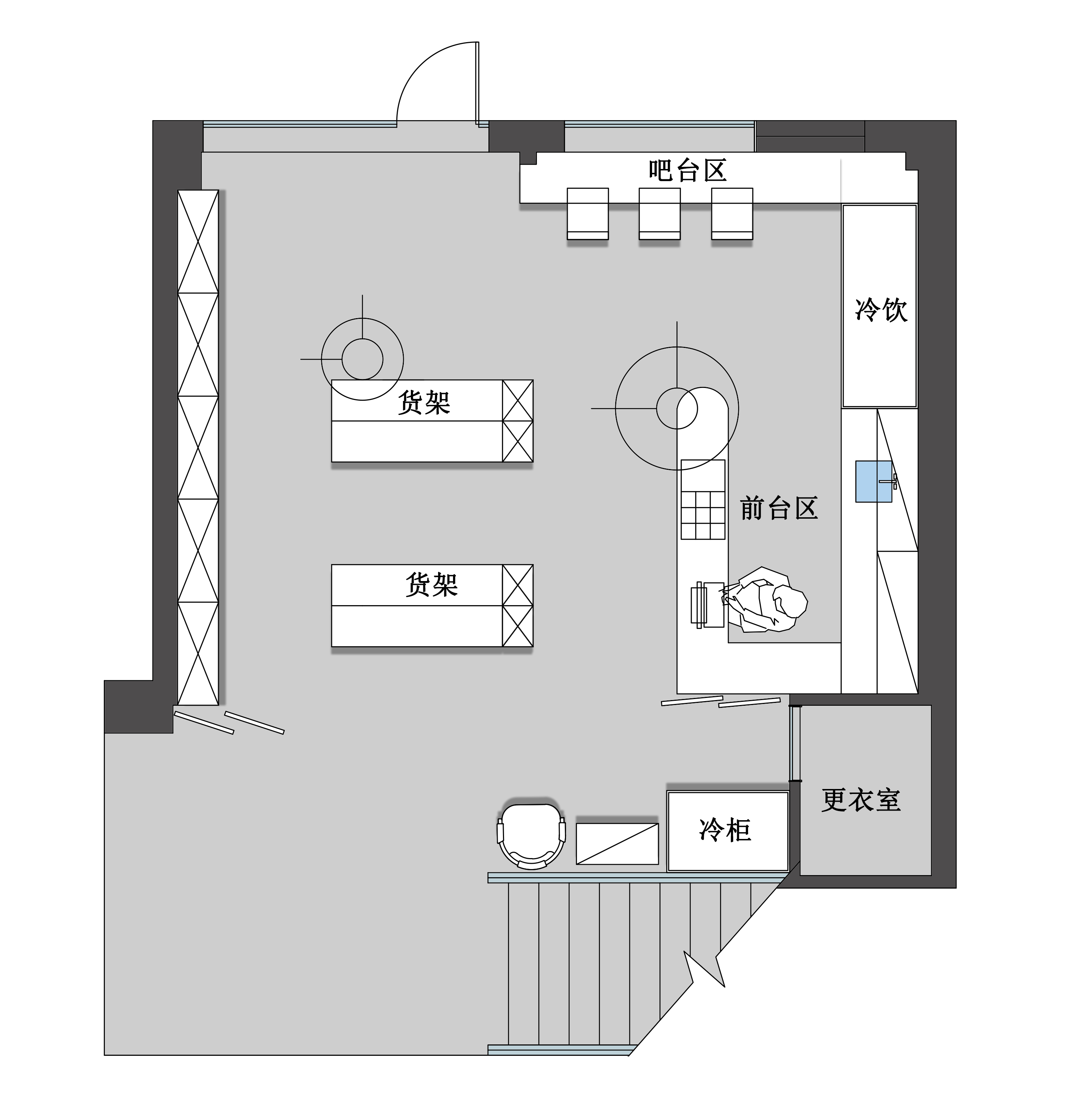
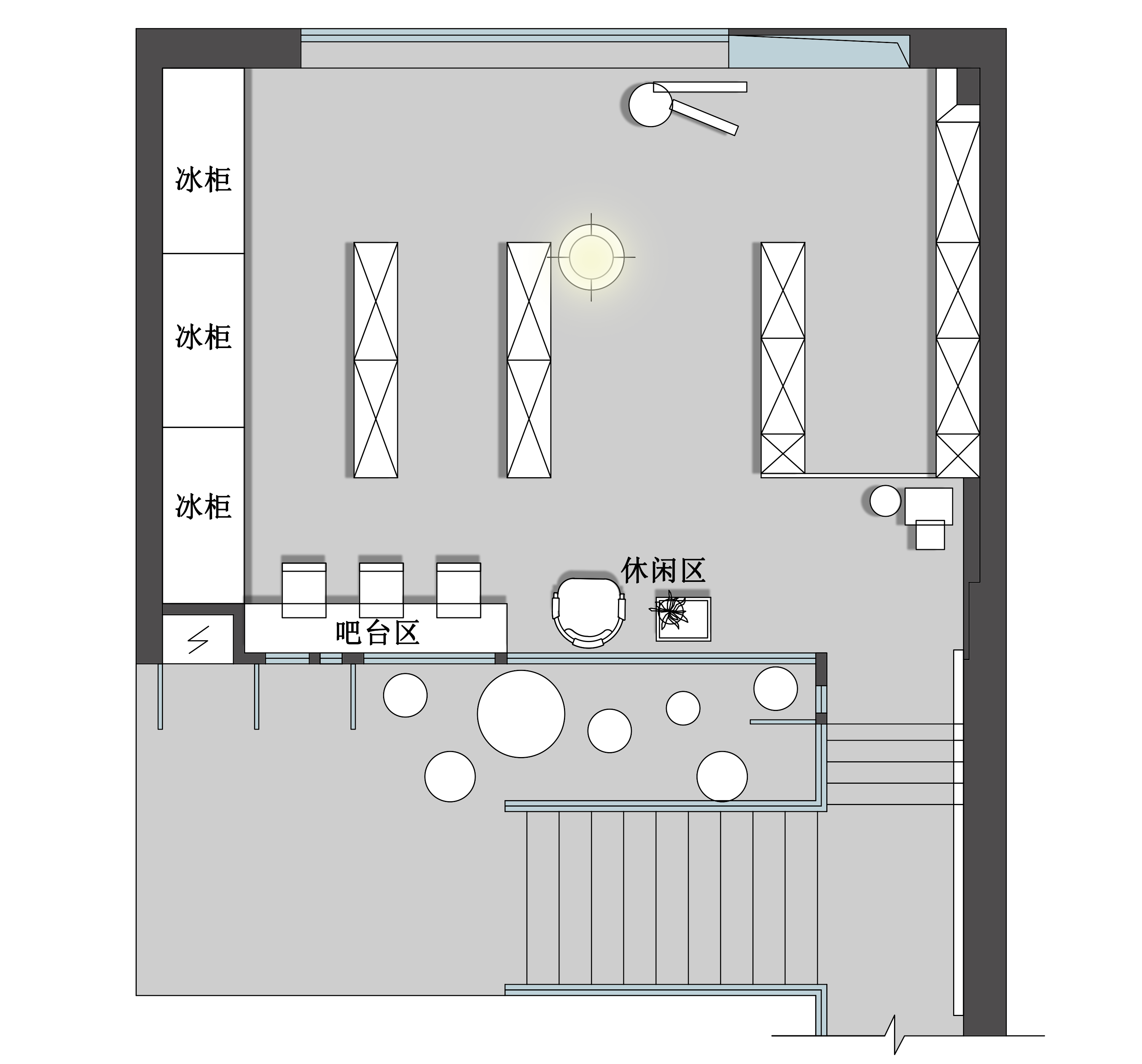
设计理念 Design concept 审美文化和时尚趋势,是具有时代性的 在众多艺术家的创作推广后 许多亚文化的元素经过“自下而上”的方式传播开 当街头文化反哺社会阶层时尚圈 商业消费的风格也就随之发生改变 设计信息 Design information 主案设计 :傅晓 设计面积 :120㎡ 项目地址 :安徽省合肥市 服务团队 :麻吉空间联合设计机构 总监组 效果图展示 Show effect chart
在亚文化和年轻的气息簇拥下,弥漫散乱的霓虹灯光,摩肩接踵的人群,超越时代科技的空气显影,交织的复古气息……这是兴起于上世纪的赛博朋克风格。 利用各种鲜明配色的灯光软装搭配深沉暗色的硬装,凸显出金属与现代感的气息,四处交错的灯光拉出强烈的科技感,创造出年轻人喜欢的网红店铺。
复古的霓虹灯招牌,玻璃面造型隔断,水波金属板模拟街道,浮光掠影,身临其境。
视觉上用了蓝紫青的冷色调为主,用来表现未来的科技感,靠霓虹灯的效果来辅助表现。 幽静的灯光效果最能装扮环境氛围,配合台阶上的装饰灯,让人身心都沉静其中。
商品货架集中区,我们在视觉艺术上进行了最明显的色相色差对比。 整体的色调偏暗,高光使用红色系,暗部则用蓝绿色系,打光必须赛博,俗称左右红蓝打光法。
老旧风格的广告牌,堆砌的黑白彩色电视,多彩的艺术圆灯,让我们可以将图像以失真、错位、破碎等特点来展示赛博朋克的故障风(科技风的艺术表现形式)。
一方舒缓身心的时光小站,暂停匆忙的脚步,放松下自我,补充下能量。
划开美颜相机,寻觅到一处适合自己穿搭的室内小景,摆好POSE,咔嚓一下,做小红书上最好看的崽~
工装的人居空间属性解析虽然较弱于家装,但是却有着其他完全不同的定位。受众不同,项目价值不同,环境价值更加不同,独特的艺术表现形式,是设计师定位工装的解读的重要部分,让材料、灯光、材质极致趋向完美,才会让作品的价值最大化。 意向氛围 Results show
|
精华推荐
换一换


有模型没 麻老师