麻吉设计|现代——国贸天悦效果图

仅供分享不做任何商业用途,版权归原作者所有,谢谢配合。

马上注册,结交更多好友,享用更多功能,让你轻松玩转社区。

您需要 登录 才可以下载或查看,没有帐号? 注册

x
本帖最后由 麻吉空间设计 于 2021-3-24 14:44 编辑

首图.jpg
设计理念
Design concept

居住者对于自己的生活
有着怎样的期待?
这是设计师设计概念的前提
营造一个空间
让设计回归到家的本源
让其中的人就生活展开温暖的对话

设计信息
Design information

设计主持 :傅晓
主案设计 :傅晓
设计面积 :120㎡
项目地址 :安徽省合肥市  国贸天悦
服务团队 :麻吉空间联合设计机构  总监组

效果图展示
Show effect chart

国贸天悦-模型22.png

5.jpg

空间对比上,客厅和餐厅由过道这条中线自然的区分开,成为俩个半开放式的空间,却互不影响。使得客餐厅更加流畅通透,视觉效果更具有开阔性。

6.jpg

7.jpg

在设计上还是会有所偏重,突出生活的本质。简洁的线条,大方的配置,皮质的深黄色沙发搭配黑桃木的茶几,体验现代家居的时尚感。

9.jpg

灰白偏黑的木地板彰显自然的格调,电视背景墙用了一整面的实木构造,点缀白色视觉面的电视柜,金色的轻奢摆件,金属感的时钟,不繁琐却个性十足。

10.jpg

从入户玄关到内居卧室,用了大面积的强化木地板铺设,平衡了整体的空间色彩配比,这样使得后期软装操作空间更大。

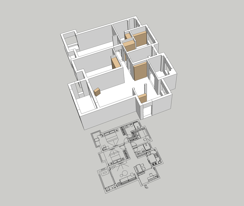
户型分析
Information analysis

微信图片_20210319141830.png

①.入户将玄关连接的空间打通,增加了储物空间,使入户的光线变得更加通透。利用了空间作为吧台和厨房餐厅形成互动的关系,让户主有一个休闲空间;
②.把原来的厨房,餐厅的位置重新调整,设计了嵌入式的大冰箱。通过空间的改动,厨房收纳空间变大;
③.原始平面图一进门就可以看到主卧及卫生间的门,缺少私密性,通过我们的设计将主卧的门改到了左侧,不仅保护了户主的私密性,增大了主卧空间的利用,使主卧变成了一个套房,增加了动线的便利,还使空间的延伸感加强;
④.为了符合户主的需求,我们把原始平面图的移门给去掉,增加了一个次卧,方便以后空间的使用。

无标题1.gif



精华推荐
换一换

发表评论0

麻吉设计|现代——国贸天悦效果图
拓者推荐
  • CCD--580㎡福州建总雍湾
  • 观享际 x 北谷地产
  • 会讲方案的设计师,行走的印钞机
  • 郝泽伟设计工作室 | 《木朴》
  • 【CCD+SRD】苏州·双湖玫瑰园
  • CCD-华润 CCBD 889㎡设计方案
  • 【召禾设计]天际江景超大平层方案
  • 【WSD世尊】建发·云启玉诸
  • CCD-华润玺宸上院中叠样板间
  • CCD-武汉绿城外滩玫瑰园别墅
  • 2025拓者年费+案例Vip会员说明!
  • 【 拓者年费--CAD图纸】
  • 【 拓者年费--户型方案】
  • 【 拓者年费--豪宅视频】
  • 【 拓者年费--灵感图库】