两个现成方案的对比

2021-3-27/ 户型方案/ 户型交流/ 只看大图 阅读模式
仅供分享不做任何商业用途,版权归原作者所有,谢谢配合。

马上注册,结交更多好友,享用更多功能,让你轻松玩转社区。

您需要 登录 才可以下载或查看,没有帐号?注册

x
业主的要求1,大部分时间两个人生活,儿子孙子辈一般在外地,春节或暑假回。2,要有较多贮藏空间,杂物较多,方案一生活阳台斜面部分改作贮藏间。3,生活空间开阔舒适。(业主是政府领导,55岁。)阁楼生活阳台两侧各俩个舒屋面阁楼,高点1.75米左右,低点0.85左右,另两个露台一长方一正方,均四面有墙,2.7米左右。

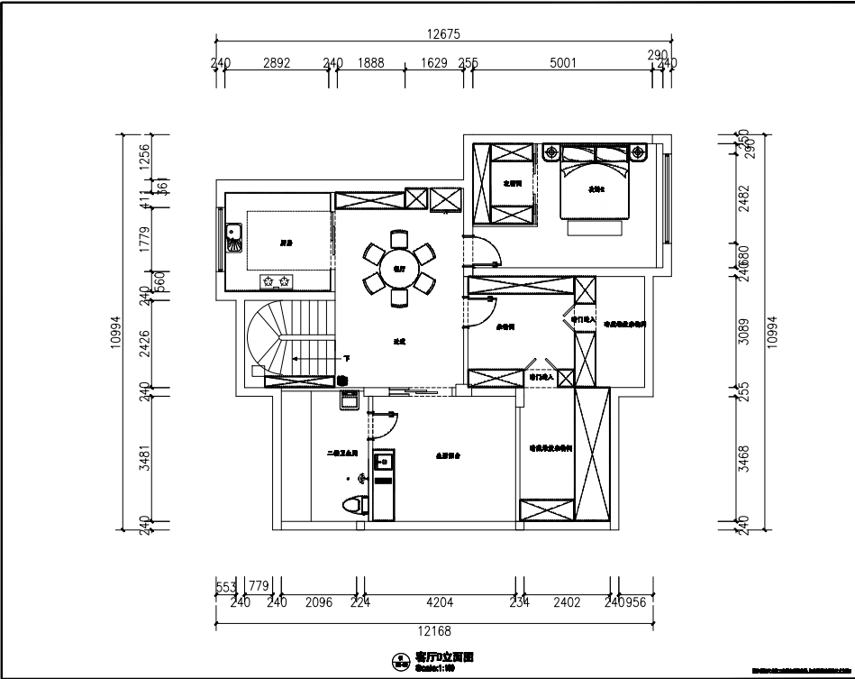
一层1

一层1

阁楼1

阁楼1

一层方案2

一层方案2

阁楼方案2

阁楼方案2

 

精华推荐
换一换

发表评论0

两个现成方案的对比
拓者推荐
  • 2026拓者 CAD户型方案 发布
  • 赛拉维:安顿生活的栖心之境
  • Atelier MKD|极简主义风格!
  • 东莞保利首铸鹭湾185样板间!
  • 【梁志天】西安曲江·九曲松间
  • 无间-上海汤臣君品合院方案
  • 君品-汤臣金桥花园项目方案
  • 无间-上海大宁中建玖上琅宸
  • HWCD-烟台洲際酒店深化方案图册
  • 琚宾新作-资兴东江湖度假酒店
  • 2025拓者年费+案例Vip会员说明!
  • 【 拓者年费--CAD图纸】
  • 【 拓者年费--户型方案】
  • 【 拓者年费--豪宅视频】
  • 【 拓者年费--灵感图库】