|
本帖最后由 安定空间设计 于 2021-4-16 11:45 编辑 ANDING ![]() 茶心安处 就是茶家 01公共区域 ![]() 门厅的隔断采用陶土做成整面墙的陶柱子,故而取名“陶然沁”。 The partition of hall uses pottery clay to make the pottery column of whole face wall, so name"pottery however Qin". ![]() 禅,主张的不止是一种素朴的生活方式,更强调尊重自然的原始美,推崇人与环境和谐共生的简致生活。 Zen advocates not only a simple way of life, but also a simple life with respect for the primitive beauty of nature and the harmonious coexistence of man and environment. 02茶空间
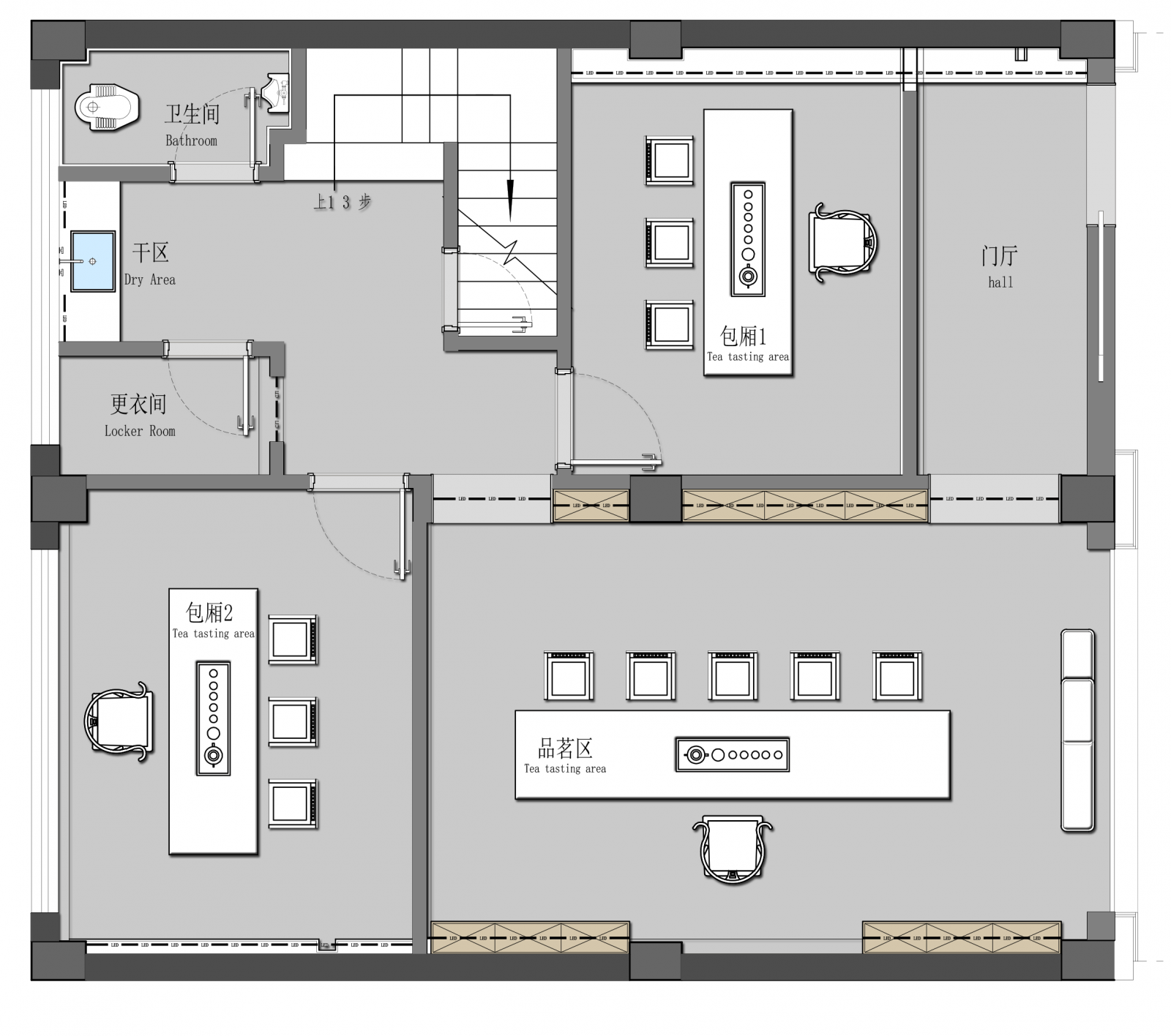
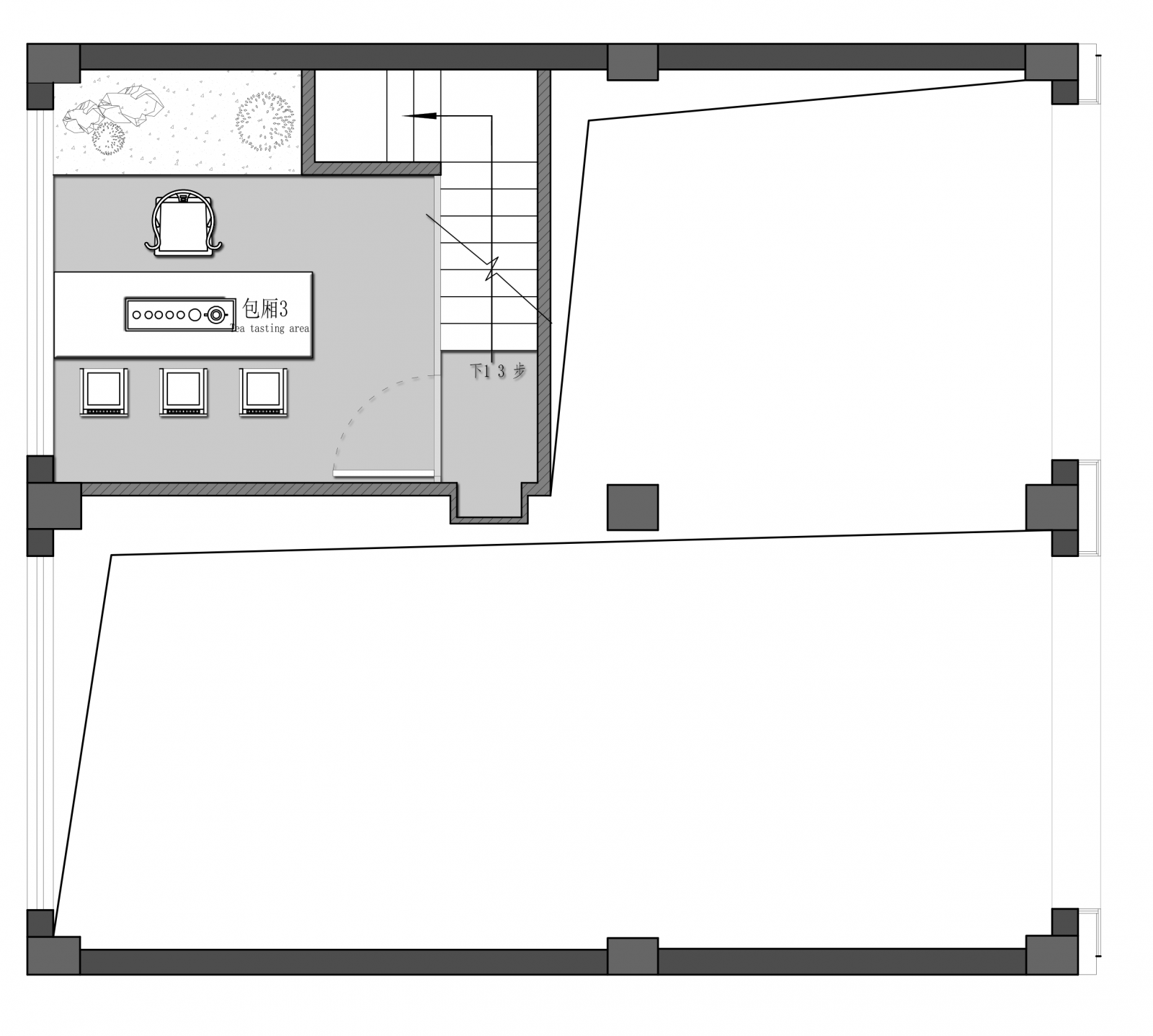
![]() 静穆袭人的松树,赋予空间无限的生长力和生命力,深刻演绎“静中的极动”。 The Pine Tree that quietly and silently attacks people endows the space with infinite growth power and vitality, and deeply deduces "the extreme movement in quietness" . ![]() ![]() 在东方文化下,从最早的茶摊到茶馆,是一种“没有空间的茶室”到有的变化,这其中空间的有无带了对场所体验的明确性,空间让喝茶方式的产生新的体验。 In the oriental culture, from the earliest tea stalls to teahouses, it is a "tea room without space" to some changes, in which the presence or absence of space brings the clarity of the experience of the place, and the space makes the way of drinking tea have a new experience. ![]() 茶室的存在,是当人进入这个空间后,品茶观景,可以对自然与茶道有更多的理解。文人茶客,来此烹茶煮酒,围炉夜话,品一处天地,思一方清净。 The existence of teahouse, is when the person enters this space, savors the tea to view, may have the more understanding to the nature and the tea ceremony. Literati tea guest, come here to cook tea and wine, talk around the stove at night, taste a world, think a party clean. ![]() 03转呈 ![]() 由于卫生间区域层高较矮,设计师通过吊顶面艺术漆的镜面折射做法,来延伸空间感。 As the height of the bathroom area is relatively low, the designer extends the sense of space through the mirror refraction of the ceiling art paint. ![]() ![]() ![]() 楼梯处利用线性灯手法来突出空间的禅意感。 The staircase uses linear light to highlight the zen sense of space. 04空间布局 ![]() ▲一层平面布置图 ![]() ▲二层平面布置图 项目地点 | 福州 项目名称 | 陶然沁 项目面积 | 100㎡ 设计团队 | 福建安定空间设计有限公司 ![]() 福建安定空间设计有限公司创立于2016年,致力于室内空间规划设计及施工,专注于高端住宅空间,商业空间、办公空间设计与施工服务。在“一切让客户安心”的理念下,用最专业的设计及服务,为客户提供最满意安心的作品。以安定空间设计研究所为管理核心和创意源泉,打造有家装、公装、软装、园林三大业务板块,为广大客户带来高品质、专业化、精细化的整装服务。 |
精华推荐
换一换

















发表评论0