连排小别墅,来交流一下

2021-4-21/ 户型方案/ 户型交流/ 只看大图 阅读模式
仅供分享不做任何商业用途,版权归原作者所有,谢谢配合。

马上注册,结交更多好友,享用更多功能,让你轻松玩转社区。

您需要 登录 才可以下载或查看,没有帐号?注册

x
本帖最后由 OUJIAN 于 2021-4-21 13:33 编辑

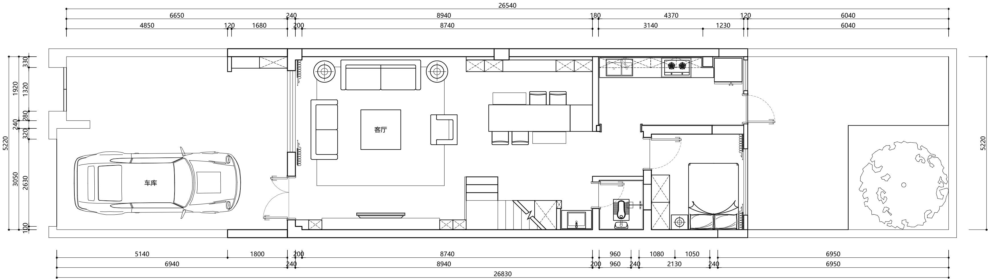
客户想在一楼要个卧室,中空不要,已经有两稿方案了,想让各位再给些思路

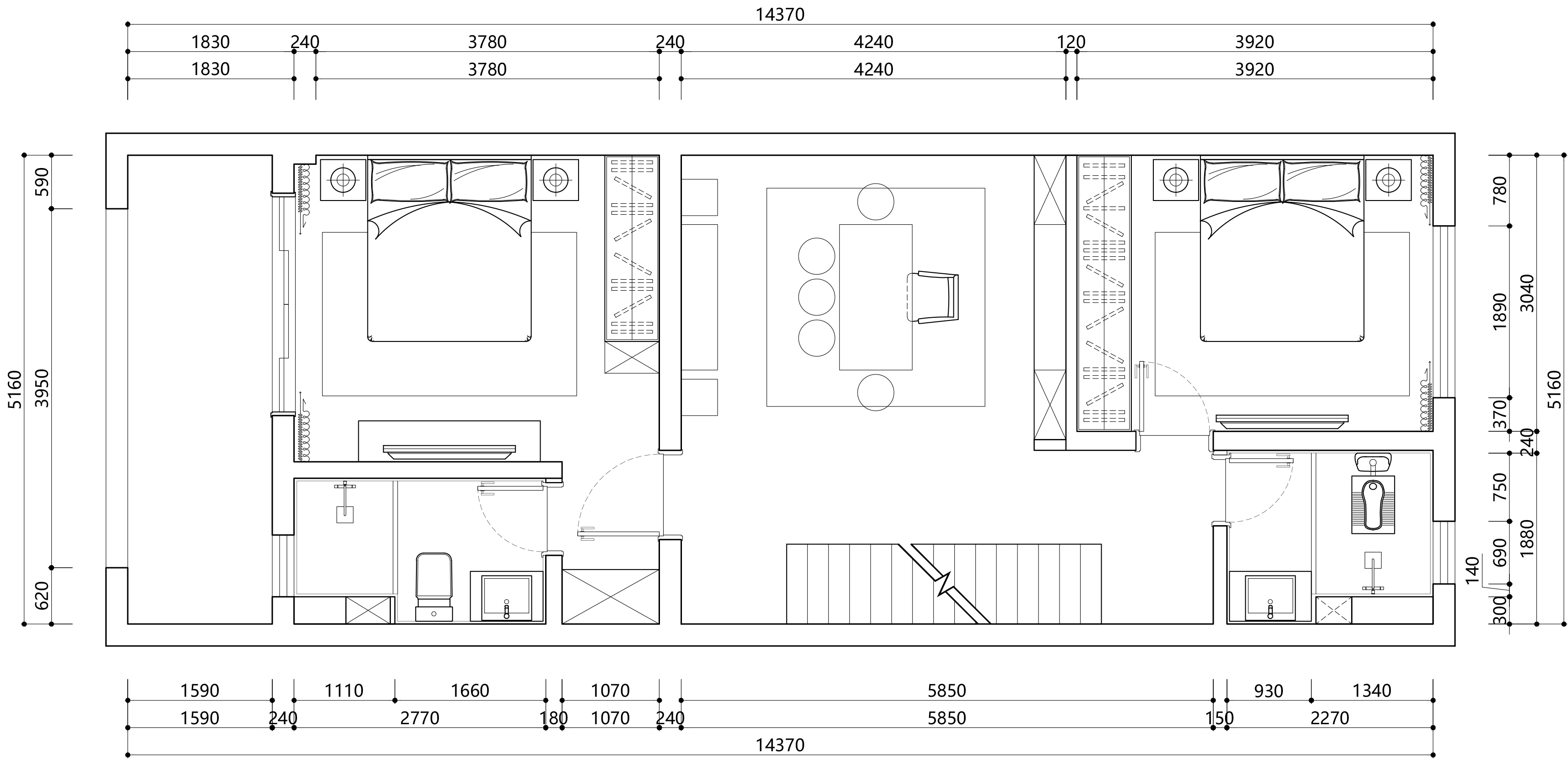
二楼

二楼

三楼

三楼

一楼

一楼

 

二楼.pdf

68.37 KB, 下载次数: 53

三楼.pdf

64.4 KB, 下载次数: 52

一楼.pdf

80.99 KB, 下载次数: 63

1.rar

123.48 KB, 下载次数: 74

标签: 户型交流
精华推荐
换一换

发表评论1

连排小别墅,来交流一下
拓者推荐
  • 2026拓者 CAD户型方案 发布
  • 【武汉站—“樱”你而来】获客实操
  • 【武汉站—“樱”你而来】户型优化
  • 【武汉站—“樱”你而来】风水
  • 【梁志天】西安曲江·九曲松间
  • 无间-上海汤臣君品合院方案
  • 君品-汤臣金桥花园项目方案
  • 无间-上海大宁中建玖上琅宸
  • HWCD-烟台洲際酒店深化方案图册
  • 琚宾新作-资兴东江湖度假酒店
  • 2025拓者年费+案例Vip会员说明!
  • 【 拓者年费--CAD图纸】
  • 【 拓者年费--户型方案】
  • 【 拓者年费--豪宅视频】
  • 【 拓者年费--灵感图库】