|
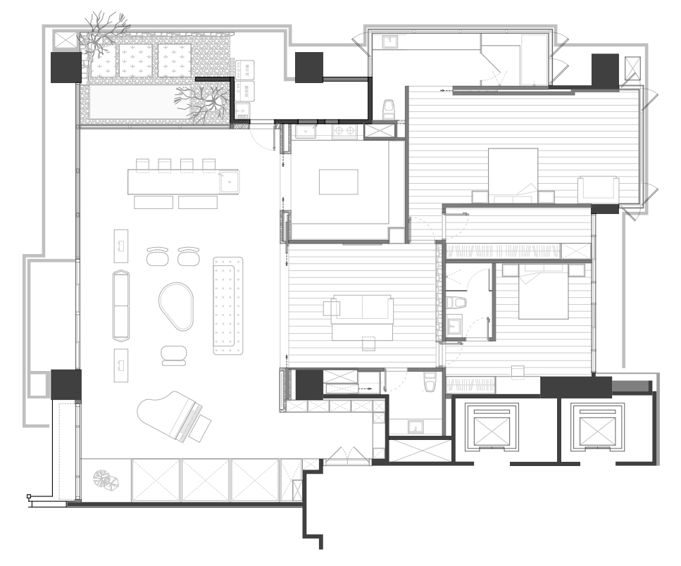
主案设计 / 吴风远 Principal Designer / Umee 项目地址 / 台北 Location / Taipei 项目面积 / 295㎡ Area / 295sqm ////////// 平面规划 ////////// 空间形式 何为极简?“物即其本身。”——这是彼得·沃克极简的解读。极简更关注器物本身,去除那些影响器物美感的扰项。如同生活需要简单、纯粹,有正念地去感受,这便是为何极简。 为何极简?留住生活本真,让生活美得纯粹。经过繁杂的上班路上,来到繁杂的工作环境,带着疲惫的身躯,走回繁杂的归途……这大概是每一位追梦人一天的精神写照。 一个极简风的居所,是对一天杂念的洗涤与归置。因为极简,绝非简单堆砌,那就一种最富足的追求,去除了其他复杂堆砌的干净空间,可让居者静静感受生活带来的最简单的本相,全心全意地感受美好生活的每一个精致细节,这才是最富足的状态。 净白与简单花纹大理石仿佛是最默契的搭档,互相配合,极简却不单调,精准摸到喜好。留白的墙面与大理石连成一片,没有一丝多余的感觉。抛去繁杂的色彩搭配,只留下最原始的干净利落,这便是最有态度的优雅。处在这样的空间之中,就连心态也会不同:更自信、更从容。 本案业主是台北著名的营养师,男性,50岁左右的单身贵族,喜欢古典音乐,世界旅行,和收藏油画、艺术品。如真空管,此物是二戰時德國設計的電訊使用器材;挂画和地毯都是欧洲旅行时带回来的个人收藏。无不彰显着居者的艺术器物本身正念欣赏的品味追求和对生活的热爱! 丨吴风远先生摄于此项目地 丨玄关 / UAD出品 / - END - |
精华推荐
换一换



发表评论0