两房改三房,小户型改造请大神指点一二,回帖有奖

2021-5-6/ 户型方案/ 户型交流/ 只看大图 阅读模式
仅供分享不做任何商业用途,版权归原作者所有,谢谢配合。

马上注册,结交更多好友,享用更多功能,让你轻松玩转社区。

您需要 登录 才可以下载或查看,没有帐号?注册

x
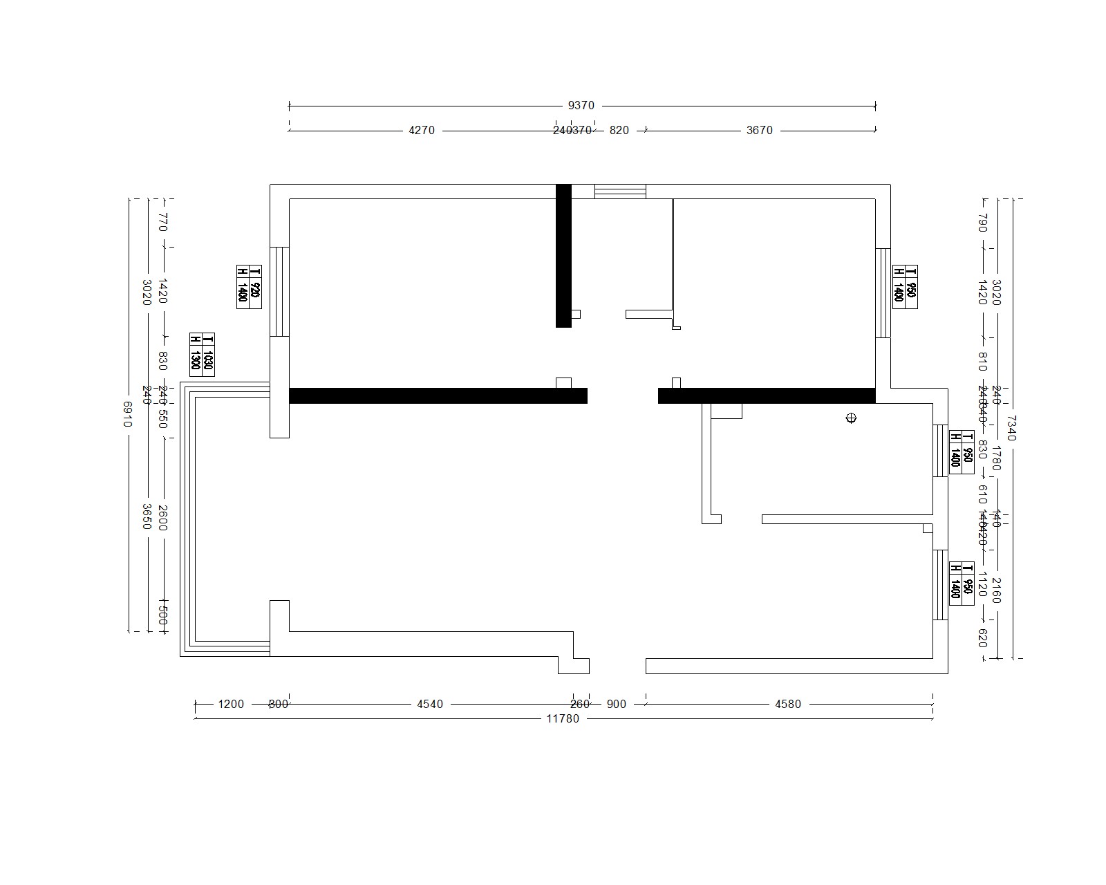
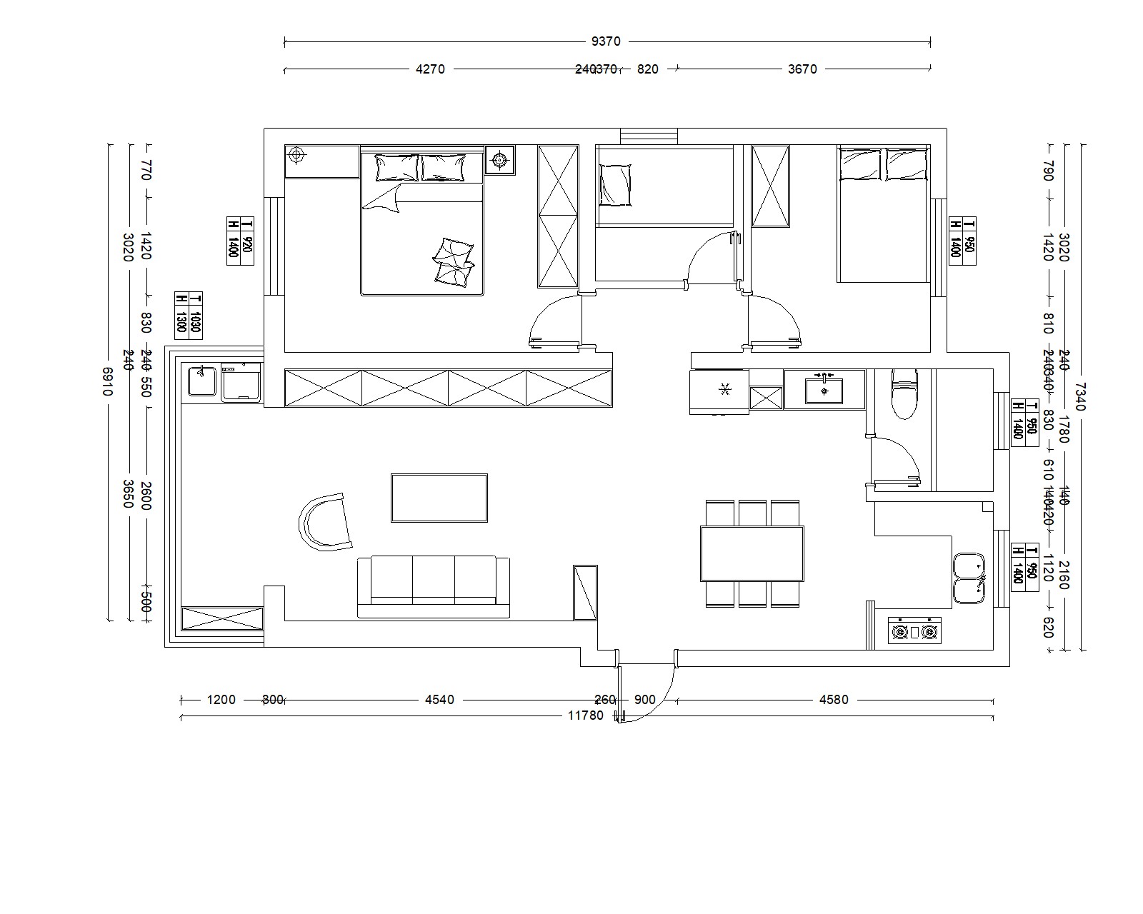
1.卫生间干湿分离
2.两房改三房
江虹花园-模型1.jpg
江虹花园-模型2.jpg

 

精华推荐
换一换

发表评论8

  • 3:00AM 2024-2-21 17:15:05

    卫生间、厨房均不能做房间。一个风水问题。一个卫生间管道多噪音大。一个排烟管。

  • llong1988 2022-9-20 14:52:52

    两个卧室中间的部分肯定是卫生间,管道多,而且噪音大,不适合当卧室。原来餐厅(现你第二稿厨房)的位置比较适合。改造难度小。

  • 筑境设计金小强 2022-3-24 22:17:30

    阳台开放出来结合客厅部分做榻榻米,然后客厅剩余部分做沙发区域,餐吧一体侧面靠近走廊区域挂电视,充分利用过道。

  • 张思雨 2022-2-18 15:40:27

    回帖奖励 +20 金币

    把厨房那改成卧室 会不会更好一点啊

两房改三房,小户型改造请大神指点一二,回帖有奖
拓者推荐
  • 2026拓者 CAD户型方案 发布
  • 赛拉维:安顿生活的栖心之境
  • Atelier MKD|极简主义风格!
  • 东莞保利首铸鹭湾185样板间!
  • 【梁志天】西安曲江·九曲松间
  • 无间-上海汤臣君品合院方案
  • 君品-汤臣金桥花园项目方案
  • 无间-上海大宁中建玖上琅宸
  • HWCD-烟台洲際酒店深化方案图册
  • 琚宾新作-资兴东江湖度假酒店
  • 2025拓者年费+案例Vip会员说明!
  • 【 拓者年费--CAD图纸】
  • 【 拓者年费--户型方案】
  • 【 拓者年费--豪宅视频】
  • 【 拓者年费--灵感图库】