小三房一个

2021-5-26/ 户型方案/ 户型交流/ 只看大图 阅读模式
仅供分享不做任何商业用途,版权归原作者所有,谢谢配合。

马上注册,结交更多好友,享用更多功能,让你轻松玩转社区。

您需要 登录 才可以下载或查看,没有帐号?注册

x
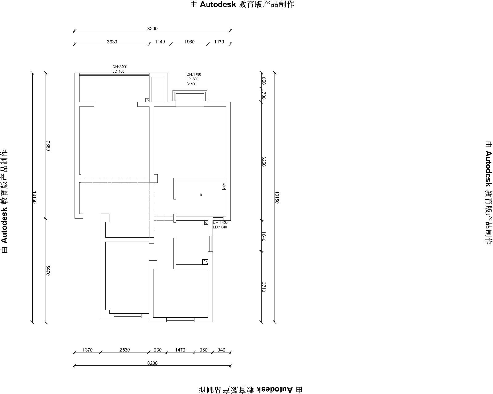
一个普通小三房,但是他这个厨房就很尴尬,跪求大佬们出手解救一下我这堵死的脑子.....

原始户型

原始户型

布局一 这个厨房不满意....

布局一  这个厨房不满意....

 

精华推荐
换一换

发表评论2

  • 在朋姜 2021-5-26 11:11:26

    这个厨房位置就很尴尬,餐厅也是,已经陷入盲区了...出不来了

    看下餐厅的墙能不能拆掉,把厨房餐厅救出来
小三房一个
拓者推荐
  • 明星杨采钰的家丨召禾设计
  • 洣图设计 | 国锐白玉茗艺墅!
  • 收纳设计【直播 1月29-31日】
  • 璞辉设计 | 重塑家的软装哲学
  • 柒筑设计|265㎡瓯江之畔
  • 无间-上海汤臣君品合院方案
  • 君品-汤臣金桥花园项目方案
  • 召禾设计-顶级私人豪宅方案
  • HWCD-苏州吴中区280合院
  • 召禾设计-绿城潮鸣东方
  • 2025拓者年费+案例Vip会员说明!
  • 【 拓者年费--CAD图纸】
  • 【 拓者年费--户型方案】
  • 【 拓者年费--豪宅视频】
  • 【 拓者年费--灵感图库】