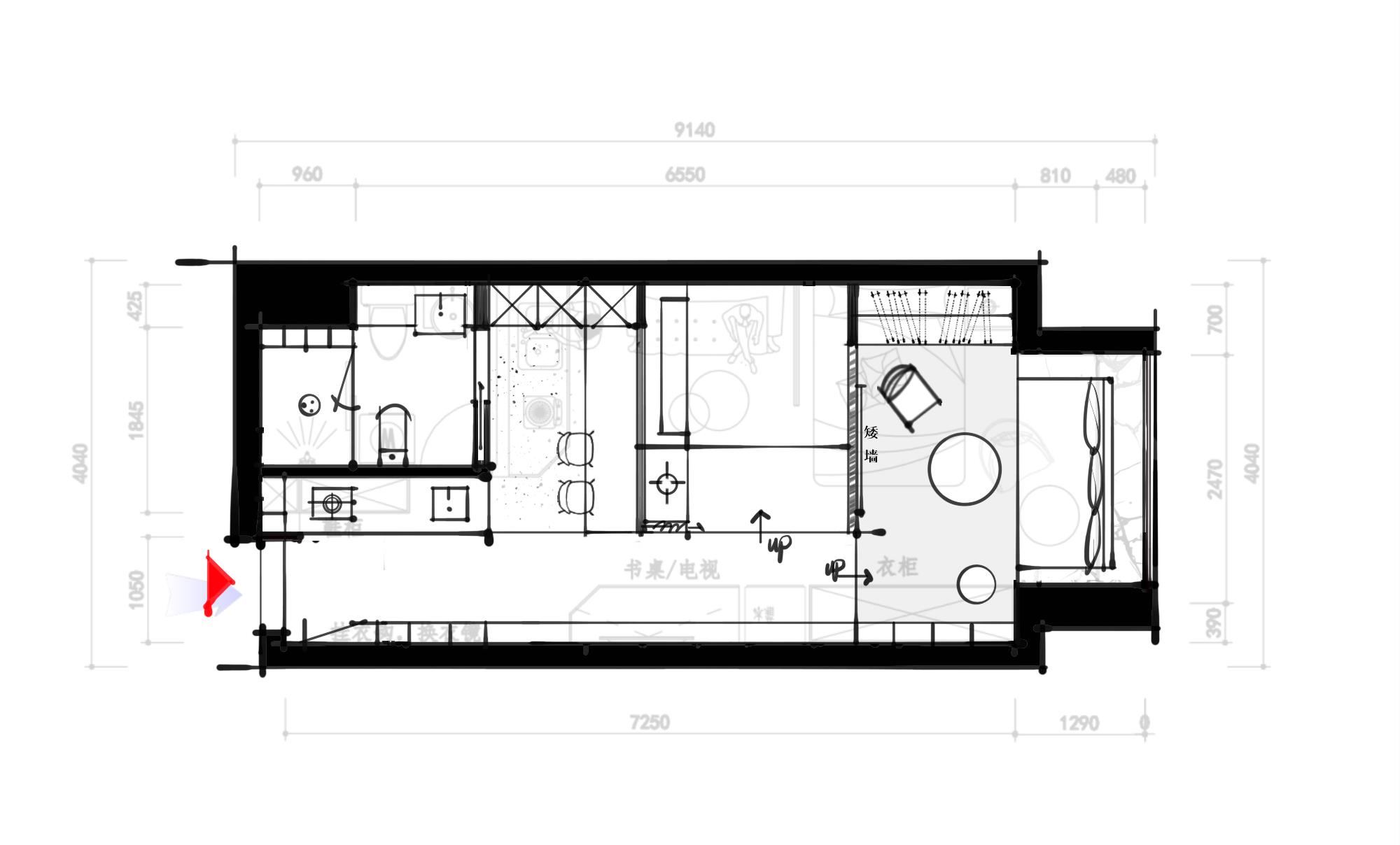
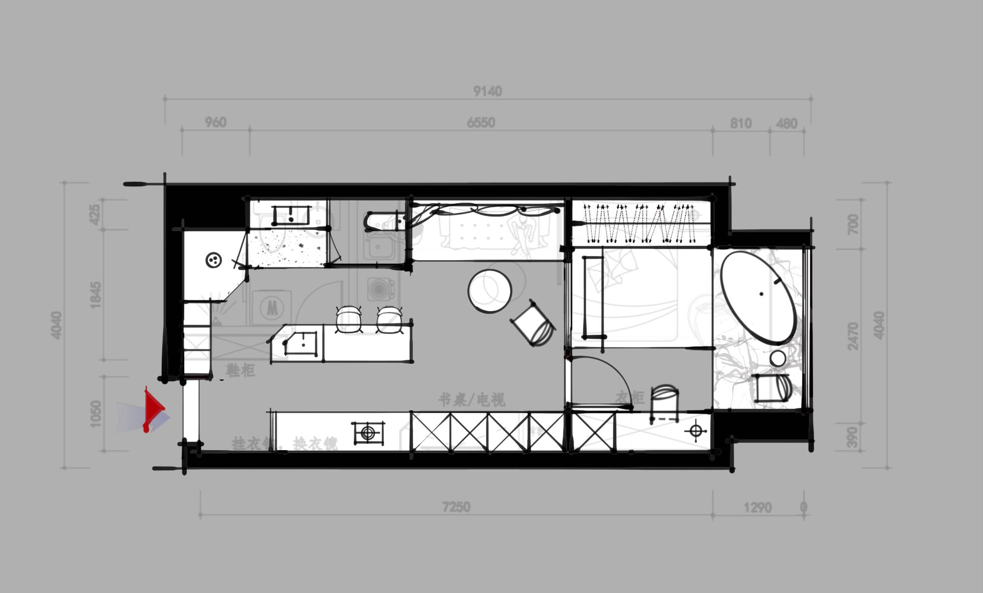
个人户型优化案例-NO.45

2021-6-14/ 户型方案/ 户型交流/ 只看大图 阅读模式
仅供分享不做任何商业用途,版权归原作者所有,谢谢配合。

马上注册,结交更多好友,享用更多功能,让你轻松玩转社区。

您需要 登录 才可以下载或查看,没有帐号?注册

x
本帖最后由 ZQ1993 于 2021-6-14 16:37 编辑


145759wem8myzsz12yys1g.png.thumb.jpg
1.jpg
2.jpg
3.jpg
精华推荐
换一换

发表评论12

  • 南国青沫 2021-6-17 13:50:53

    不考虑走水问题吗?浴缸走水能实施不,会不会层高太矮了,不是喷,是提出疑问

    楼盘空调位有排水管的,浴缸离空调位也不远
个人户型优化案例-NO.45
拓者推荐
  • 2026拓者 CAD户型方案 发布
  • 赛拉维:安顿生活的栖心之境
  • Atelier MKD|极简主义风格!
  • 东莞保利首铸鹭湾185样板间!
  • 【梁志天】西安曲江·九曲松间
  • 无间-上海汤臣君品合院方案
  • 君品-汤臣金桥花园项目方案
  • 无间-上海大宁中建玖上琅宸
  • HWCD-烟台洲際酒店深化方案图册
  • 琚宾新作-资兴东江湖度假酒店
  • 2025拓者年费+案例Vip会员说明!
  • 【 拓者年费--CAD图纸】
  • 【 拓者年费--户型方案】
  • 【 拓者年费--豪宅视频】
  • 【 拓者年费--灵感图库】