精华推荐
换一换
-
Cloud_W
2021-7-13 08:47:50
xiongbinbin518 发表于 2021-7-12 21:09
谢谢,可是房东希望去阳台不希望影响次卧怎么破。
怎么样都会有影响的,开那扇门感觉就是掩耳盗铃。
-
xiongbinbin518 2021-7-12 21:09:53
Cloud_W 发表于 2021-7-12 16:23
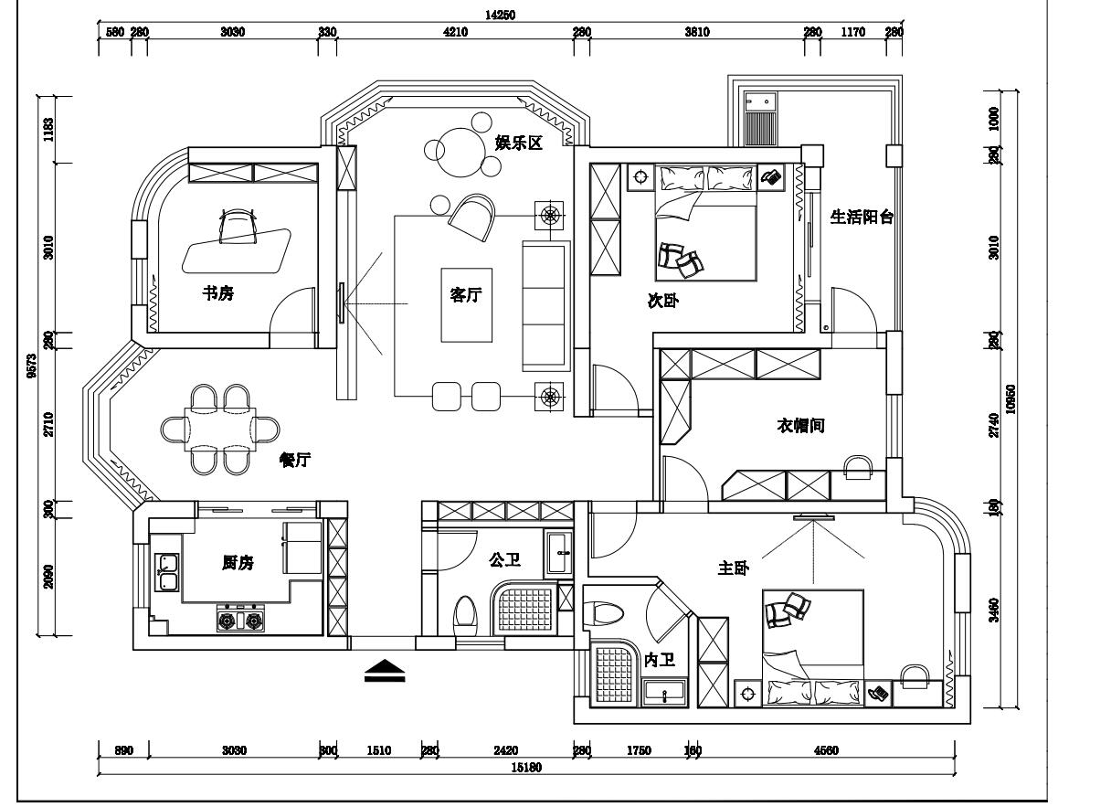
户型挺好,方案中规中矩,没什么毛病也没多大亮点。衣帽间通往阳台的那个门可以不要,衣柜做满一整面墙
谢谢,可是房东希望去阳台不希望影响次卧怎么破。
怎么样都会有影响的,开那扇门感觉就是掩耳盗铃。
-
xiongbinbin518 2021-7-12 13:45:52
805740704 发表于 2021-7-12 10:43
感觉这个方案用心了,布局合理,设计朴实无华,让人感觉很舒服,空间利用率也很高。空间中的关联性让人有趣 ...
真的吗,谢谢!
-
805740704 2021-7-12 10:43:00
感觉这个方案用心了,布局合理,设计朴实无华,让人感觉很舒服,空间利用率也很高。空间中的关联性让人有趣味性体,总的来说这个方案很好,我给你一张通关卡,希望你以后的方案更出彩。
真的吗,谢谢!


谢谢,挺有想法的。