自己的房子,毫无思路,救救我吧。。

2021-7-29/ 户型方案/ 户型交流/ 只看大图 阅读模式
仅供分享不做任何商业用途,版权归原作者所有,谢谢配合。

马上注册,结交更多好友,享用更多功能,让你轻松玩转社区。

您需要 登录 才可以下载或查看,没有帐号?注册

x
本帖最后由 安逸然 于 2021-7-29 17:04 编辑

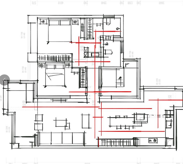
自己的房子,工作了几年,拿自己的房子没思路。3岁女儿+马上出生的女儿
夫妻两人,父母偶尔来住
可以不考虑小女儿的房间
主卧想要衣帽间+马桶一个
如果只能做一个卫生间,考虑马桶和蹲便同时满足
储物多
望大家指点一二。。。
回帖奖励总额: 10000 金币(本帖尚有 10000 金币), NaN , 您有 金币2111
12.png
2323.png
44443.png

 

新块1212.rar

294.44 KB, 下载次数: 128

精华推荐
换一换

发表评论25

  • 1683105778 2021-7-30 15:48:23

    回帖奖励 +10 金币

    主卧梁下面怎么还有个承重墙啊,是不是搞错了

    没搞错,开放商那边拿的建筑,自己量的
自己的房子,毫无思路,救救我吧。。
拓者推荐
  • 2026拓者 CAD户型方案 发布
  • 【武汉站—“樱”你而来】获客实操
  • 【武汉站—“樱”你而来】风水
  • 【武汉站—“樱”你而来】户型优化
  • 【梁志天】西安曲江·九曲松间
  • 无间-上海汤臣君品合院方案
  • 君品-汤臣金桥花园项目方案
  • 无间-上海大宁中建玖上琅宸
  • HWCD-烟台洲際酒店深化方案图册
  • 琚宾新作-资兴东江湖度假酒店
  • 2025拓者年费+案例Vip会员说明!
  • 【 拓者年费--CAD图纸】
  • 【 拓者年费--户型方案】
  • 【 拓者年费--豪宅视频】
  • 【 拓者年费--灵感图库】