方案交流,有什么不足还请指出

2021-8-7/ 户型方案/ 户型交流/ 只看大图 阅读模式
仅供分享不做任何商业用途,版权归原作者所有,谢谢配合。

马上注册,结交更多好友,享用更多功能,让你轻松玩转社区。

您需要 登录 才可以下载或查看,没有帐号?注册

x

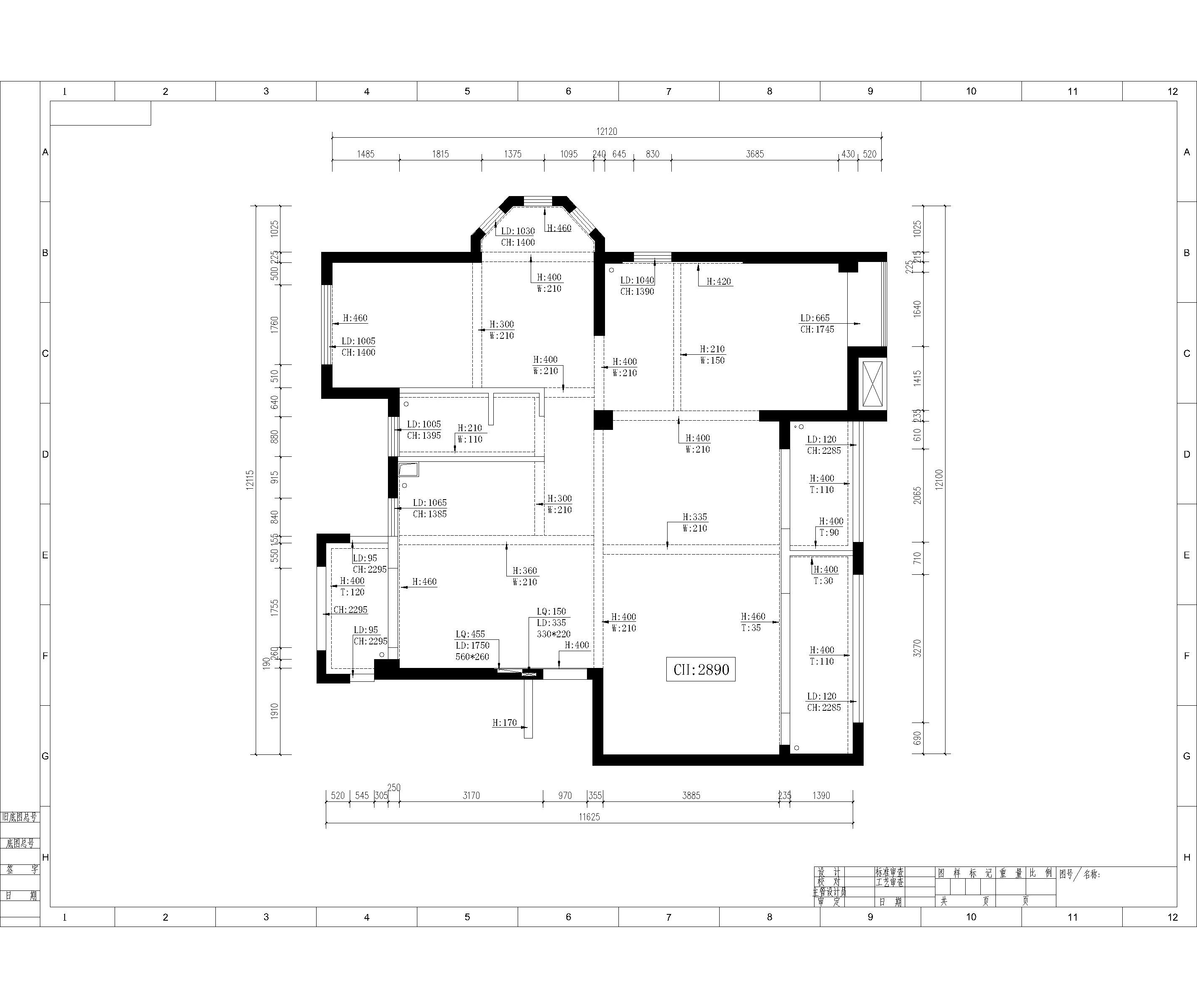
原始结构图

原始结构图
金榜嘉园5#201 (2)-.jpg
金榜嘉园5#201 改.jpg

精华推荐
换一换

发表评论5

  • 最真的自己 2021-8-9 11:11:14

    建议过道就直接跟大门成一条直线,不要拐了。把面积分给房间。你这样面积基本浪费在拐弯的过道上,公卫太长采光又不好了,且面积还没利用上,这样客厅背景也完整

方案交流,有什么不足还请指出
拓者推荐
  • 【广州站】设计师创业课
  • 【广州站】收纳设计思维训练营
  • 【广州站】户型优化总监内训课
  • 【广州站】 风水丨设计与签单课
  • 【广州站】获客实操训练营
  • 2025拓者年费+案例Vip会员说明!
  • 【 拓者年费--CAD图纸】
  • 【 拓者年费--户型方案】
  • 【 拓者年费--豪宅视频】
  • 【 拓者年费--灵感图库】