精华推荐
换一换
-
林什么嘉 2021-8-14 15:10:22
yangyang9291 发表于 2021-8-9 18:27
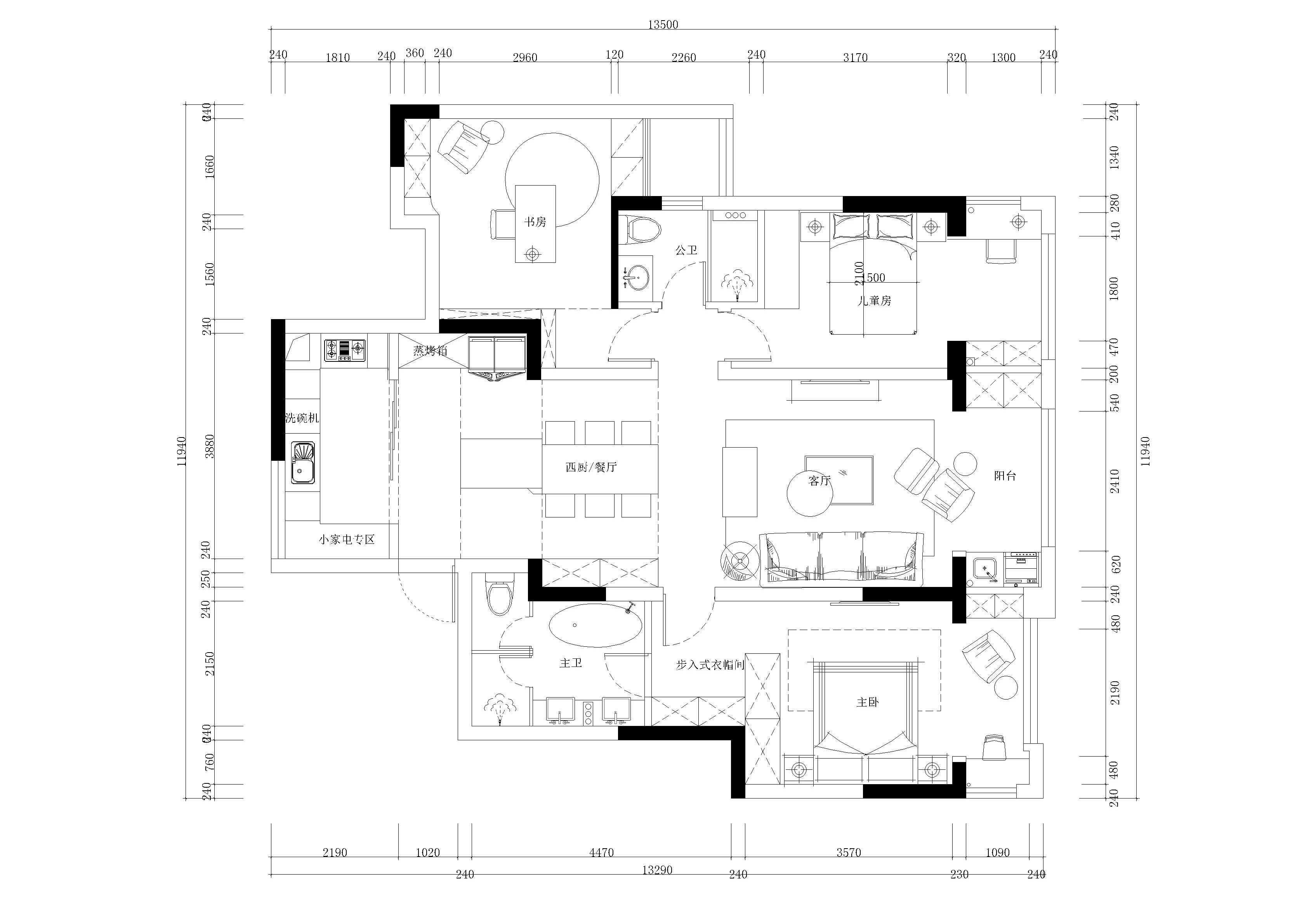
兄弟们 我也是助理 交流一下方案
下面卧室里为什么还要有个洗手台?个人习惯 在阳台做个水吧,喝茶晒太阳什么的
-
735931381 2021-8-10 11:39:44
735931381 发表于 2021-8-9 16:46
关系的处理,尺寸的把控。。。利用关系~不动脑自动生成方案~
不是不能改。。
-
zhuzhuzxia 2021-8-10 11:07:09
735931381 发表于 2021-8-9 16:46
关系的处理,尺寸的把控。。。利用关系~不动脑自动生成方案~
卫生间对着主卧门,最为致命
-
设寂师 2021-8-10 09:15:08
735931381 发表于 2021-8-9 16:46
关系的处理,尺寸的把控。。。利用关系~不动脑自动生成方案~
好嘞 谢谢大佬 思路打开了
-
设寂师 2021-8-10 08:55:44
小小=设计师 发表于 2021-8-9 19:33
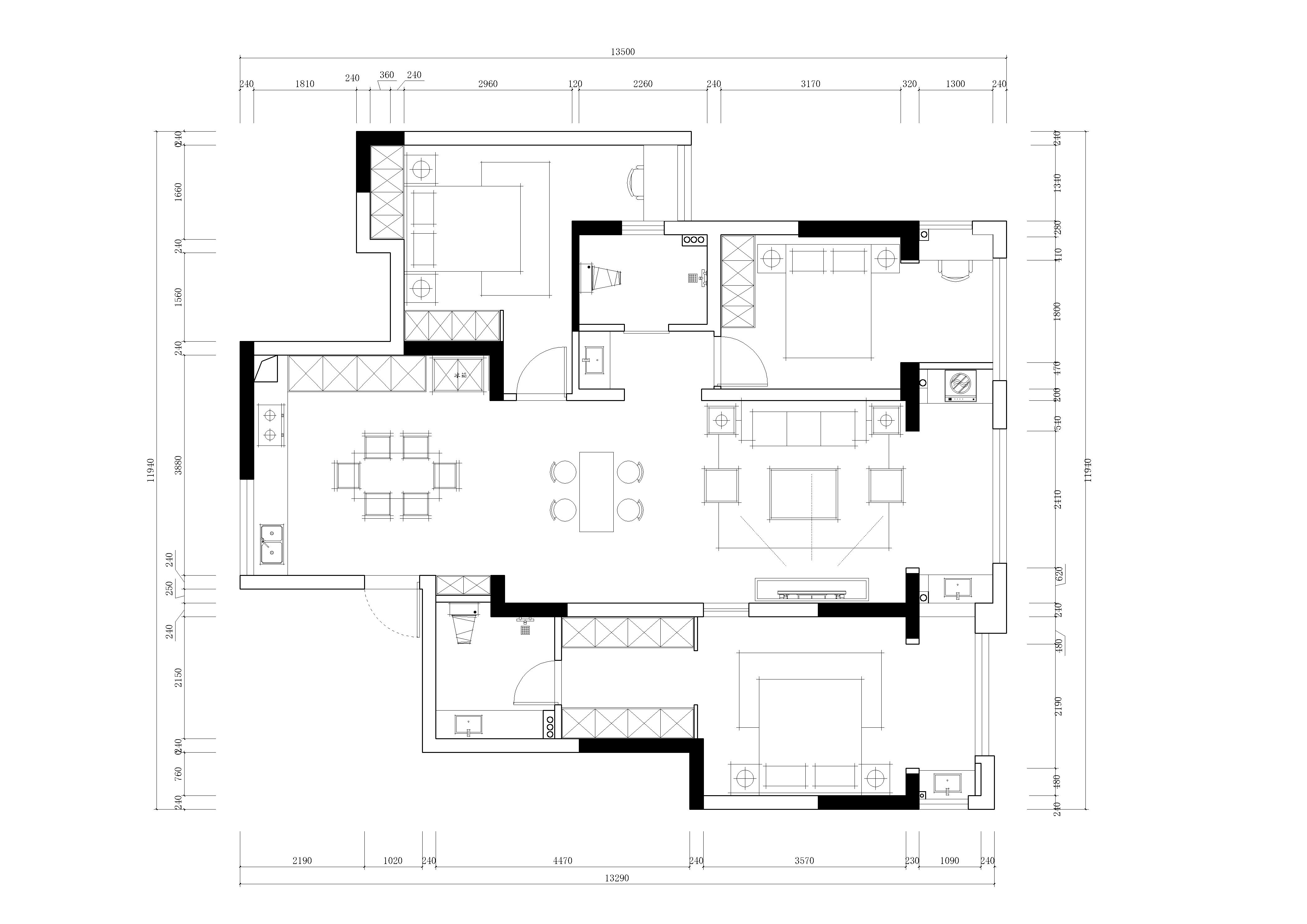
昨天时间关系 匆忙画了一下 好多细节没有优化 主卧和主卫也有很多优化的空间没有来得及改,厨房全玻璃可 ...
好的谢谢大佬 学习了
-
小小=设计师 2021-8-9 19:33:40
197牛 发表于 2021-8-9 10:01
想法很好,次卧和阳台的空间都充分利用,厨房不用砌墙了,直接多扇玻璃推拉门就行了,主卧隐藏门也要画啊
昨天时间关系 匆忙画了一下 好多细节没有优化 主卧和主卫也有很多优化的空间没有来得及改,厨房全玻璃可以借鉴好的谢谢大佬 学习了
-
yangyang9291 2021-8-9 18:27:41
兄弟们 我也是助理 交流一下方案
-
-
197牛 2021-8-9 10:01:40
小小=设计师 发表于 2021-8-8 17:34
主卧没有改,个人观点,大家相互学习。
想法很好,次卧和阳台的空间都充分利用,厨房不用砌墙了,直接多扇玻璃推拉门就行了,主卧隐藏门也要画啊昨天时间关系 匆忙画了一下 好多细节没有优化 主卧和主卫也有很多优化的空间没有来得及改,厨房全玻璃可以借鉴




个人习惯 在阳台做个水吧,喝茶晒太阳什么的