|
本帖最后由 安定空间设计 于 2021-8-19 11:42 编辑 ANDING ![]() 家的作用,不只是遮风挡雨的居所,而在于能容纳生活的各种可能,承接对人居空间的归属感、秩序感和仪式感。 The role of the home, not only shelter, but also to accommodate the various possibilities of life, to undertake the sense of belonging to the living space, sense of order and sense of ceremony. ![]() 沙发旁边还有很大一块区域,两块休闲的地方融合在一起,颜色又是恰到好处的相近,空间也更加立体。 There is also a large area next to the SOFA, two leisure areas merged together, the color is just right close, the space is more three-dimensional. ![]() 会客厅宽敞的落地窗吸纳庭院自然之景,光影穿梭于室内,电视背景墙的深灰色纹路大理石提供整面的宁静。 The large French windows in the living room absorb the natural landscape of the courtyard, the light and shadow shuttles in and out of the room, and the dark grey textured marble in the background wall of the TV provides the serenity of the whole area. ![]()
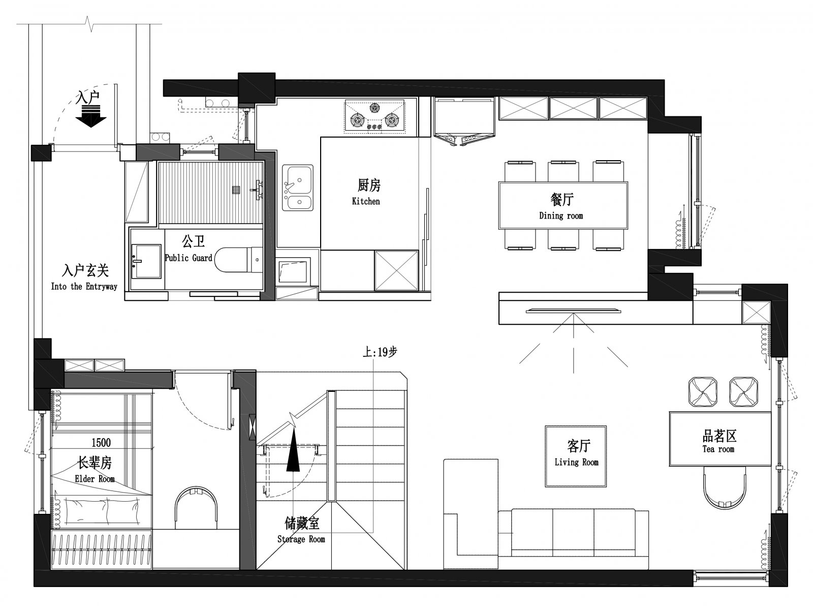
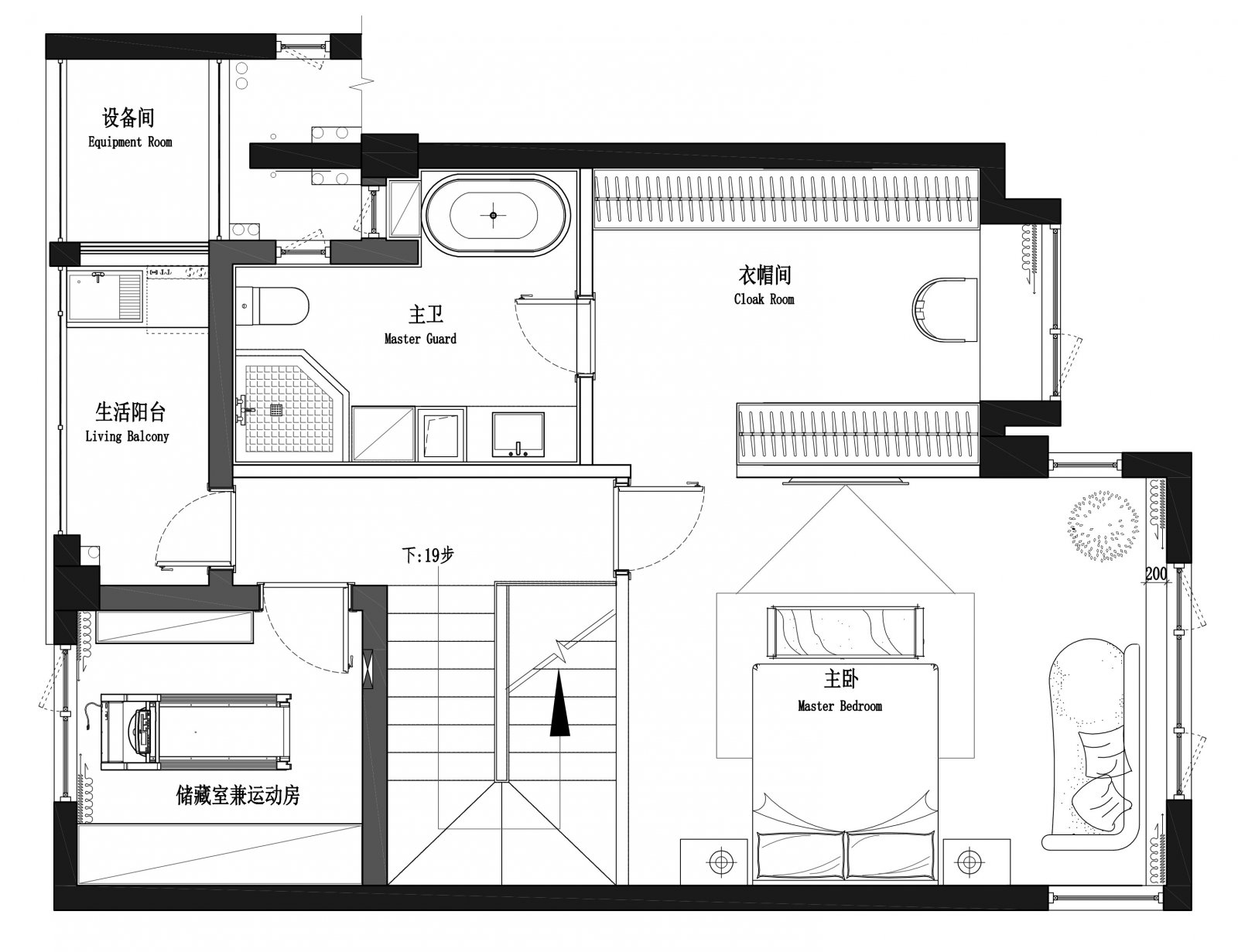
主卧设计主要从舒适出发,高级暖灰为底色,凸显浓烈的摩登气息。 The master bedroom is designed primarily for comfort, with a high-grade warm grey as the base color, highlighting the strong modern atmosphere. ![]() 让空间合理化使用,设计师预设了榻榻米,储藏功能也不落下。 To rationalize the use of space, the designer pre-designed Tatami, the storage function is not left. ![]() ▲一层平面布置图 ![]() ▲二层平面布置图 项目地点 | 福州 项目名称 | 建发央著 项目面积 | 140㎡ 设计师 | 陈泽标 设计团队 | 福建安定空间设计有限公司 ![]() ![]() 福建安定空间设计有限公司创立于2016年,致力于室内空间规划设计及施工,专注于高端住宅空间,商业空间、办公空间设计与施工服务。在“一切让客户安心”的理念下,用最专业的设计及服务,为客户提供最满意安心的作品。以安定空间设计研究所为管理核心和创意源泉,打造有家装、公装、软装、园林三大业务板块,为广大客户带来高品质、专业化、精细化的整装服务。 |
精华推荐
换一换











发表评论0