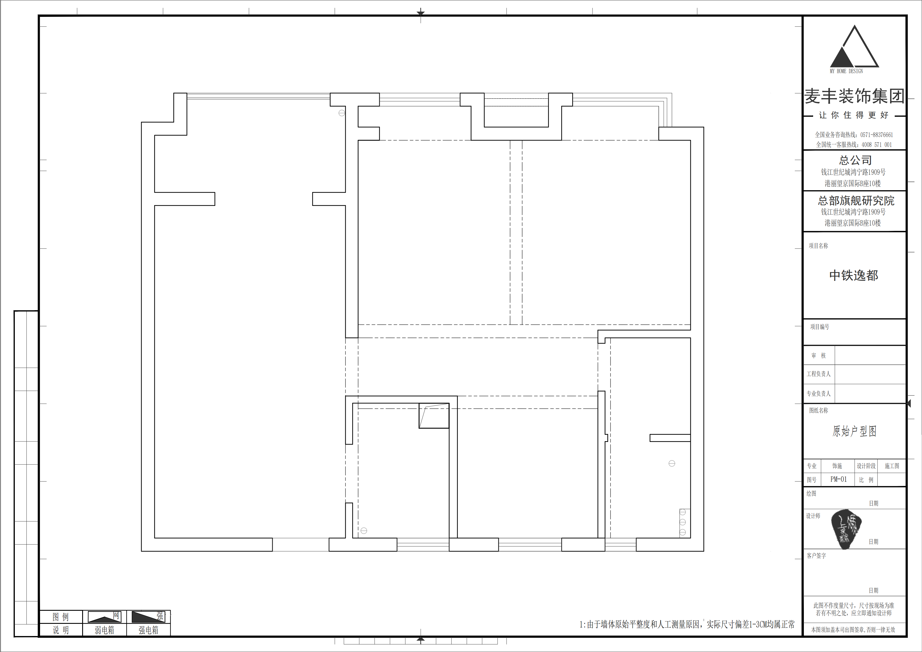
家是动与静、繁与简之间的平衡之数,是内敛温敦的气韵交融,是“尘世间的一片淨土”。 回归生活本质,重点是解决问题,户型不满意的地方,空间不满意的点,其次是自己喜欢的材质和空间氛围... ▼业主需求 热爱生活,享受生活,对家有自己的理解,不想太花哨,装饰上尽量节制,根据空间属性度量装饰,希望得到更丰富的采光和空间的通透性,可自行控制光线的强弱。储物量在不保证空间动线和尺度的情况下尽量丰富,每一个空间的尺寸都优化到最理想的状态。 ▼设计方案(户型对比图)
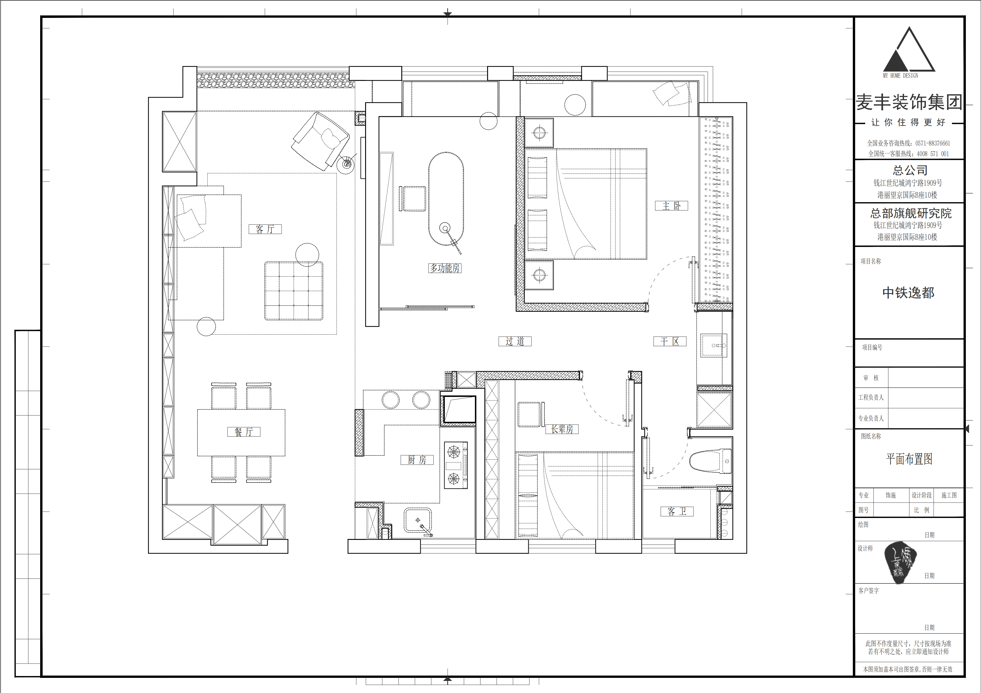
▼户型优劣势 户型方正无任何犄角,中间套,采光也比较合格。户型存在的短板也有,例如空间死板,单调,光线单一,没有边套的光线那么丰富,空间尺度分配不合理,厨房主卧都比较小,按开发商原始结构无法实现功能。 ▼户型改造 尽量打通空间,将南面的内外墙分离,通过玻璃连接,这样可以通过光影的自由穿梭使空间互动起来,这样空间才能实现“透”,让光实现它的最大能量,客厅,书房,主卧在视觉和光线的带动下,相互关联又彼此独立。 |
精华推荐
换一换
-
麦丰设计 2021-8-19 16:15:03书房 Study Room客厅和书房的储物都以悬挂的方式呈现。利用站、坐不同的高度需要充分利用空间,达到客户的储物需求。
卧室Master Bedroom本案在客厅、书房、主卧分别使用到了纳米水泥,保留其原始的粗犷质感,打造一种极简,朴素而又带着低调的空间格局。木质家具的陈设让整体回归本真,创造自然、宁静的睡眠空间。
主卧柜体上下分段,下段飘窗连接,使其成环抱状,让空间有一定的延续性。
次卧Second Decubitus次卧目前给老人居住,未来给小孩使用。整体使用组合柜,利用整墙设置收纳柜,再配合灯带,营造温暖静谧的睡眠氛围和阅读环境。
卫生间 Bathroom走廊尽头卫生间背景用绿色手工砖,为家注入一抹鲜亮的色彩,像是在墙体镶嵌绿宝石那样精致优雅。
小景Little Bing
案例信息丨Case Information项目地点:中铁逸都项目类型:住宅项目性质:全包项目面积:89㎡项目风格:轻工业设计师:麦丰国际设计施工:浙江麦丰装饰设计工程有限公司软装:东麦家居主要用材:纳米水泥、不锈钢、手工砖、油漆板装修总投入:硬装19万、软装13万、设备3万回复举报
-
麦丰设计 2021-8-19 16:04:36客厅Living Room在城市生长和扩张的兴奋中,人的心变得芜杂,很难寻得到一个静谧的冥想空间。设计师对于本案想传达给居住者的更多是心灵的放松与沉淀,创造一个生活美学与思想温度相制衡的居住空间。
在本案设计中,设计师使用木饰面、纳米水泥、手工砖、茶色金属以及布艺软装,强调当代年轻人前卫思想的同时兼顾舒适性与实用性,使“家”的概念真正回归到了对舒适的现代化生活的追求中。
客厅以及主卧的柜面做了一些竖向沟槽的处理,将柜体拉手藏于其中,使整体柜体不呆板,更具节奏和韵律感。客厅柜体与下方镜面通过一定的尺寸比例进行平面分割,使其平衡,通过下面和侧边大面积镜面,使空间通透,柜体穿插。
开放式的布局让各功能区紧密联系,沙发、餐厅、吧台与厨房动线自然流畅。地面的柔光砖铺叙温煦暖度,并多以软件做布置,让场域随时可因应未来所需、做出居室的主题变动。


发表评论3