|
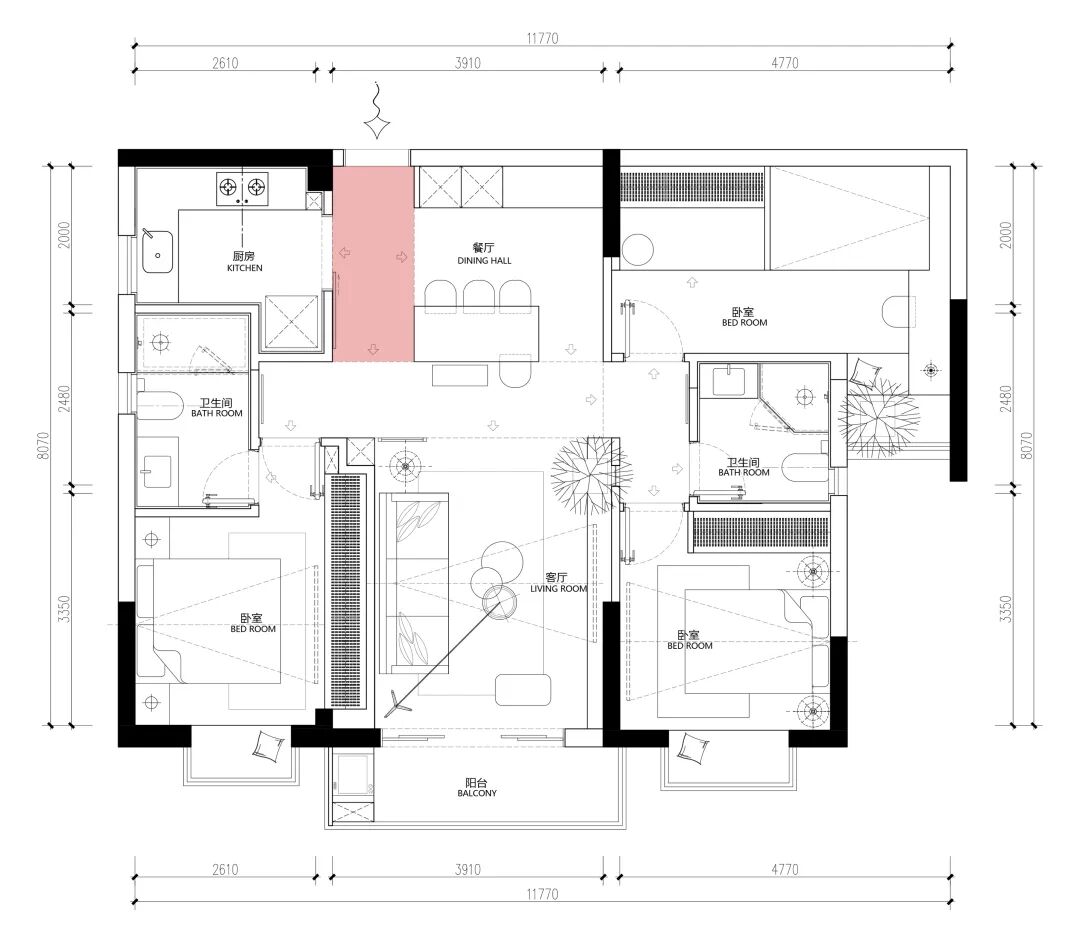
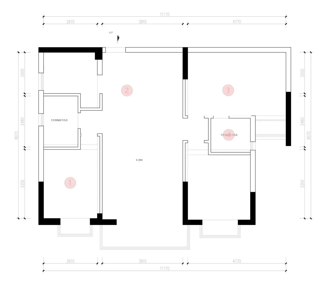
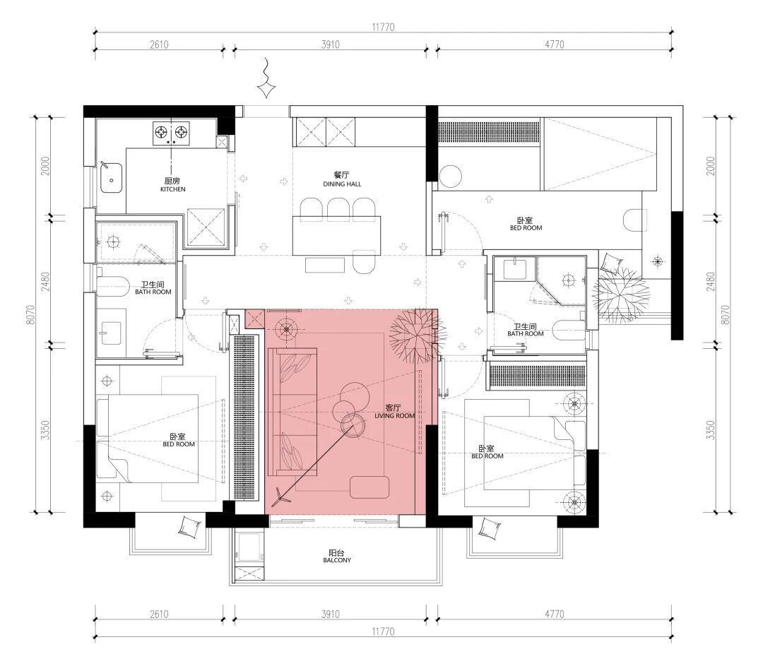
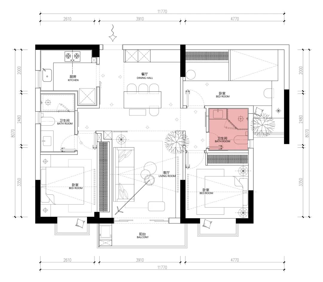
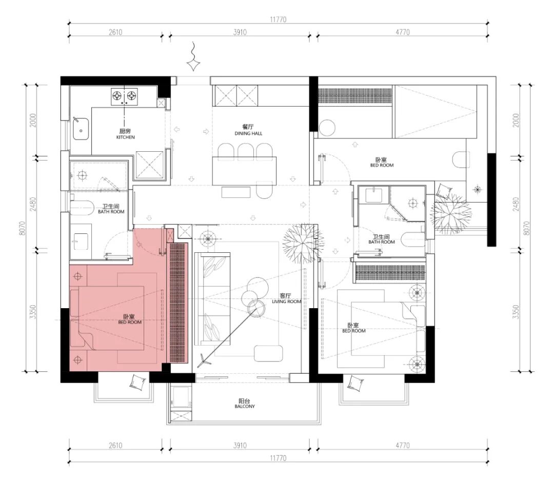
项目类型:三室家居 居住人员:4人 主案设计:DK ! q6 y0 h0 G L( H% D 业主要求:三代同堂,奶奶在家照顾刚上小学的孙子,夫妻两人经营一家餐厅,经常晚上凌晨到家休息,希望能有一个好的休息环境,想要一个亲子互动区。居家风格。 01 原始户型图户型分析 1.靠近厨房位置次卧室,隐私性好,适合做主卧室3 L# W- a& S. @. m6 v9 q 2.入户玄关一通到底,无视觉焦点 3.主卧室位置隐私性相对较差 4.卫生间门直对主卧室,体验感差 02 区域功能解析6 }/ A( L, A2 l! {$ ?. w- O, _ 8 h, b7 f2 A# d0 r2 Y 原靠近厨房区域的次卧空间更改为一个主卧室空间,这样也间接提高了主卧室的居住舒适性,通过墙体的调整增加了主卧室的收纳空间。 墙体的调整改变了原入户一通到底,增加艺术隔断的设立反而达到一种好的视觉景点。 客厅电视墙的通过景点的设立,也使进公共卫生间过道有个好的视觉焦点,同时也增加了整个空间的趣味性 原主卧改造成一个儿童房空间和亲 子互动区,亲子互动区设置在房间内部,满足了小孩子一个快乐而童趣的成长环境。 03 彩屏方案* `, T: p9 J d1 _$ c# b h, q % Q5 r, X' E2 \ _ R( q % b h$ _7 j9 i+ T* X |
精华推荐
换一换




发表评论0