设计师自己的家,望同行指点,万分感谢

2021-9-11/ 户型方案/ 户型交流/ 只看大图 阅读模式
仅供分享不做任何商业用途,版权归原作者所有,谢谢配合。

马上注册,结交更多好友,享用更多功能,让你轻松玩转社区。

您需要 登录 才可以下载或查看,没有帐号?注册

x
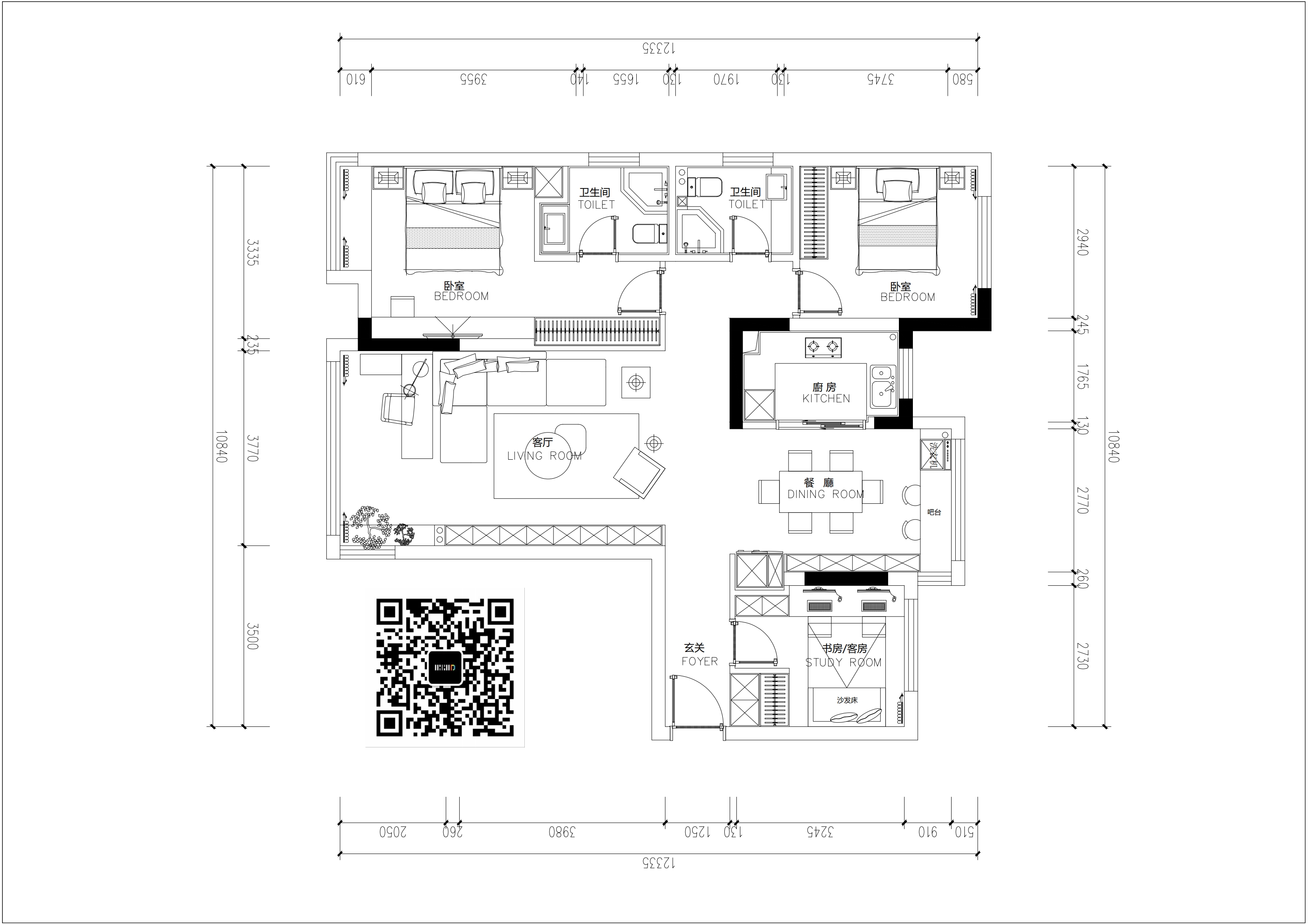
要求:
1.3个房间都保留,需要主卧,儿童房,客房,客房需要带书房功能,可接受榻榻米
2.2个阳台都打通扩充空间,不需要晾晒,客厅阳台需要办工桌
3.电视背景做储物柜收纳柜类型设计
4.主卧最好能有衣帽间,需要大收纳
5.儿童房1.5mx2m的床,正常收纳需要书桌
6.卫生间最好都保留,保留一个也能接受,保留一个卫生间需做双台盆
7.餐厅设置中岛台,预留酒柜,厨房不能做开放式(小城市天然气审查严格)
8.厨房或者餐厅需设置增烤箱,洗碗机(正常尺寸)
9.沙发3米直排沙发,全房中央空调
10.洗衣机,烘干机嵌入进收纳柜中(尺寸mm:长*宽*深——850x600x600)
电视机嵌入进电视收纳柜中(尺寸mm:长*宽*深——1672x954x74)
冰箱嵌入进收纳柜中(尺寸mm:长*宽*深——1775x908x647)
冰吧嵌入进收纳柜中(尺寸mm:长*宽*深——1065x500x600)
预留扫地机器人位置,空气进化器位置
11.整个风格为极简,空间主材质为黑白灰混油,无主灯设计,磁吸轨道灯主照明
12.略微有点强迫症,喜欢规整统一的空间


平面布置图

平面布置图

原始结构图

原始结构图

 

平面布置.pdf

88.11 KB, 下载次数: 52

原始户型.pdf

126.29 KB, 下载次数: 55

精华推荐
换一换

发表评论4

  • wuminghao1 2021-9-13 21:54:34

    我觉得还不如做开放式厨房,把精致的电器以及装饰弄得极致点,这样可以拓宽视野,不然觉得厨房太小了

  • 36Jaden 2021-9-11 21:46:23

    有个小提议,把餐厅包到厨房里来,做成餐厨一体的,把门放到过道那里,然后再搞下里面的布局

设计师自己的家,望同行指点,万分感谢
拓者推荐
  • 2026拓者 CAD户型方案 发布
  • 【武汉站—“樱”你而来】获客实操
  • 【武汉站—“樱”你而来】户型优化
  • 【武汉站—“樱”你而来】风水
  • 【梁志天】西安曲江·九曲松间
  • 无间-上海汤臣君品合院方案
  • 君品-汤臣金桥花园项目方案
  • 无间-上海大宁中建玖上琅宸
  • HWCD-烟台洲際酒店深化方案图册
  • 琚宾新作-资兴东江湖度假酒店
  • 2025拓者年费+案例Vip会员说明!
  • 【 拓者年费--CAD图纸】
  • 【 拓者年费--户型方案】
  • 【 拓者年费--豪宅视频】
  • 【 拓者年费--灵感图库】