|
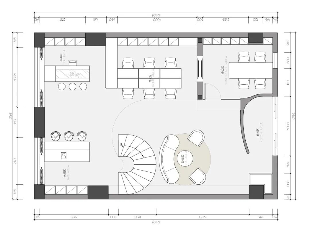
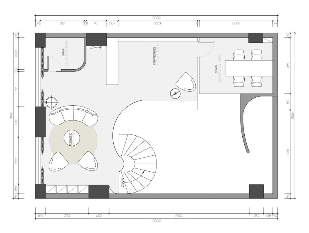
建筑空间承载着人类对理想世界的向往。大多数人生命里的三分之一都与工作相关,办公空间的设计布置跟居住空间同样重要。现代家居艺术高速发展,我们的办公环境不再局限于格子间这一种传统形式,逐渐取而代之的是更加开放、时尚、充满艺术感的空间。 ,时长01:07 [color=rgba(255, 255, 255, 0.8)] 作为一个设计工作室,我们更明白工作场所与员工之间微妙的联系,怀着对办公生活的期待我们打破了传统办公环境的刻板印象,尝试用曲线艺术去实现空间的动态美。从0到1,我们让艺术落地,创造出一个舒适放松的办公环境,在增加员工的幸福感的同时,也提升了客户的到店体验感,共同去享受当下空间的美好。 意笙设计事务所办公地址位于重庆北滨二路星耀天地,我们设计的初衷更多的是关注情感与精神的诉求,在这里,艺术不仅仅是一个符号、一种线条,而是注入功能性的需求。 我们在设计中以流动的曲线连接起整个办公空间,让空间各功能区呈开放的同时又各有独特的亮点,既有传统办公区方正的格局特点,又融入了当代办公空间设计的审美,有了更多感性的表达,从而产生一个富有生命力、想象力的办公空间。 #平面方案 Plane scheme #实景展示LIVE EFFECT 入口区·工作日如期而来的仪式感 “艺术与建筑是共同孕育优美的协作关系,就像美术馆中光线的强弱运用,总是能为展品更添魅力那样,让彼此看起来都更美。由此,住在里面的人也能感到更加充实丰富”。光就像是催醒万物的梵音,入口处投射于装饰品的第一道光,总能激发一些奇妙有趣的幻想,让踏入办公空间的那一刻便有了仪式感。 接待区·满目柔软,却又力量 线条是空间美感最直观的表现手法,而曲线作为其中一种几何形态,更能增加建筑的灵动与柔美,提升美学张力,设计师让直线与曲线的和谐演绎在接待区得以呈现。大气流畅的线条勾勒出空间极简前卫的轮廓,随处可见的大弧线散落于沙发、茶几、地毯、吊顶、墙体造型......垂挂的直线组合吊灯让空间多了几分利落洒脱,一硬一柔的设计表达凸显空间的刚柔之美。 光在空间里的作用也是一种情绪的表达,恰到好处的灯光设计仿佛是空间氛围的催化剂,通过明暗对比加强空间的层次感,烘托安静柔和的氛围。 旋转楼梯·动与静的家居美学 在现代室内设计中,红色既有复古的传统之美,又给人一种视觉上的冲击力,让人过目难忘,所以我们选用经典红作为旋转楼梯的主色调。对红色的运用也是极具挑战性的,搭配不好,难免会显得俗气,我们将高级灰、暖色白和经典红巧妙搭配,在动与静之间寻找空间的平衡美感。 旋转楼梯灵动精致,实用美观,我们将LED灯带嵌入楼梯踏步板之下,见光而不见繁琐的灯具,走入其中一步一亮,阶步间的逐渐亮起的点点灯光梦幻至极,感受几何空间的独特魅力。 水吧区·员工的精神领地 水吧区的设计让休闲和办公灵活切换,是员工在繁忙工作之余的精神领地,无论是午茶时间,或是同事间聊天的时候,这里都能增添几分闲暇惬意的气息。用水波纹板作为装饰天花,在不同光线的作用下呈现空间的纵深感,诠释空间立体灵动的美。 品茗区·方寸之间,得一隅宁静 品茗区同样提供了一个舒适的工作氛围,精心布置的角落空间同样承担了多项功能,会客、商业洽谈、单纯的展示皆可,无需精巧的茶具,也不用着重的强调,就能营造一种宁静致远的视觉效果。 办公区·开放自由 办公新体验 简约现代的空间布局,壁炉设计的电视墙巧妙地将办公区与洽谈区隔开,半开放的设计摆脱了传统沉闷的办公氛围,无须过多家具、软装的修饰,便创造出一个被艺术气息包围的办公空间。 二楼接待区·角落的多功能区域 设计解决的不是简单的美学问题,它是外部环境对内心诉求的回应,所以温暖的细节是必不可少的。在二楼增设一处接待区,温馨简单的布置就能打造出一片精致优雅、让人放松的短暂休息区域。这里既是读书角,也是接待区,在此闲坐片刻,满满的幸福感扑面而来。 『结语』: 我们工作的地方,同样寄托了我们对于生活的某种想象,正是怀着这样的理解和思考,我们共同创建了这样一个有温度的办公空间,希望在工作的氛围中也能感受到生活的美好。 - 欢迎转发 - YIS DESIGN意笙设计团队 ,。视频小程序赞,轻点两下取消赞在看,轻点两下取消在看 |
精华推荐
换一换


发表评论0