本帖最后由 麦丰设计 于 2021-10-9 10:01 编辑
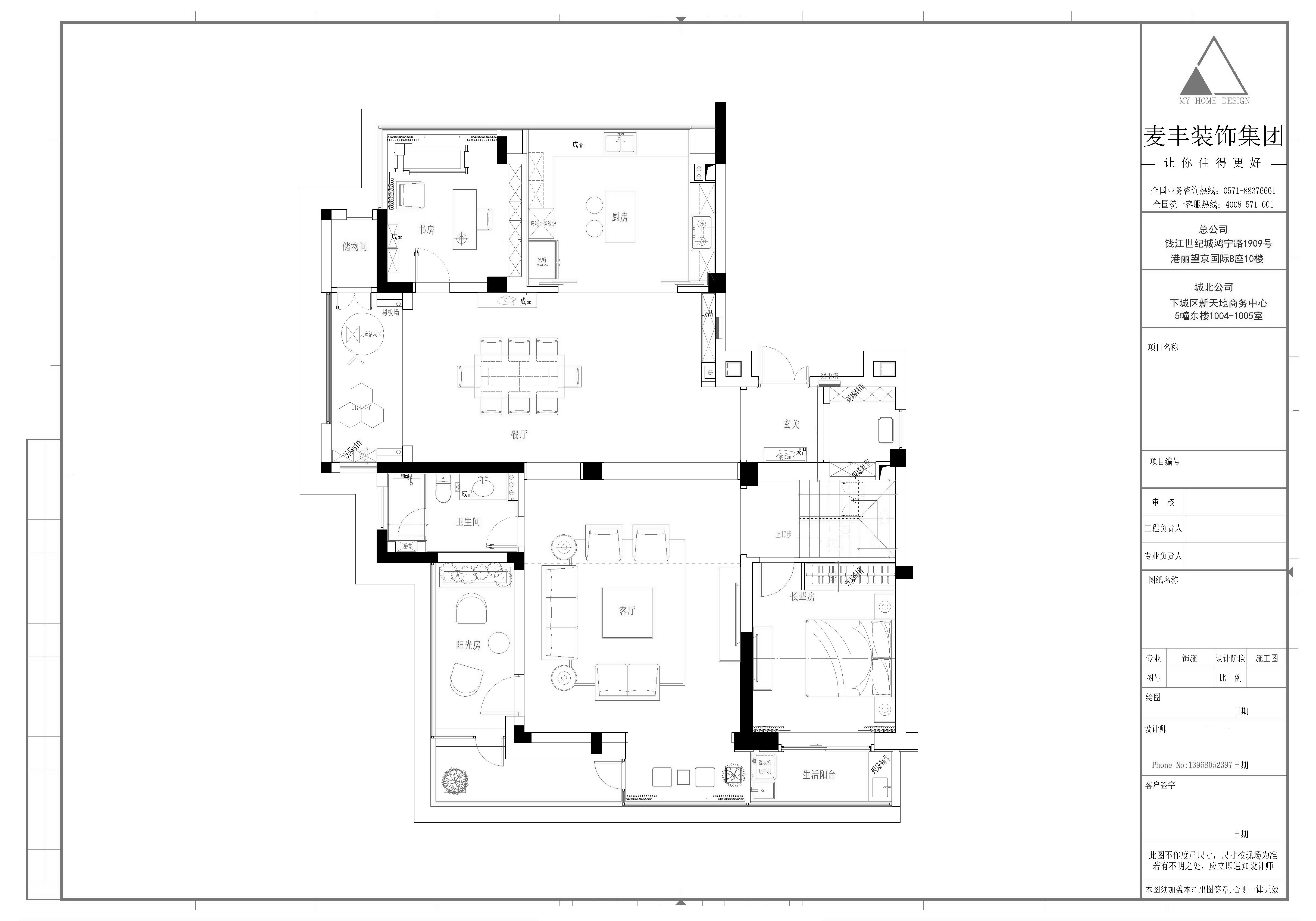
家的温馨之处,在于设计让他拥有了故事和情感,构建的过程就如完成一件艺术品,从最初的轮廓到细枝末节的处理,一点点寻找理想中家的模样。 房型优劣势▼ 优势:户型方正,采光良好 劣势:挑空空间太小,楼梯位置不合理 业主需求▼ 希望空间开放度好,通透明亮,中性色调
原始户型与平面布置图(一楼)
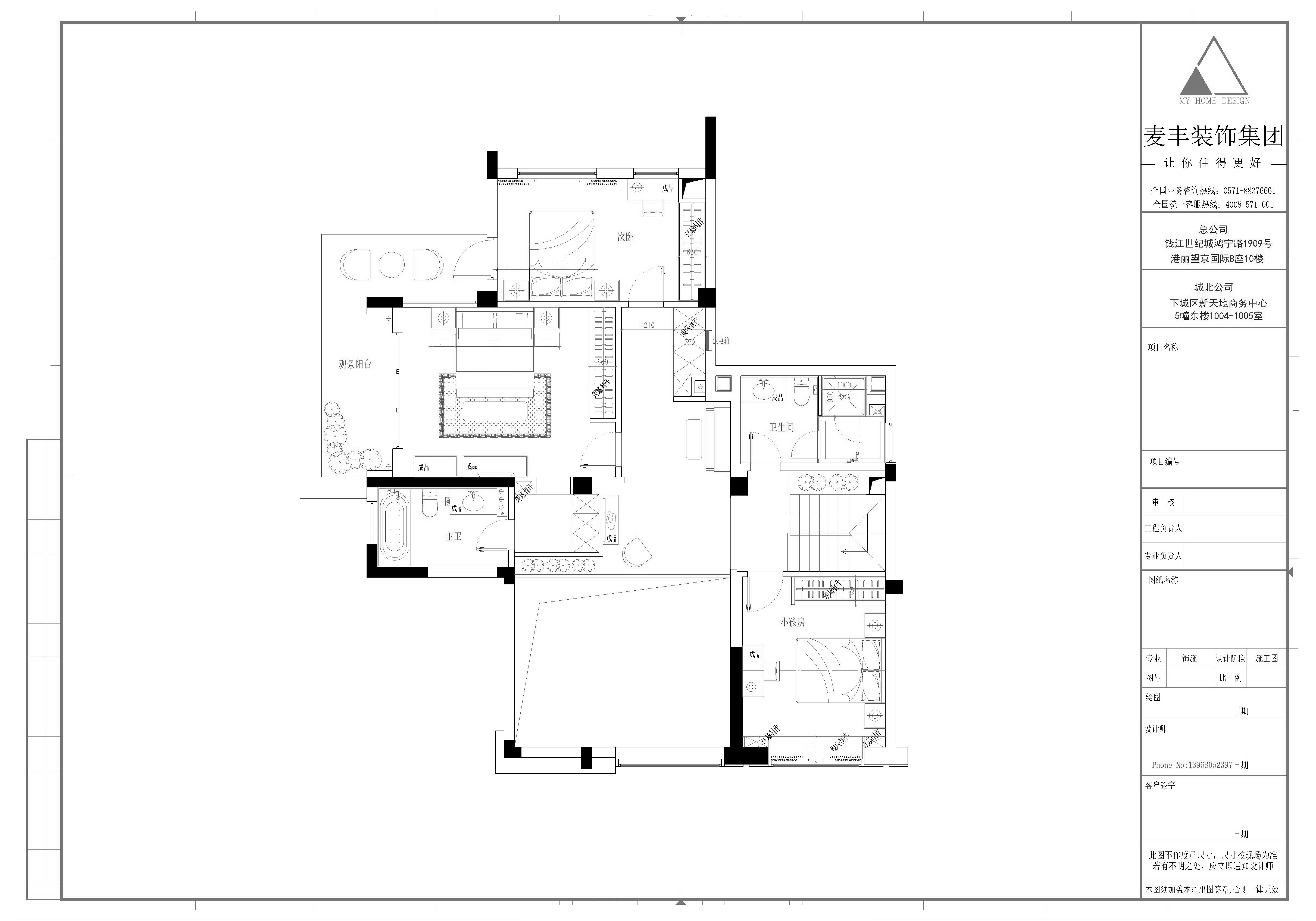
原始户型与平面布置图(二楼) 户型改造▼ 挑空部分和楼梯位置重新规划。 设计灵感▼ 设计其实是一件很有趣的事情,通过不同色彩、软装的搭配构成,就能使家呈现出完全不同的感觉,看似简单的改动对一家人生活品质的提升却非常明显,如果说能有什么是能使一个设计师感到自豪的,那就是自己的设计能真正地使业主满意,因为设计的意义就在于其所带来的生活品质的提升。 |
精华推荐
换一换
-
麦丰设计 2021-10-9 10:17:51玄关
玄关装饰柜简约大方,地面砖拼接花纹自然美观,墙面墙画清新自然,左侧自然分隔出一块入户换鞋区,两面定制鞋柜满足收纳需求。客厅
客厅挑空,宽敞大气。墙面用线条勾勒,用装饰画和壁纸做装饰,为整个空间定下温润自然的基调,在沙发、地毯等软装上采用鲜艳的颜色,搭配材质和谐有序,为空间添加了一抹亮色。
适逢冬日艳阳,惬意地躺在沙发上,盖上一条小毯子,沏一杯茶,看窗外云卷云舒,三冬不寒。整个一楼的空间色调和谐统一,布局衔接自然,厨房,餐厅,客厅三者间的动线流畅舒适。餐厨区域
厨房全隐藏式推拉门的设计,使厨房既具开放厨房的空间感,又能拥有封闭式厨房的独立性,彼此之间自由互通,家人齐聚一堂。
厨房采光优渥,墙面铺贴灰纹瓷砖,地面用双色大理石交错铺设,U字形厨房中间设立中岛,充分的空间轻松满足下厨的各种需求,灰色橱柜为整个空间打造出立体感、层次感。
餐厅以吊灯、精致的餐具、装饰画烘托用餐氛围,黑色金边餐桌带起一丝奢华感,环境与餐点相辅相成,举起酒杯的一刻,满载的是家的幸福。回复举报
-
麦丰设计 2021-10-9 10:13:04
本帖最后由 麦丰设计 于 2021-10-9 10:19 编辑
过道空间
楼梯间利用简单的墙面装饰和吊灯,经典的黑白添上金色,轻松打造出艺术的氛围。
充满生活气息的小角落。
书房
书房两面开窗增强采光,一侧打造了一整面的书柜放置书籍,灰色木纹地板敦厚踏实,与书柜浅蓝色相搭配,打造一片阅读净土。
卧室
卧室铺设鱼骨拼地板,褐色与黑色构成的花纹简洁而时尚,墙面黑色鎏金墙纸搭配金色饰品,深青色的靠背与床尾凳互相呼应,营造舒适静谧的休憩环境。
粉色的女儿房可爱的墙纸、星星台灯与玩具共同点缀着一颗幸福的童心。
案例信息丨Case Information项目地点:紫郡西苑项目类型:住宅项目性质:全包项目面积:320平方项目风格:现代美式设计师:麦丰国际设计施工:浙江麦丰装饰设计工程有限公司软装:东麦家居主要用材:地砖、大理石、实木复合地板、乳胶漆、墙纸、石膏线摄影:林峰文字编辑:KK


发表评论2