本帖最后由 麦丰设计 于 2021-10-12 11:20 编辑
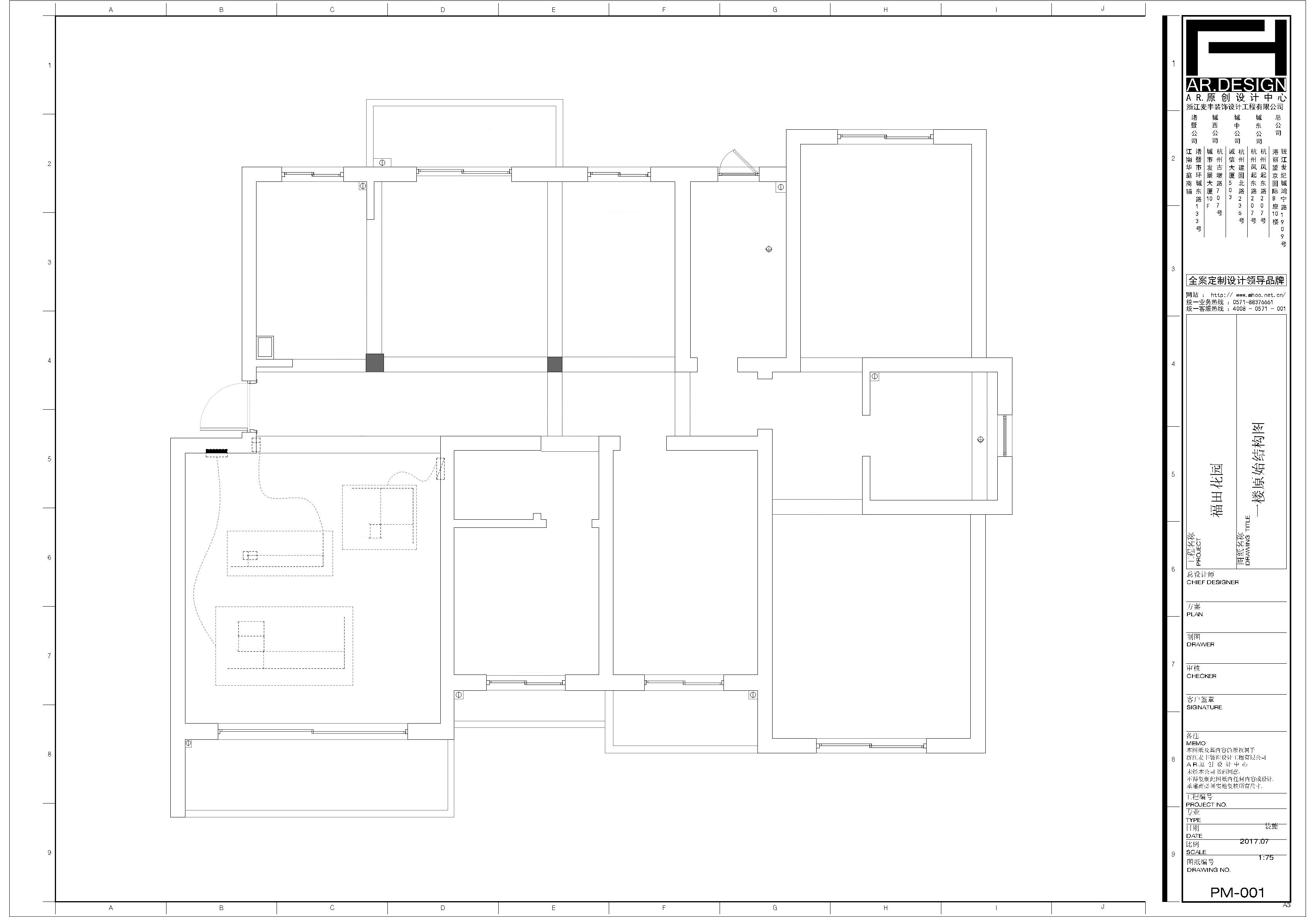
上一秒与下一秒 我对家的印象总是停在这一秒 就好像鹿在林间腾跃,跃过溪流的那一刻 又好似鸟儿轻展双翼,蹿上天空的那一瞬 当三代人同居一个屋檐下 每个人捕捉到的关于家的印象 其实都停留在自己独属的那一秒 独特、深刻而又真实 户型优劣势: 优势:空间充足,采光充足,能容纳许多功能需求 劣势:由于多了楼梯位,楼下厨餐厅布局紧凑 户型改造: 把厨餐厅设置在了二楼,居住区域主要安排在了一楼 业主需求: 对储物空间要求比较高,色调上简洁温馨,对材质的环保和品质有很大的要求。 ▼一层原始结构图:
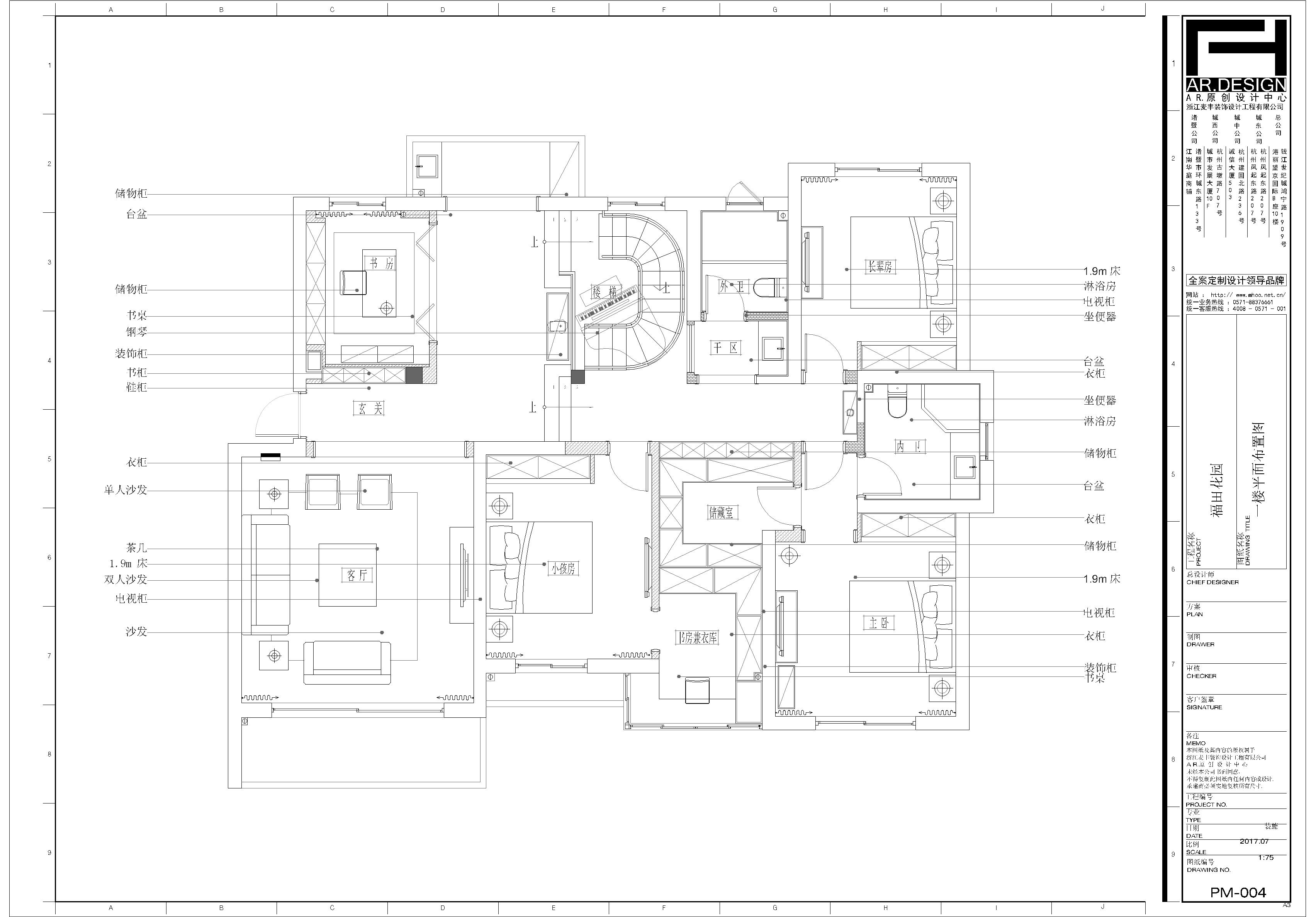
▼一层平面布置图:
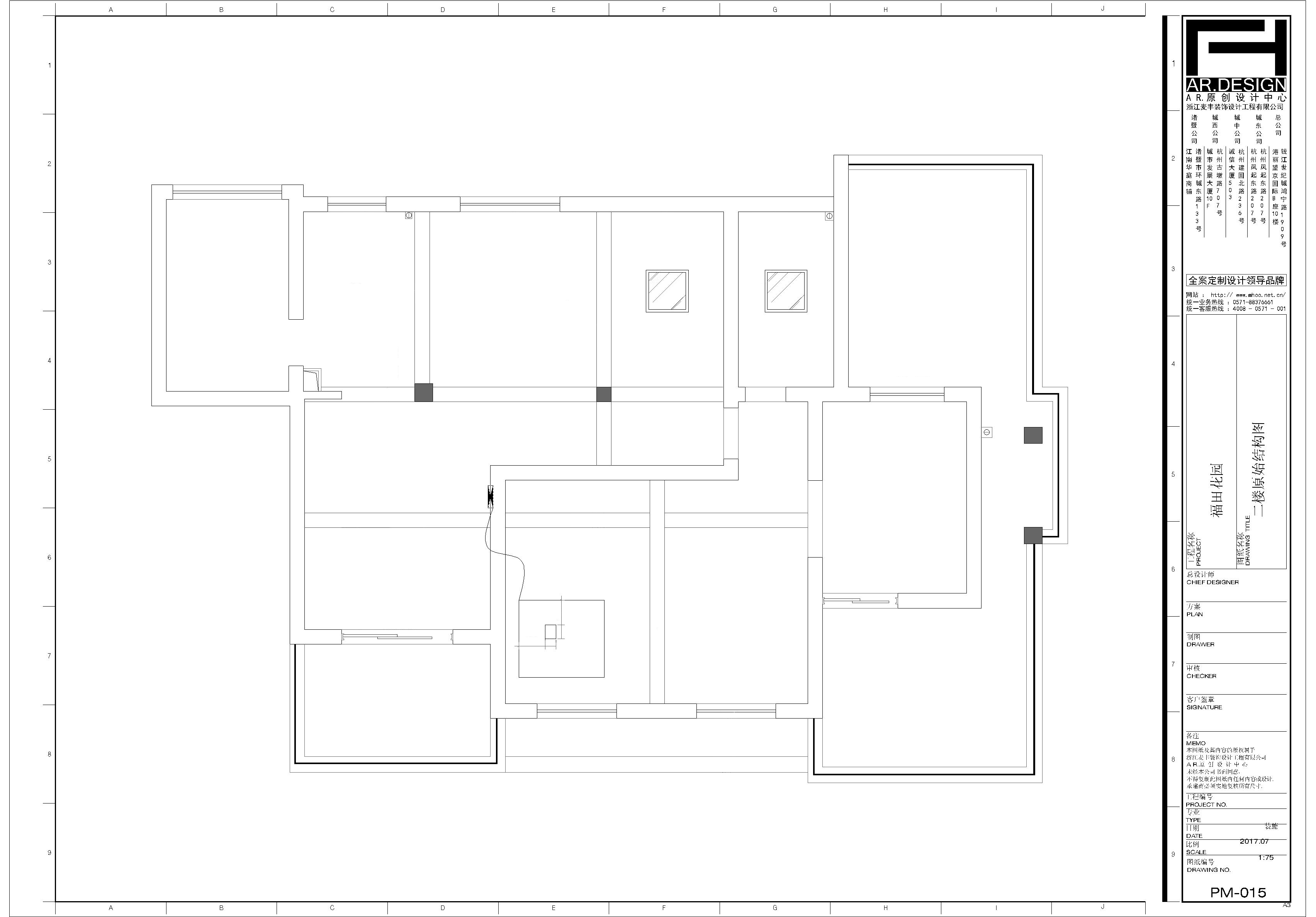
▼二层原始结构图:
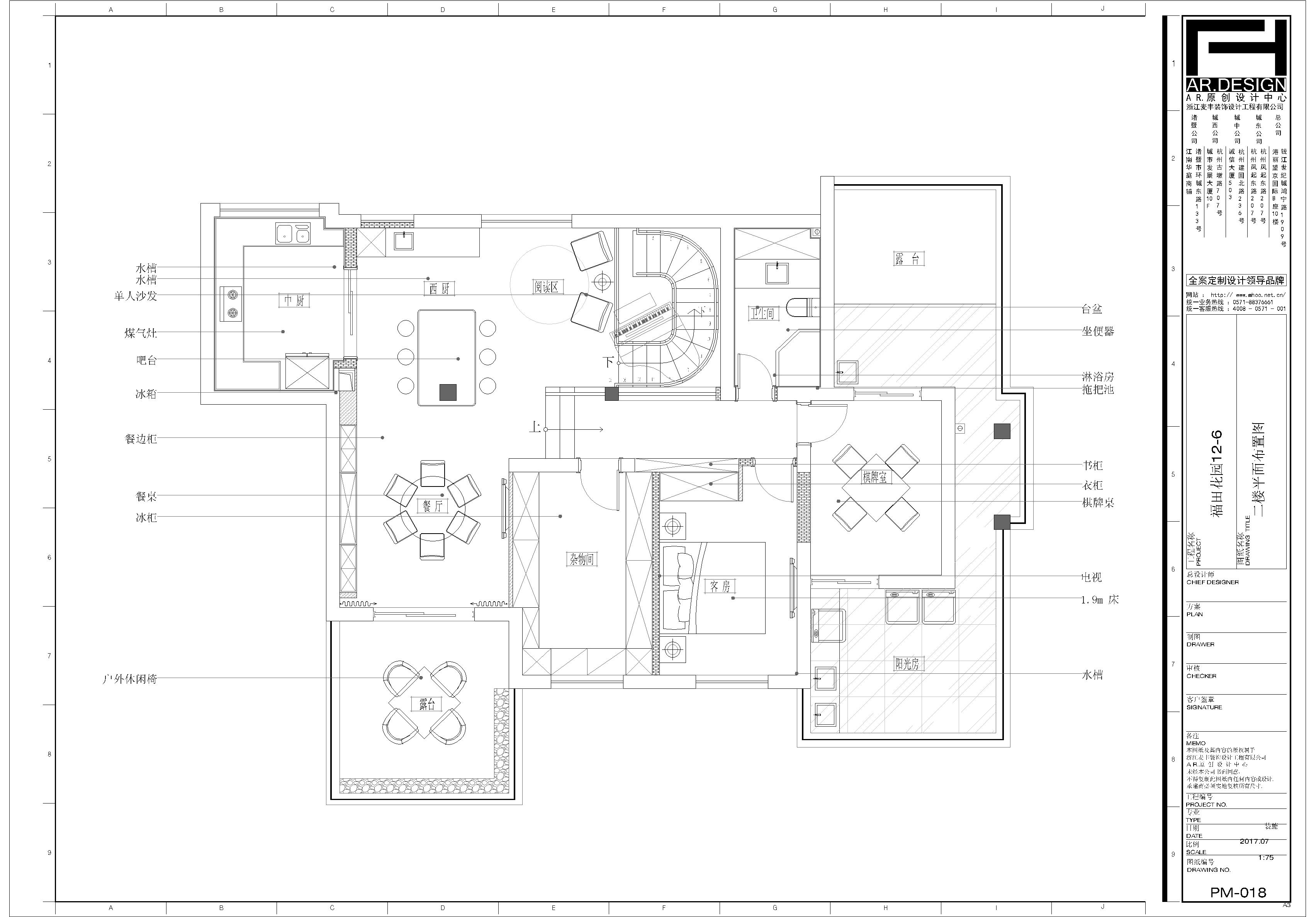
▼二层平面布置图:
设计灵感: 业主家三代同堂,特别喜爱美式装修风格,因此如何调和三代人的喜好,统统融入到这个家中是这次设计最大的难点,而业主正好也很有耐心,于是在一次次的沟通中,逐渐形成了业主所期望的温馨的家。 |
精华推荐
换一换
-
麦丰设计 2021-10-12 11:31:03▼客厅
借助优良的采光,客厅通透明亮,皮质沙发、布艺沙发,多沙发的布置满足三代人的需要,电视柜和台几等木制作,为整个空间增添了一份稳重大气。
客厅采用了主灯加辅灯的多层次光线布局,丰富和满足了空间的光照需求,用吊顶、石膏线,配合挂画,使原本朴素的墙顶面凸显出精致的感觉。
▼书房
书房设计了较多的储物空间和书柜,木质地板和书桌搭配灯具,背靠书柜,开门就给人以浓厚的书香气质,缓缓翻动的书页是时光的篇章。▼楼梯
楼梯过道空间宽阔,以装饰柜和植物点缀,同时一架钢琴也安置在了此处,偶尔会有一双灵动的手,在这里为家人奏起乐章。
回复举报
-
麦丰设计 2021-10-12 11:27:13▼厨房-餐厅
厨房分为中厨和西厨两块,以适应不同的需求,中厨区采光优渥,橱柜以绿色凸显自然乡村风味。
西厨区与吧台相连,方便做饭时与家人闲聊,或是偶尔吃些早餐或下午茶,同时作为餐厅和厨房的过渡,还能起到一些中岛的作用。
厨房区域餐桌选配了木质餐桌椅,能同时满足一家人的用餐需求,墙面做了装饰柜,为整个餐厅添色不少,一侧自然采光良好,屋内主灯配合辅灯光线充足,无论是白天还是夜晚都能拥有一个舒适的用餐体验。
▼阳台
二楼有一个惬意的阳台,借此把阳光引入家中,为生活增添一分悠然暖色。
▼卧室
卧室墙面素雅,用石膏线和挂画进行装饰,低调中透出一丝雅致,木质地板和木作家具使整个空间踏实了起来。
绿色与木色相搭配,在绿植的点缀下使人仿佛回到了山林,与自然来了一场邂逅。
▼卫生间
案例信息项目地点:诸暨福田花园项目类型:住宅项目性质:全包项目面积:280平方项目风格:简约美式设计师:麦丰AR原创国际施工:浙江麦丰装饰设计工程有限公司软装:东麦家居主要用材:整体木作,墙布,木饰面,壁画,不锈钢等摄影:林峰文字编辑:KK


发表评论2