本帖最后由 麦丰设计 于 2021-10-15 10:26 编辑
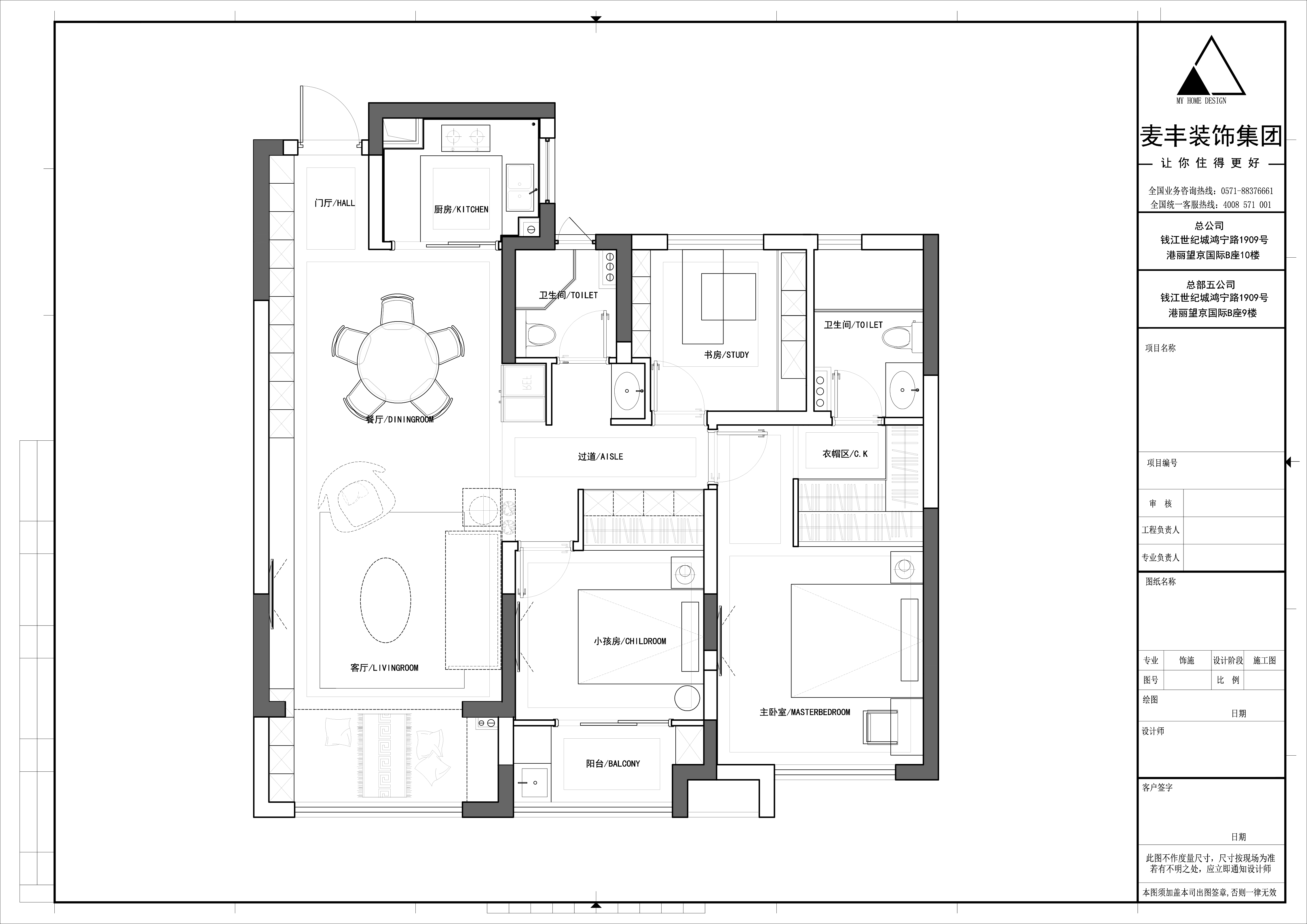
「Mokha」 从不停止探索生活的意义 为何如此热爱 因为有鲜花、美食,还有光... 业主需求 这对年轻的业主夫妇,喜欢台式风格,接受性冷淡风。需要足够的储物空间,日常喜欢美食的他们需要厨房餐厅氛围灯光好,目前暂时没有宠物和小孩。需要地暖,需要备用书房/客房。 设计方案(户型对比图)
设计师手绘图(初稿)
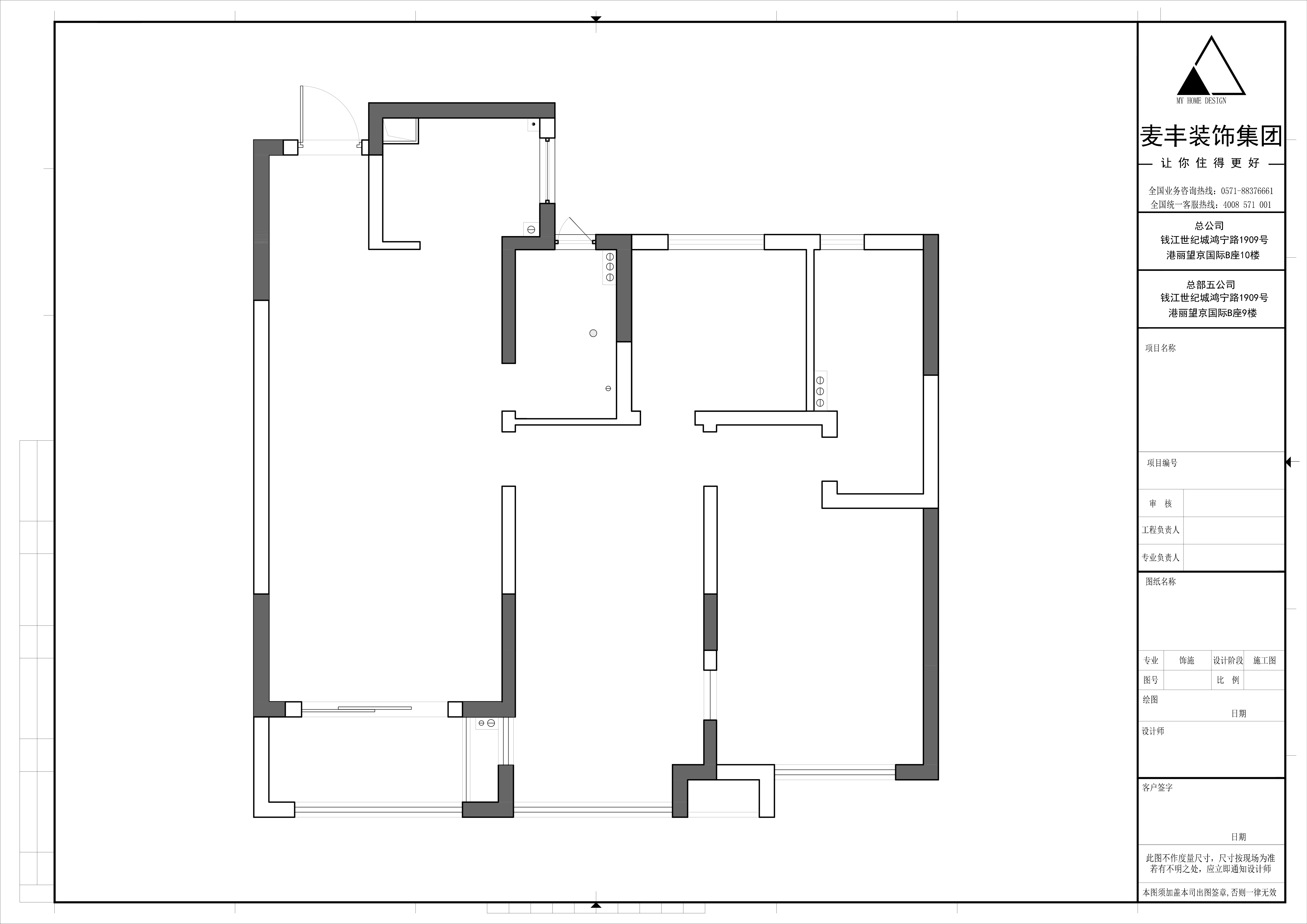
原始结构图
平面布置图(定稿) 户型优劣势 户型优势:户型是标准的89方三房两卫配置,赠送面积多,南面通风采光好,厨卫在北,是相对来说利用率较高的空间。 户型劣势:各个空间布局相对紧凑。 户型改造 l 原始阳台在客厅,为了丰富活动空间,设计师压缩了次卧面积,把生活阳台移至次卧,使客厅空间宽敞、明亮。 l 没有把冰箱放在厨房里,相对的,外卫的台盆位置有所调整。 l 半开放了沙发背景墙,目的也是增加空间的通透性,在保留卧室功能的基础上,尽可能的打开空间,增加住房舒适感。 l 柜体采用贴墙和背靠背的形式,尽可能的利用墙体,过道,以节约空间。 设计灵感 设计上面更多的是考虑打开空间,尽可能在面积固定的基础上延伸视觉感。尽可能的多使用冷色调材料,在同等价位下,更好的凸显质感。 |
精华推荐
换一换
-
麦丰设计 2021-10-15 10:50:03玄关Entrance以定制玄关柜打造一个相对独立分开的玄关空间,即是鞋柜又是餐边柜,暖色灯带渲染温馨氛围。本案采用无主灯形式,增加重点照明。设计师在设计初始就选择好了壁灯样式,精准水电定位。
可以看到入户处设置了换鞋凳和挂衣区,利用每1平米,将其功能发挥到最大。
客厅 Living Room年轻人从不局限于传统的住家生活。打破紧凑的空间格局,定义自由开放的新生活态度,抛去繁复,随性而自由。
温润的木质饱有细腻的纹路,低饱和度的色彩搭配,柔软与刚硬交错糅合。台式的沉稳与内敛,现代的简约与克制在这方寸之间缓缓展现。
将沙发墙以半开放的形式展现,让客厅与卧房的交界处有更多的灵动空间。
壁上暖灯点亮重点区域,将整个空间润色,温情与浪漫缓缓漫延...
餐厅 Dining Hall热爱料理,忠于美食。在为这对年轻夫妇设计餐厅的时候,尽量为他们打造温馨的用餐氛围。
厨房 Kitchen本案厨房的亮点在于高低分层,灶台区高度降低,烹饪时更方便。为了给业主良好的料理环境,特不将冰箱放置厨房内,用仿大理石砖与双饰面门板打造通透敞亮的空间。
回复举报
-
麦丰设计 2021-10-15 10:37:19主卧 Master Bedroom延续了整体的室内风格,卧室整体以暗灰为主色调,柔软的织品,温暖的木地板,完美营造舒适的睡眠环境,入室便能将一天的疲惫扫去。
在房子的整体布置中,每一件物品都精心挑选。不论色彩、材质、位置还是角度都是设计师所要考虑到的。我们所要做的,就是在满足业主需求的条件下将空间美发挥到极致。
主卫/公卫 Bathroom卫生间以仿大理石砖打造,让不大的空间更通透,防水乳胶漆以耐擦洗的优势保障了卫生间干区的完美收口,更易于保持卫生。台盆与镜子的尺寸较小,采用偏离中心式摆放方法,在美观的同时兼顾实用。
次卧 Guest room次卧也是去繁就简,干净利落的线条融入了大多年轻人对生活的独特看法。床头台面兼具无线充电和USB充电的功能,将智能科技融入现代新生活。
生活就是,对喜欢的事物抱以热忱,永远积极向上,永远保持年轻!




发表评论2