本帖最后由 麦丰设计 于 2021-10-18 14:07 编辑
食罢一觉睡 起来两碗茶 举头看日影 已复西南斜 业主需求 业主需要大厨房,大茶室,喜欢留白,喜欢禅意。 设计方案(户型对比图)
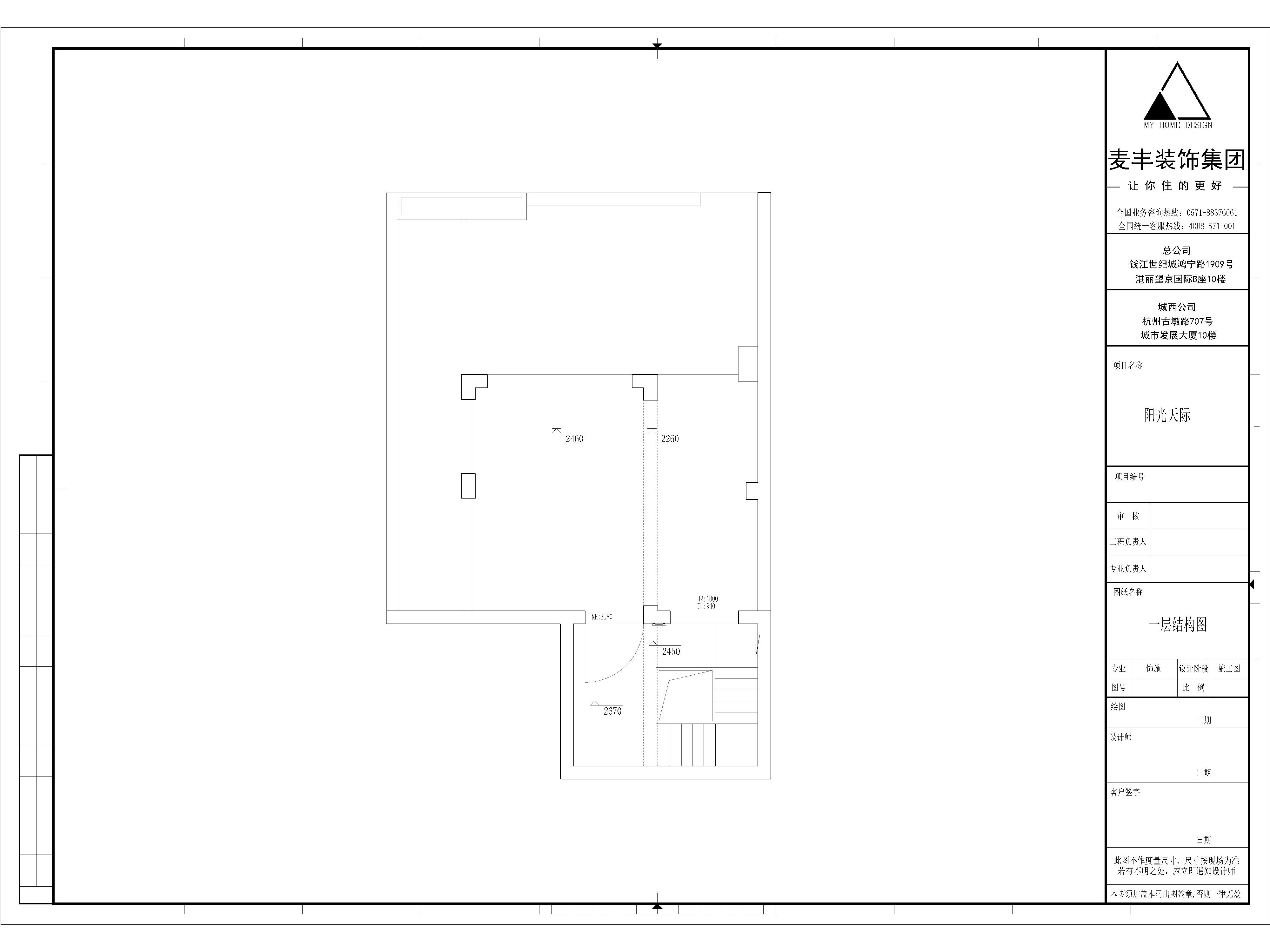
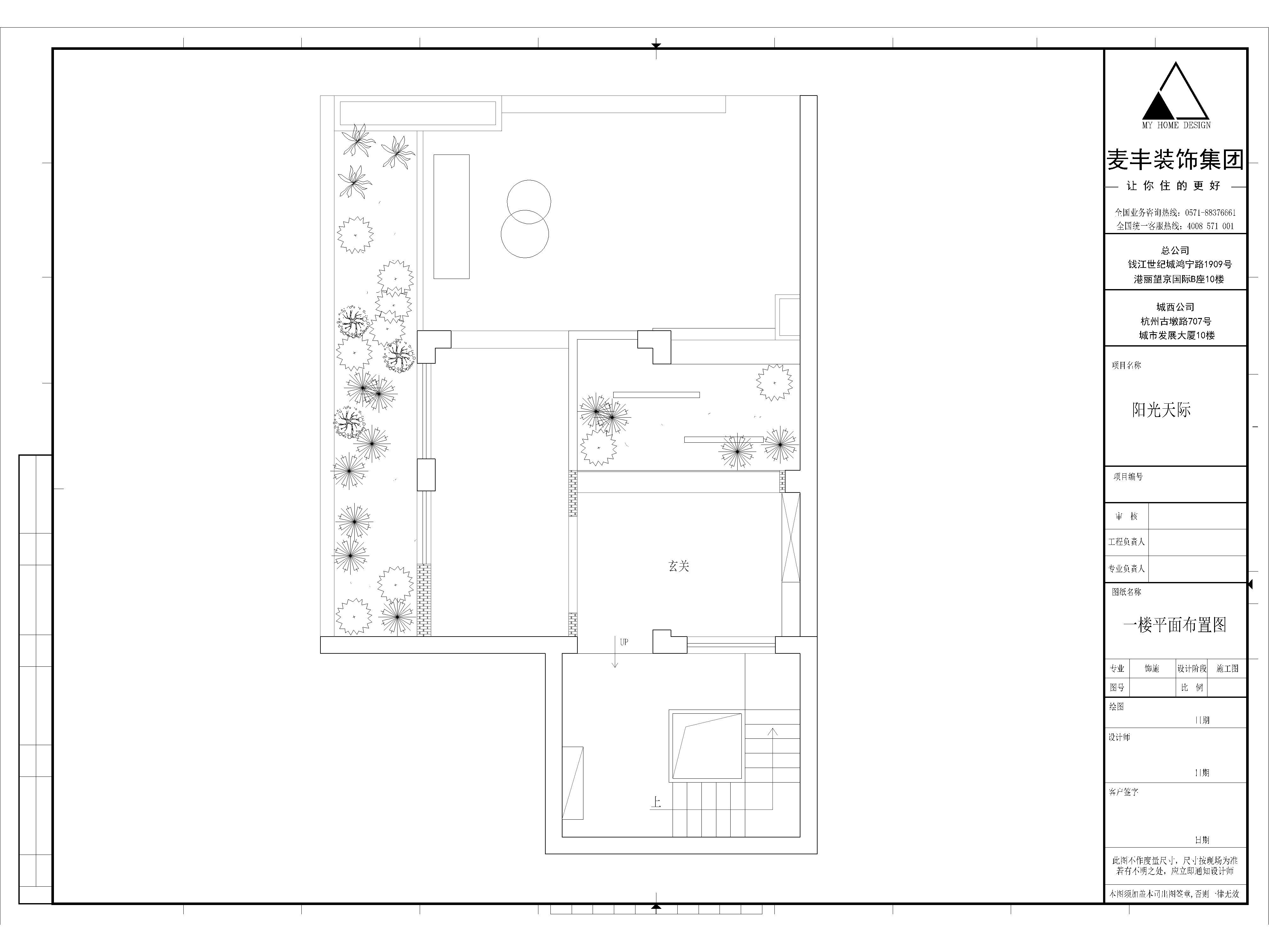
一层户型对比图
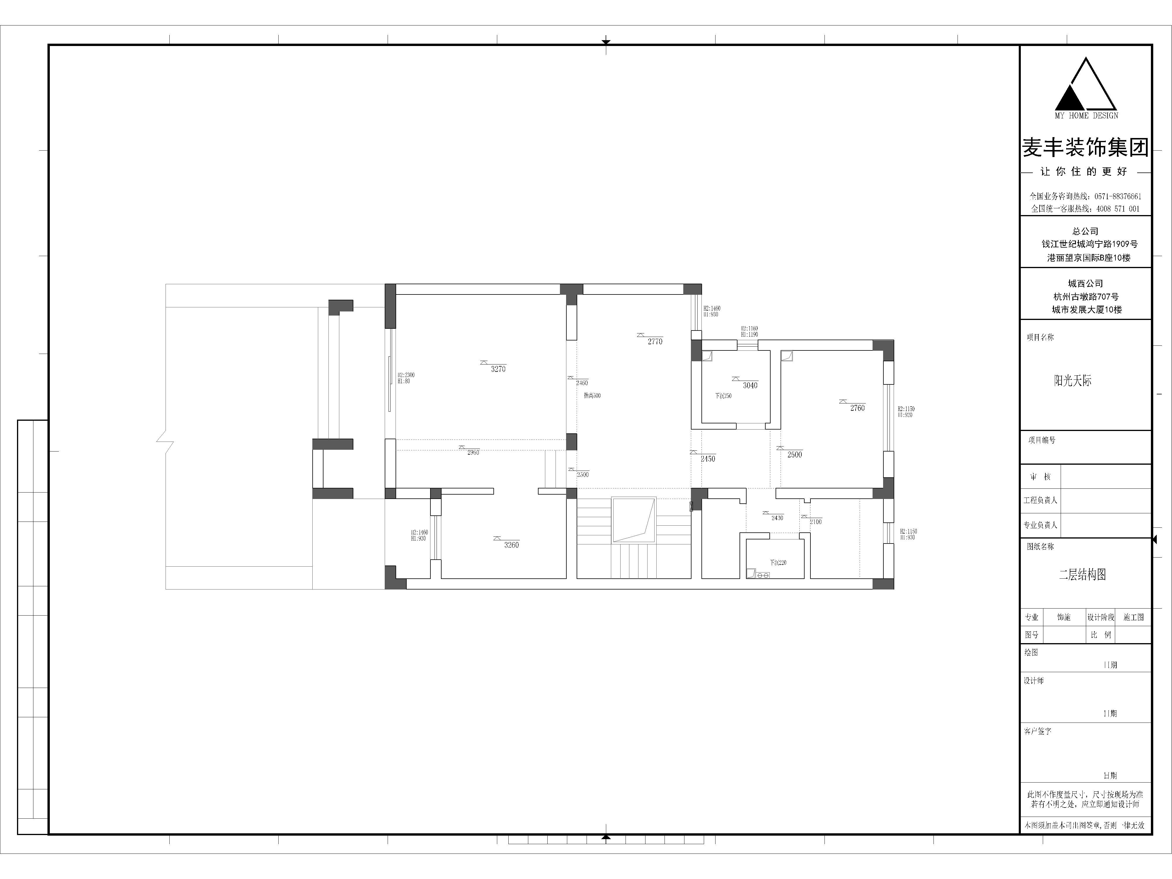
二层户型对比图
三层户型对比图
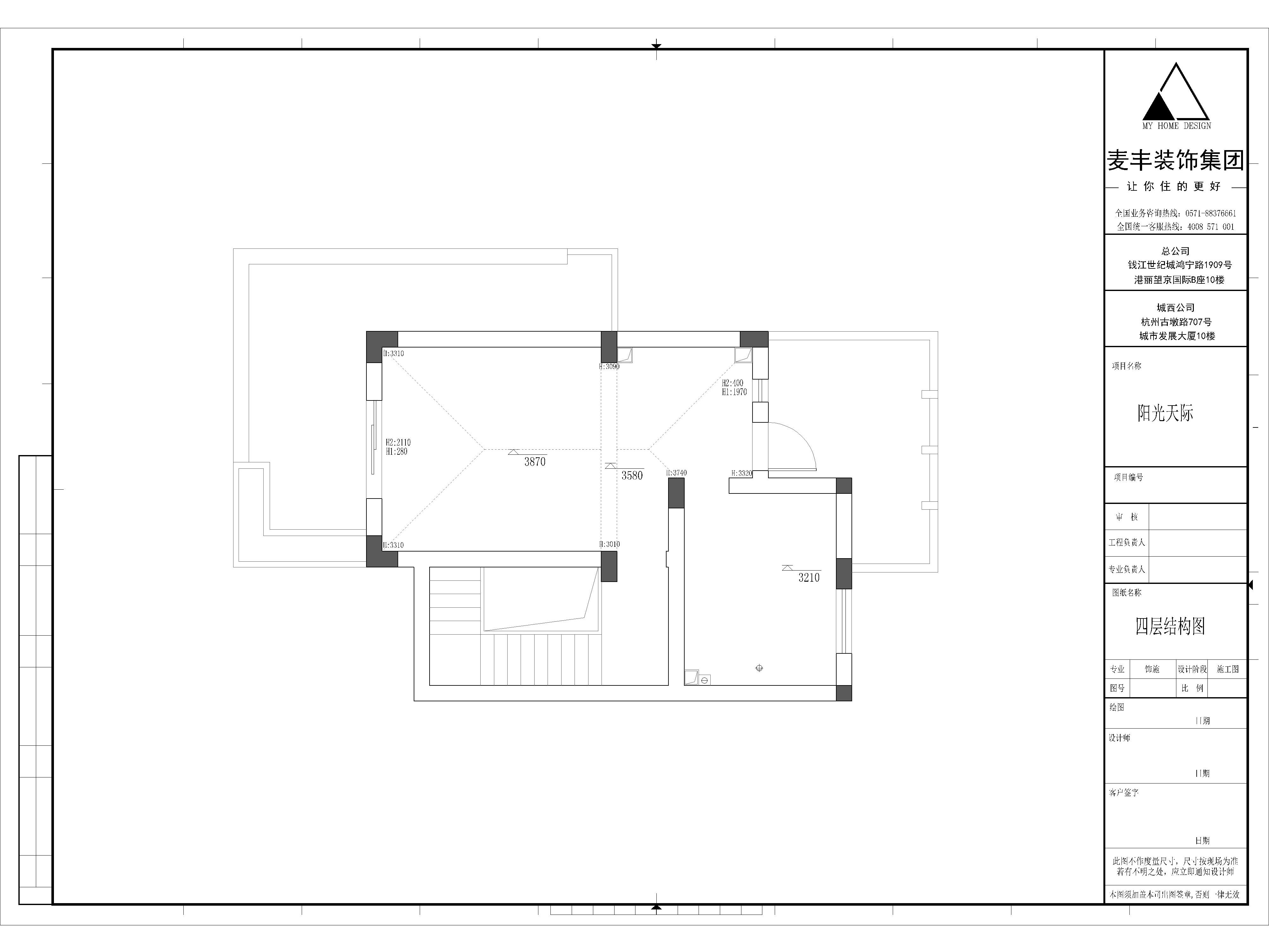
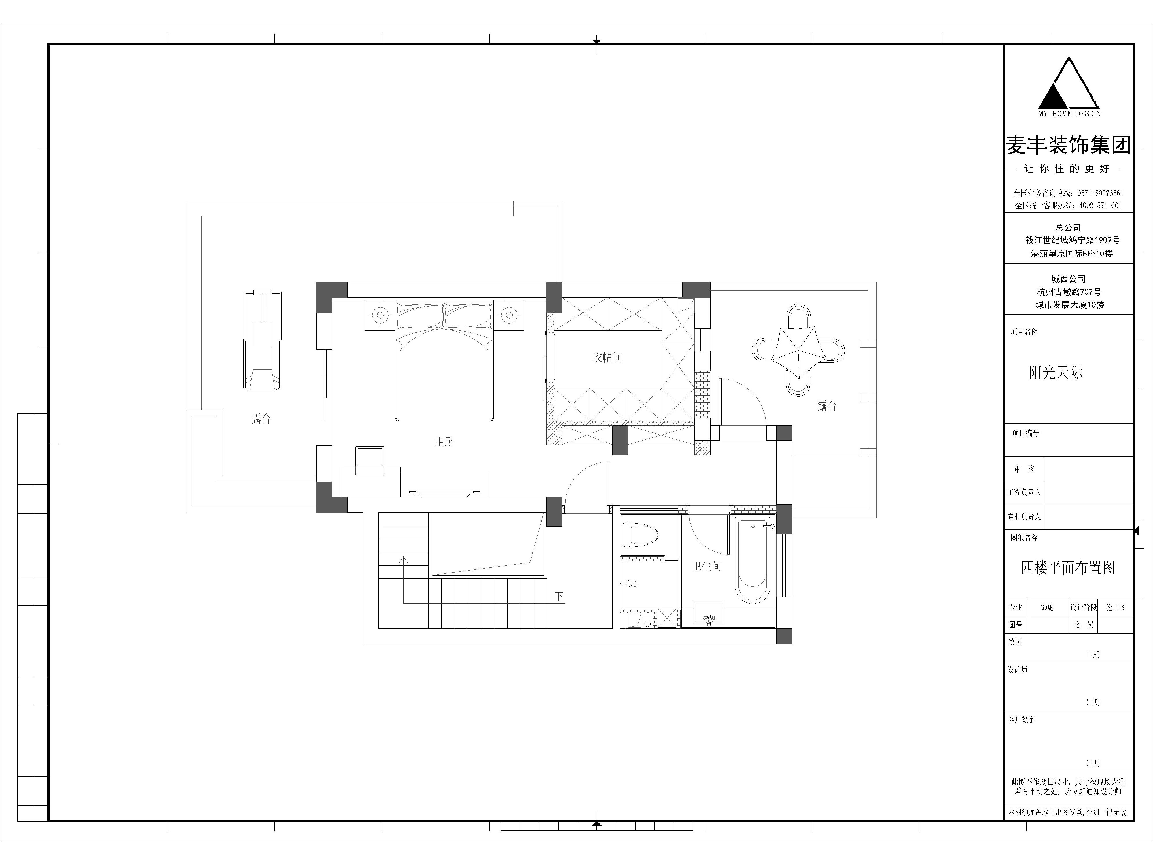
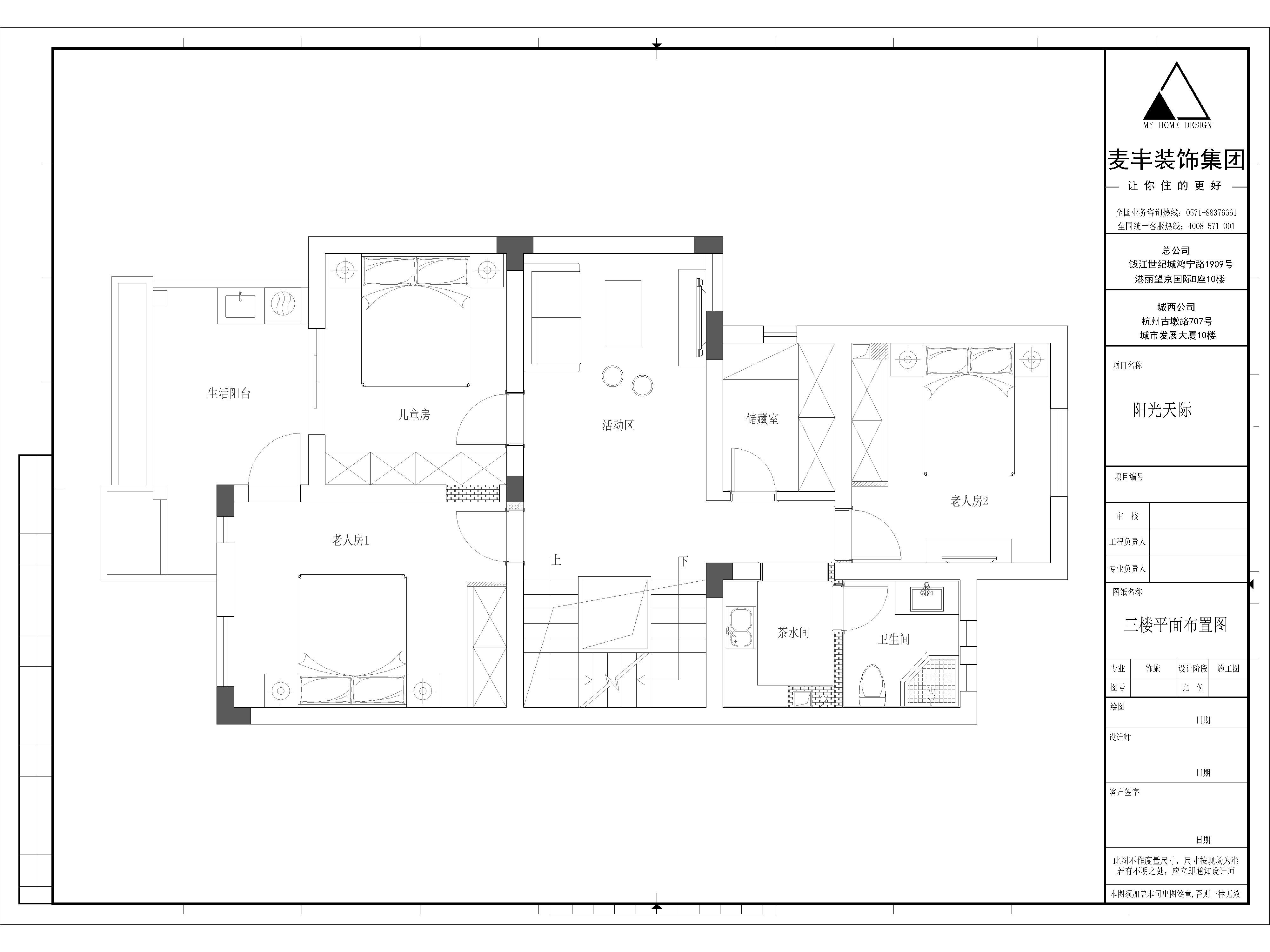
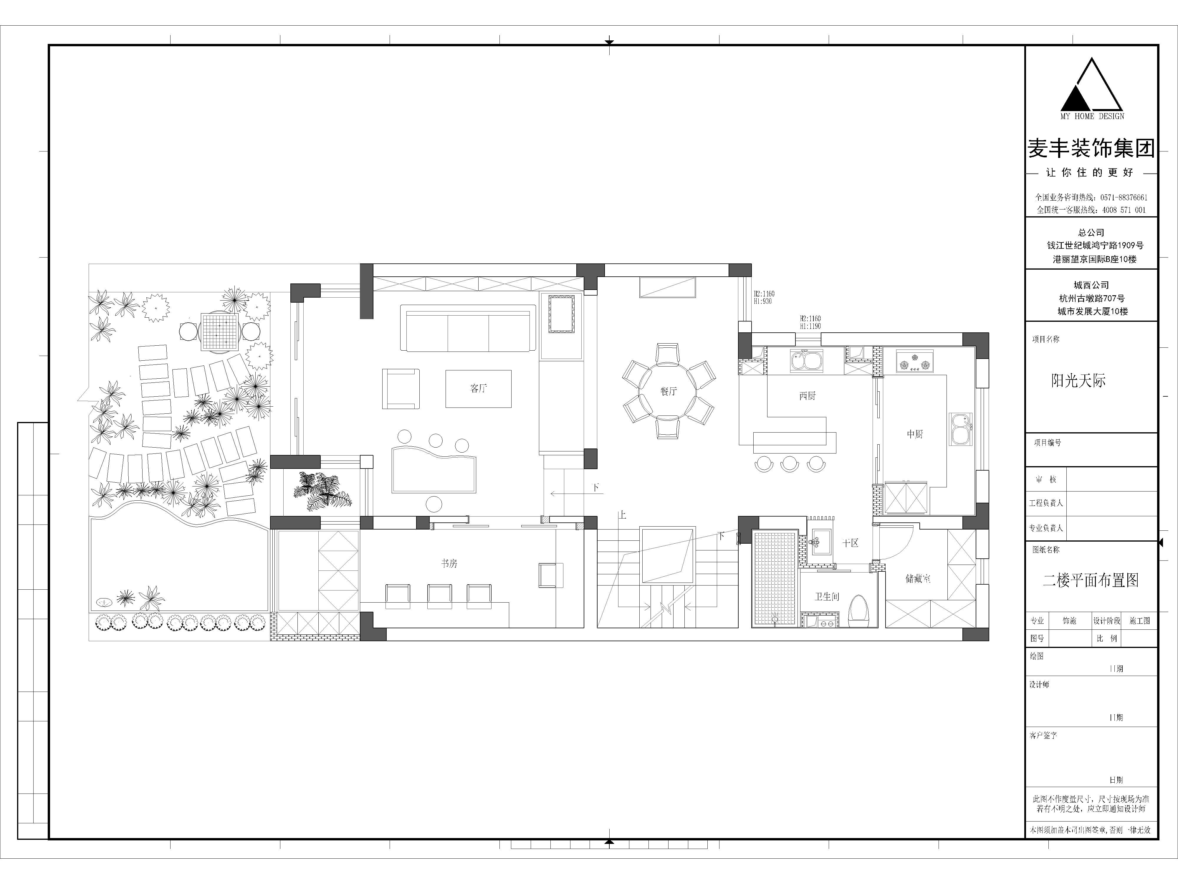
四层户型对比图 设置了二个厨房和三个茶室,中西两厨房和一个适合独处的榻榻米茶室,一个适合多人聚会的大茶室以及一个属于闺蜜或夫妻的阳光茶室。其他四个卧室分别是孩子一间,老人家两间和主卧一间。 户型优势 南北通透,作为排屋最大的优势是前厅花园。 户型改造 设计师对于中式的借景手法一直颇为喜欢,所以在做整个案子的时候首先考虑前厅如何取景让景色进入室内,书房的借景也是同样的道理,整个案子最大的特色就是茶室多,所以在做方案的时候与普通住宅有所区别。 |
精华推荐
换一换
-
麦丰设计 2021-10-18 14:25:07庭园以古典园林建筑中常用的构景手段将自然之中的形、色、气韵囊括其中,收无限之景于有限之中。借磅礴山水,生灵之气,福满家宅。
玄关玄关是整个房屋风格的一个缩影,仅设一窄桌一摆件,宾客未入室便能感受浓浓的禅意和厚重的文化气息。
客厅客餐厅设置在二楼,进门入眼便是通顶的藏品展示架,设计师以其对中式风格的理解,用整体木作打造古朴优雅的会客厅。
书房与客厅以木质移门分隔,打造了一个较为私密的谈话与学习空间。
回复举报
-
麦丰设计 2021-10-18 14:15:48楼梯楼梯沿用整体木作,以木搭配防护玻璃,注入现代的风格气息,打造通透的视觉同时也增加安全性。设计师眼观风水,巧妙摆放石狮的位置与朝向,起化煞镇宅之效。
卧室卧室顶面以原木填充,搭配造型简洁的吊灯,注入现代的气息。仰头便是浓浓的自然气息扑面,扫去一天的疲惫感,定制床体与卧室融合,打造浓浓的度假民宿风。
茶室榻榻米上铺一薄席,设一桌椅软垫,与知己对坐闲谈。
友谊经年厚,杯中清香淡淡,醉了芳华...
案例信息项目地点:阳光国际项目类型:住宅项目性质:全包项目面积:300平方项目风格:民宿风设计师: 麦丰国际设计施工:浙江麦丰装饰设计工程有限公司软装:东麦家居主要用材:整体木作,乳胶漆,石材摄影:林峰文字编辑:橙子




发表评论3