|
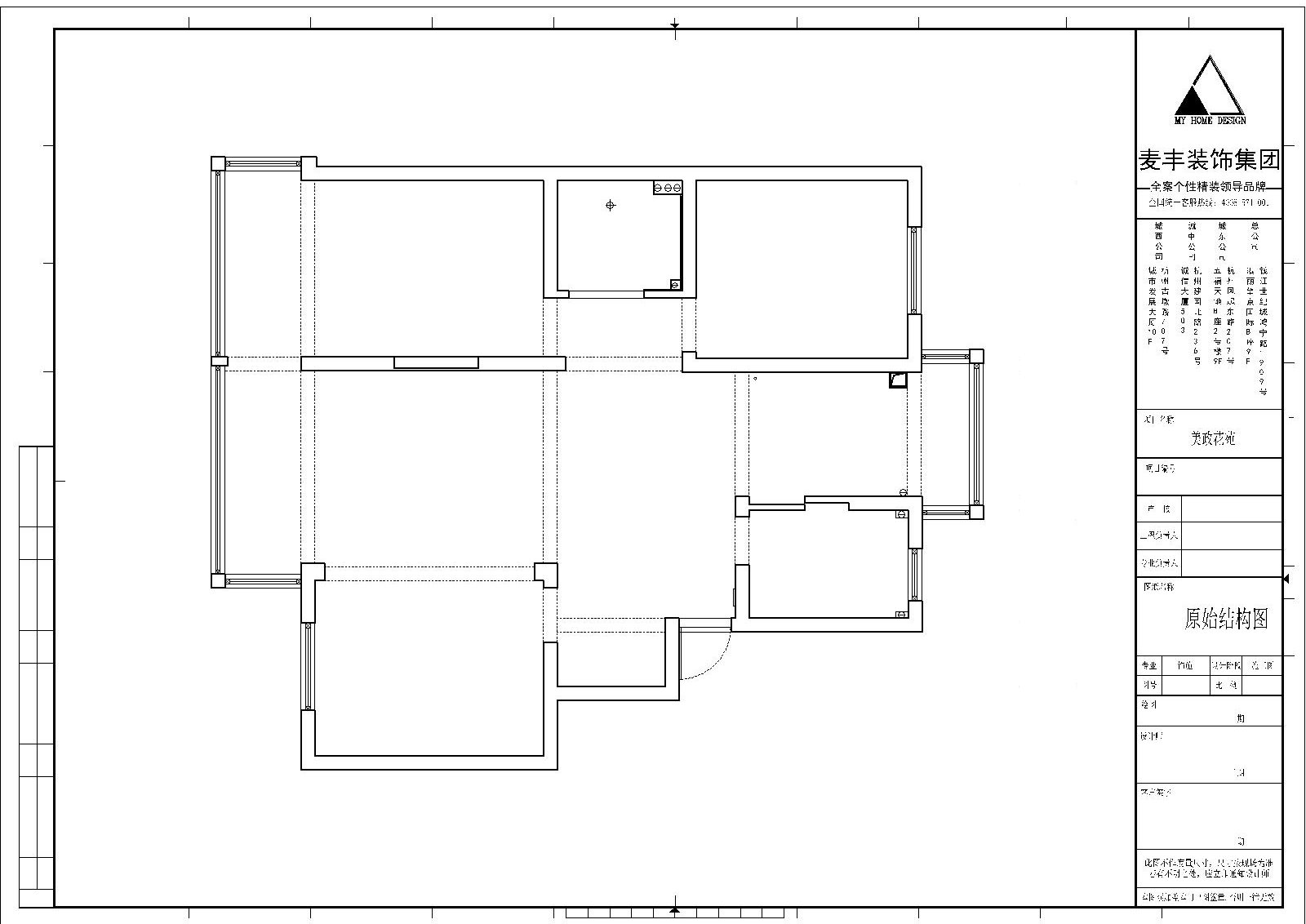
把烦恼留在门外 踏入玄关 生活就只剩下简单的小美好 生活其实应该简单 现代风的简单 简约风的简单 最朴素的,最经久不腻 在生活中,我们会遇见各种各样的人,碰见各种各样的事,或开心,或悲伤,我们无法预测在人生的每个关口、转角会遇见谁,时代在进步,生活节奏也在变化,许多人抱怨已经无力顾及自己的情感生活和家庭,或许我本来也会如此,但幸运的是,我遇见了你,所以不管面对着外界怎样的压力,怎样的风浪,我都知道有这样一方港湾,心里满是安心。 设计方案: ▼原始结构图
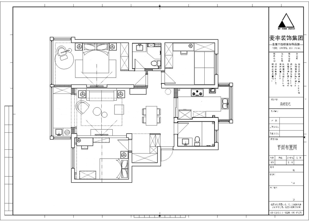
▼平面布置图
户型优缺点: 优点:原户型较为周正,采光充足,各功能区有较为明确的划分 缺点:客厅的隐蔽性较差,主卧空间较小 户型改造: 延长了玄关部分,与客厅进行阻隔,增强隐蔽性,主卧与厨房的阳台包进整体空间,扩大主卧和厨房的面积。 业主需求: 由于工作的关系,家里不太生火做饭。业主比较喜欢朴素中蕴藏着精致的感觉,爱看书,喜欢在家中安静地享受清静的时光。 设计灵感: 简约有别于简单,简单是空荡荡,而简约是恰到好处的自然,每一处设计中蕴藏的小情调才是灵魂。 |
精华推荐
换一换
-
麦丰设计 2021-10-19 13:44:03▼玄关
玄关部分通过添加柜体阻隔了客厅与玄关,避免从入口直视客厅,提升了屋内的隐私性,踏入玄关,看得见的是入眼处的青翠与时钟,看不见的是你与我的小时光。
同时将鞋柜隐形设计在柜体内,避免了玄关处的拥挤,形成了整洁干净的氛围,一到家就仿佛褪去了工作的烦恼,干净清爽,而柜体朝向客厅的一面放置了一整面镜子,从视觉上扩大了玄关和整体的空间。▼客厅
蛋型椅与一字长沙发将客厅的悠闲表达得淋漓尽致,慵懒午后蜷缩在沙发上,看着透过窗帘散落进来的阳光照耀在小摆件上,拖出时光的影子,仿佛整个世界只剩下了此刻的这份安谧,静守时光。
同时客厅作为家中招待客人的主要区域,需有一定的庄重感,内侧窗帘颜色选用深蓝,地板上铺设了方格地毯,茶几、绿植、挂画、立式台灯,整体的搭配摆放紧凑但不拥挤,一如朋友间相处一般,君子之交淡如水,距离恰好最适宜。
用餐区域位于厨房与客厅之间,遵循整体的设计风格,显得较为简约,但是餐具的小细节处处显露着精致不将就的意味,同时由于餐厅处于整个家的中央位置,因此无论业主是在客厅,还是在屋内,亦或是刚下班踏入玄关,不管身在何处,家的温暖总是第一眼就看得见。回复举报
-
麦丰设计 2021-10-19 13:41:06▼厨房
厨房空间采用U型设计,较为宽敞,设施设备一应俱全,多橱柜的设计充分满足了烹饪收纳需求,现代风格下整体干净整洁,线条美充斥在整个环境中,与精致的餐点相映成辉,阳光洒进厨房,安安静静地为家人准备一桌饭菜也是一种别样的享受。
▼书房
无需过多复杂的装饰,简约整洁的书房就能带给人心灵的安宁,设计师充分利用了柜子来进行收纳摆放,将空间利用到了极致,书房内还安置了榻榻米,风格朴素但透露着满满的书香气,闲暇时光备一杯茶,躺在榻榻米上,手握一卷书,享受一天的思考时光 。
▼主卧
主卧采光充足,白色与深蓝色窗帘配合蓝色墙面,完美的展现出了蓝色的纯净感,营造了安谧的氛围,衣柜设计的较为隐蔽,完美地融入了卧室环境,整体的元素搭配充满了简约美,偶尔清晨早起,迎着微光靠坐在沙发上,美好的一天正待开始。
床头柜上简单的摆设,一如人生,当时间缓缓流动,灯光下两人独处的时光,胜过这世间万千繁华。我常常幻想给自己的人生做一道减法题,在减去所有冗杂事物之后,安静的享受生活本来的样子,也许平淡但不会失去生活本真。
-
麦丰设计 2021-10-19 13:37:45▼次卧
次卧为儿童房,由于孩子还小,因此设计上更重视趣味性,较为活泼的收纳柜、座椅和小桌子,寓教于乐的壁纸,充满野营氛围的小帐篷,满足了孩童玩乐和知识获取的需求,整体的设计就像一个游乐角一般,想要给孩子一个幸福的童年,打造他一生的回忆。
寄语:我们常常会思考家存在的意义,在当下,因为各种各样的原因,譬如学习、工作甚至更多,跟家人在一起的时间远不及日常跟朋友同事的来往,但在一天的忙碌或是欢腾后,每个人都最想回到那个被我们称之为家的地方。我想这大抵是因为:狂欢中的共鸣来的太过容易,而安静时的互相理解,孤独时的陪伴才最为来之不易,总有人喊着你一起去闹,去疯,却少有人关心你内心深处最敏感的地方。或许这就是家人的意义,就是家存在的意义,互相理解,互为港湾,一起勇敢的面对这世间的一切,因此,家其实只需要简简单单就好,你的存在,家人的存在,就已是这世间最珍贵的宝物。
现在,我就想回家,在餐桌上和你谈谈我今天的见闻,在灯光下和你聊聊我今天的趣事。案例信息:项目地点:美政花苑项目类型:住宅项目性质:全包项目面积:114 ㎡项目风格:现代设计师:麦丰国际设计施工:浙江麦丰装饰设计工程有限公司软装:东麦家居主要用材:柔光砖,大理石,实木复合地板,墙布,墙画摄影师:林峰文字编辑:KK




发表评论3