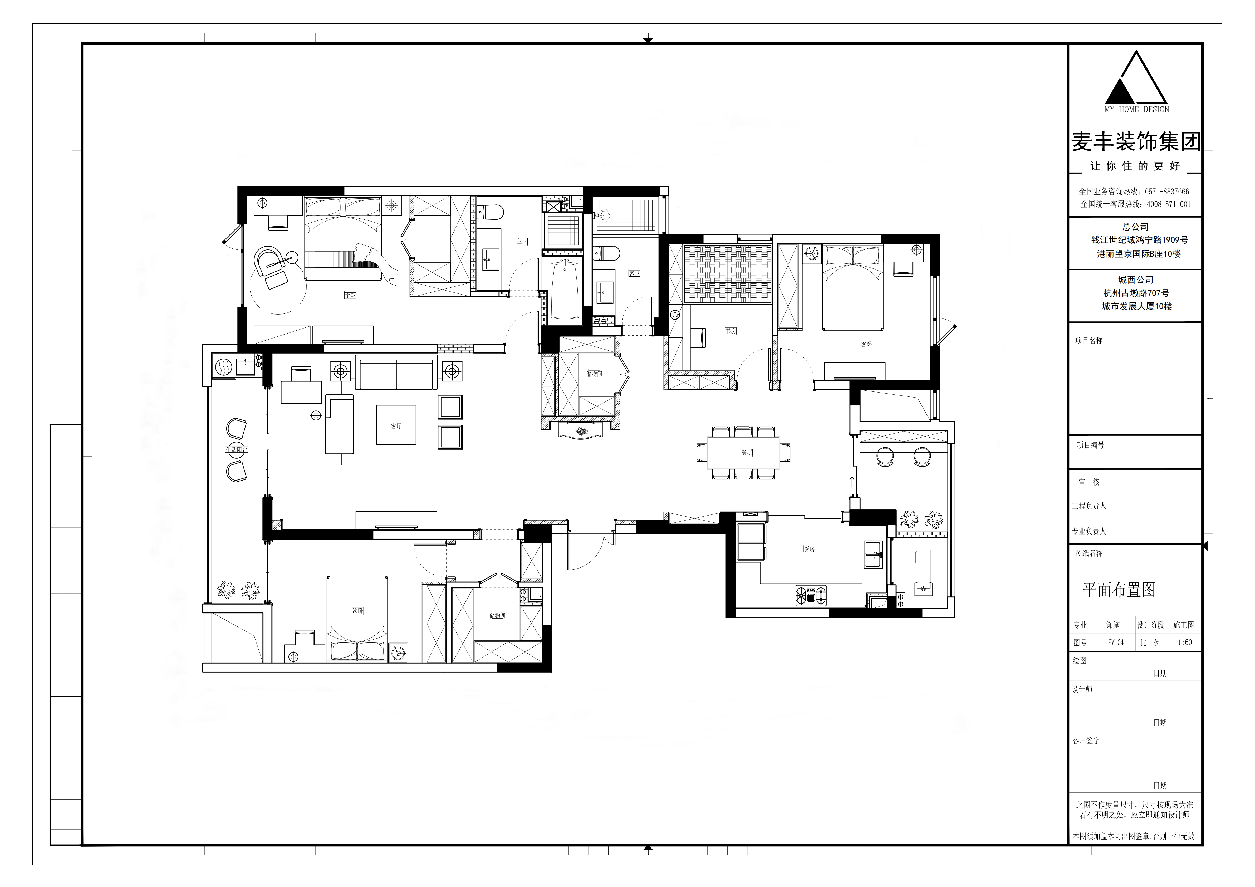
When the leaves fall, I know autumn is coming. 她姓叶,他姓邱 今日我有一个美好的爱情故事 叶落“秋”来 叶:记得我们的初见刚好在秋天,回家的路上突然下起了大雨,雨水浸湿校服,慌张之时,你撑着伞向我跑来,递出纸给我,我仰头望着你阳光又带着生涩的面容,一时紧张得说不出话... 邱:第一次看见你时,你在操场上和女同学好像聊着什么开心的事情,向我迎面走过,阳光扑洒面庞,好像那时就喜欢上你了,每天放学就悄悄跟在你后面保护你,好几次想和你认识,却鼓不起勇气。 今天放学好像会下雨,抢来了同学的雨伞,跟在你后面。后来真的下起了大雨,我这次终于有理由能认识你了,心里紧张又开心,看着你慌张的背影,我鼓起勇气跑上去为你遮雨,看见你被淋湿了头发,递出一张纸给你,看见你紧张脸红的样子,突然觉得好可爱。这次难得的相识,殊不知是我蓄谋已久的。 客户需求 本案是四室两厅,客户需要一块宽敞大气的休闲空间,和较为宽敞的书房。 户型的优缺点 户型优势:空间比较大,南北通透,户型方正。 户型劣势:书房空间狭小,储物空间不足。 户型改造 加大书房面积,外面增加了公共储物间,主卧室也增加了一个衣帽间。 设计方案(户型对比图)
|
精华推荐
换一换
-
麦丰设计 2021-10-23 14:23:16▼玄关Hall推开门,一入眼便是精致的玄关,玄关在很大程度上也是室内风格的一个缩影。孔雀绿和浅褐色的墙面让人眼前一亮,墙上的艺术画起到了衬托的作用,精致的酒红色台面搭配金属边角,提升了整体的格调。
▼客厅 Living room美式的客厅空间相比其他房间更明快光鲜,充满活力色彩。客厅中所有家具色彩交辉呼应,柔软的皮质沙发、仿裂痕地毯、美式木质茶几和金属水晶吊灯完美地提升了整体的高贵质感。
阳光透过柔软的薄纱窗,洒下斑驳的光影,悠闲的陷在沙发里,沉浸在精致的美式优雅中,享受着我与你的专属时光。
▼餐厅 Dining room餐厅沿袭了整体空间的配色,依旧是大胆的色彩碰撞。大面积的采光、浓郁的美式氛围下透露出家的暖意,橙与白的欢快,激发味蕾。家,又多了一份期待。
▼厨房 Kitchen厨房整体以灰与白的大理石拼接,木质储物柜增加储存空间和自然纹理之美。越简单的设计往往越能展现干净整洁的效果。




本帖最后由 麦丰设计 于 2021-10-23 14:20 编辑