精华推荐
换一换
-
麦丰设计 2021-10-26 11:23:55
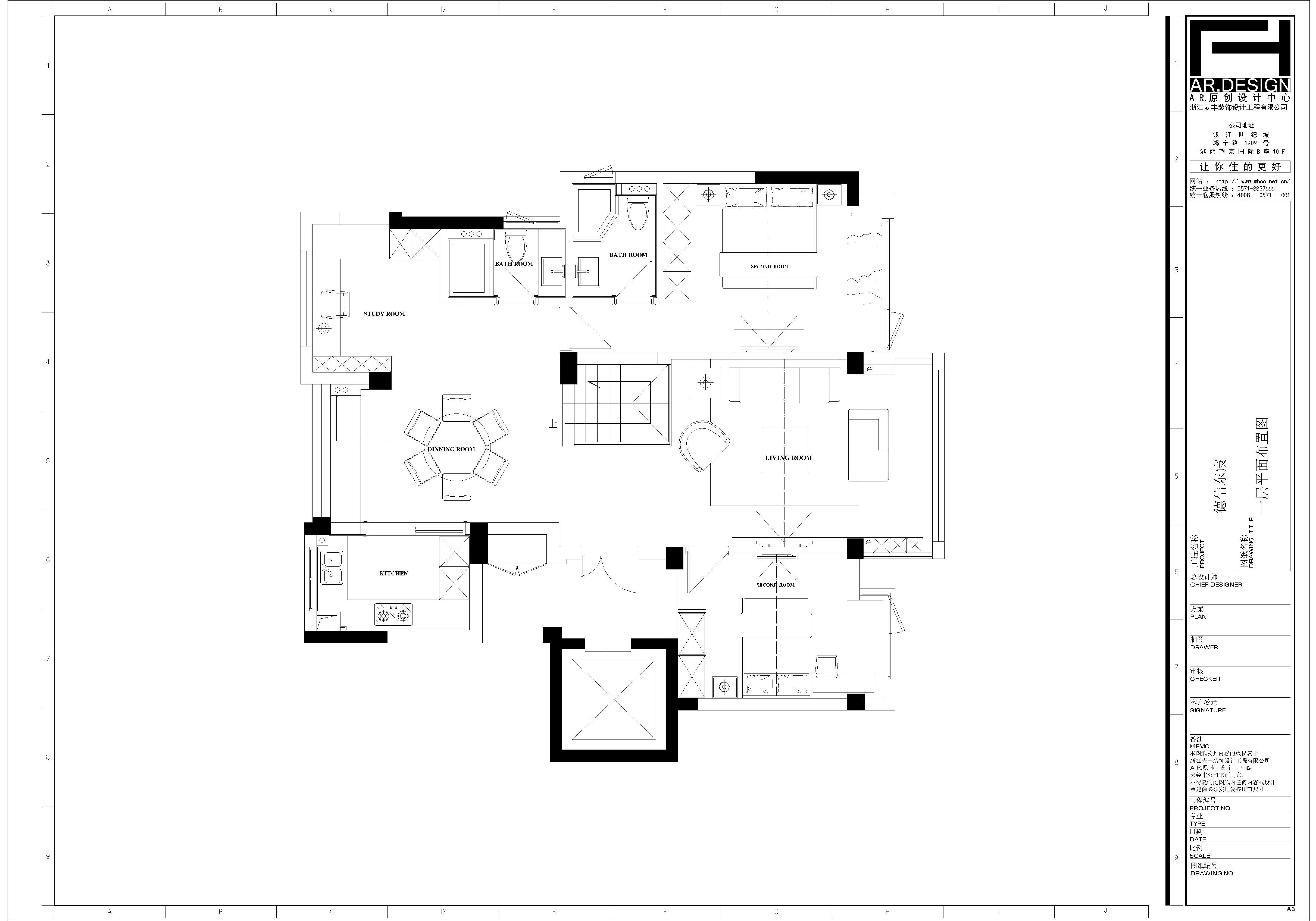
- 推开房门,首先映入眼帘的就是一座双跑式楼梯,客餐厅被楼梯巧妙的分隔开来,层次感十足,同时空间互相流通,餐厅与客厅的交流是屋内最和谐的音符。
- 客厅的设计重视线条的的运用,以黑白褐三色为主要色调,没有摆放过多的装饰品。而必要的家具,看似随意地摆放在厅内,却轻松展现出高格调,阳光透过窗帘映射在房间里,最舒适的莫过于长沙发上的那抹慵懒。
- 餐厅采用了开放式的设计,配色沿袭了空间整体的设计用色,餐桌椅配合背景也同样采用了偏深的配色,零星的绿植在背景的映衬下显得更为出色,百叶窗下设置了柜体和台面,可以收纳和摆放一些物品,使空间显得更为整洁。
- 餐厅正对着的就是厨房,厨房门采用了玻璃门的设计,在餐厅可以看到厨房内的一切,我时常想有个家,我坐在餐厅这头,你在厨房里头,偶尔你忙碌中回眸的一笑,就是这现代都市中最温暖的时刻。
回复举报 - 推开房门,首先映入眼帘的就是一座双跑式楼梯,客餐厅被楼梯巧妙的分隔开来,层次感十足,同时空间互相流通,餐厅与客厅的交流是屋内最和谐的音符。
-
麦丰设计 2021-10-26 11:15:14
本帖最后由 麦丰设计 于 2021-10-26 11:21 编辑
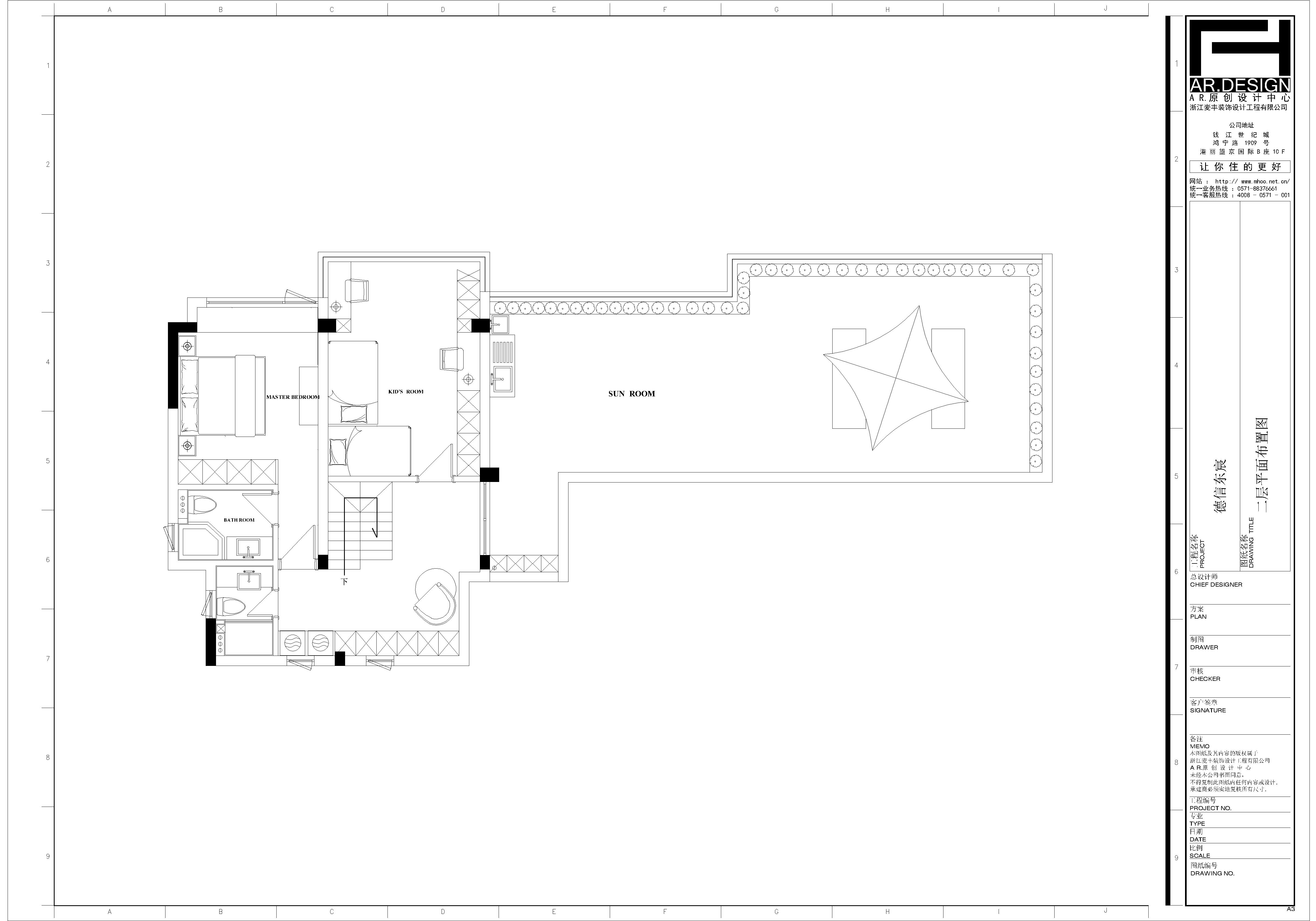
- 厨房原本应当是家中烟火味最重的地方,但在这里,黑与白的碰撞中,却诞生了这样一间冷色调厨房,借助窗台良好的采光,厨房内通透敞亮,在这种环境中制作出来的餐点,我想只有精致才能形容。
- 作为连接一二层的纽带,楼梯的设计是重中之重,为了不破坏整体的风格,楼梯采用了灰色踏板和黑色台阶的设计,同时搭配玻璃围栏,表现出了浓厚的现代气息,完美地融入到了环境中。
- 卧室在设计上没有使用过多的装饰物,而是充分利用了线条美来装点,墙面采用了素色为背景,在整体偏素的配色下,房间的布置透露出一种简约美,床头柜上一本书,一杯茶,从清晨到傍晚,生活无需太多修饰。
就像说话的艺术一样,说的太多,不如恰到好处。在岁月里,有太多太多的事情无法用文字、图案、语言来告诉你,但随着时间的流动,最终你都会慢慢明白。
案例信息项目地点:德信东宸项目类型:跃层项目性质:全包项目面积:200㎡项目风格:现代简约设计师:麦丰AR原创国际施工:浙江麦丰装饰设计工程有限公司软装:东麦家居主要用材:仿石材瓷砖、木饰面、墙纸等文字编辑:KK
- 厨房原本应当是家中烟火味最重的地方,但在这里,黑与白的碰撞中,却诞生了这样一间冷色调厨房,借助窗台良好的采光,厨房内通透敞亮,在这种环境中制作出来的餐点,我想只有精致才能形容。


发表评论2