|
本帖最后由 地产设计趋势 于 2021-10-26 18:32 编辑 近日,由IHG洲际酒店集团发起的针对改造酒店项目研讨会顺利召开。万景百年创始人吴刚先生(Jerry Wu)有幸受邀参与并做了主题分享——《改造酒店的成本管控》。作为拥有超20年酒店室内设计经验的专家,Jerry曾先后担任过全球知名酒店设计公司HBA的合伙人与国内最大商业地产开发商的设计部总经理,他深刻地了解国内外市场的差异,并对酒店设计领域有着独到见解。
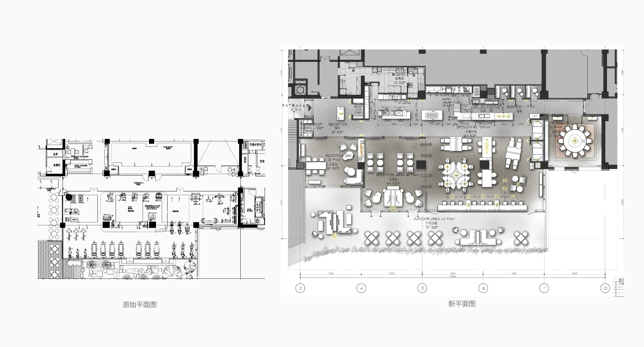
研讨会分享现场 此次研讨会中,Jerry基于逾70余家酒店项目实践经验,从近期改造酒店设计案例入手,以甲乙方的思维出发,分享了酒店建设过程中有关于设计成本管控的干货。 /从甲乙方思维出发,实现商业价值的最大化 分享会现场,Jerry讲述上海南新雅皇冠假日酒店金莱餐厅、上海虹桥祥源希尔顿酒店等近期落成案例的改造故事。 作为上海人印象中的老字号酒店,上海南新雅皇冠假日酒店金莱餐厅(全日制餐厅)地处于年均2亿次客流的南京路步行街及九江路之间,万景百年在原有基础上保留了Art Deco元素,针对新一代皇冠假日品牌标准及客群需求,融入现代法式色调和肌理,重新演绎新潮的海派摩登风尚。
改造前后平面对比 设计师选用老上海风情的花砖和具有Art Deco元素的材质,重新规划调整原有岛台布局,大面积木色材质有序地排列重组,将视野延伸,营造专属的入场仪式感,解决了原有入口窄小、视野受阻的缺点。同时,沿用了原有的全落地玻璃,空间通透明亮的同时也将繁华的街景尽收眼底。 改造前后对比:
而在近期落成的上海虹桥祥源希尔顿酒店改造中,万景百年则打破常规,开创了行政酒廊新标杆。成本管控从优化建筑平面开始,通过合理规划整体布局,塑造灵活可变的复合功能场景,打造一个兼顾商务会议、小型沙龙、下午茶、私密电话间以及自助调酒派对等多元化场景空间,创造营收效益最大化。设计师选取老花玻璃、拼花水磨石等儿时记忆中的经典材质经设计师重新演绎,将上海这座城市的古与今、摩登与当代演绎得淋漓尽致。
行政酒廊改造平面前后对比
改造前
改造后实景 在改造酒店实施过程中,成本管控是核心,是投资者极为重视的“生命线”,也是一个项目成败的关键因素。因此,Jerry认为,设计师应该最大限度帮助甲方管控成本,实现投资最小化、经营可持续最大化的目标,真正做到从甲方思维明确客户的诉求与痛点,以乙方的专业能力解决设计中的各种问题。 万景百年精心打造的作品,无论是地标性的酒店设计、国际品牌的升级项目,抑或是豪华商务酒店的改造,每一个项目都深受客户和市场的认可。近期,其四项作品斩获2021年美国缪斯设计奖最高奖铂金奖的殊荣,彰显了万景百年前瞻的国际视野,也是将国际设计潮流与本土市场的落地经验成功结合的实践结果。
在Jerry看来,无论是新项目还是存量改造,酒店设计的核心都在于对成本的管控,这是对投资者负责的设计态度,也有助于推动客户商业目标的早日达成与商业价值的可持续发展。在他引领下的万景百年,自创立之日起便以专业的设计、严格的成本管控与无限的创意见长。从甲方的诉求与价值出发,为不同项目量身定制最佳的解决方案,打造无限创意。
万景百年成立于2010年,并在北京三里屯、上海黄浦滨江设立分公司。万景百年专注于各类奢华商务、度假酒店、高档会所、商业地产项目的售楼处,各类别墅及康养项目的室内设计服务。 万景百年身为一家具有前瞻性的设计公司,我们高素质设计师曾主持过北美,中东及亚洲国家的各种项目,为洲际、万豪、希尔顿、凯悦等世界级酒店管理集团提供和参与定制设计,更重要的是,我们在保持全球视野的同时,对于国内房地产业务亦有着深刻的理解,将真正有价值、可持续的设计作品交付于众。
万景百年创始人 毕业于加拿大多伦多瑞尔森大学室内设计专业,2010年创立万景百年室内设计公司。曾任HBA合伙人,先后供职于HBA亚特兰大、洛杉矶、迪拜及上海分公司。2009年回国后担任万达集团酒店公司设计部总经理,负责把控万达集团70余家酒店的设计效果并保障21家五星级酒店在2010-2011年顺利开业。 全球化经验,在地化实践,他拥有20年酒店设计的丰富经验与对国内外市场清晰的定位和分析,以可持续发展思维与创意设计方法构建空间美学,在酒店、商业、住宅、办公、康养等项目设计领域建树颇丰。 |
精华推荐
换一换


发表评论0