本帖最后由 麦丰设计 于 2021-10-29 13:44 编辑
Ever since I had him, I don't envy anyone else's love. 少年时光的我们总渴望着电影中的爱情,或轰轰烈烈,或如诗如画,故事的情节总是羡煞旁人,又或是催人泪下。 青春,充满着彩色的乐章,爱情在这漫长的岁月当中,渐渐褪去了锋芒,闪烁在碰撞的酒杯当中、闪烁在渐渐达成的默契当中、闪烁在为你做的每一顿佳肴中,我们小心翼翼地将它放在心尖,甜蜜而安心。 我们的爱情、亲情都将会在我们温馨的家中渐渐发酵,在我为你做的每一件小事,在家里的每一个角落...
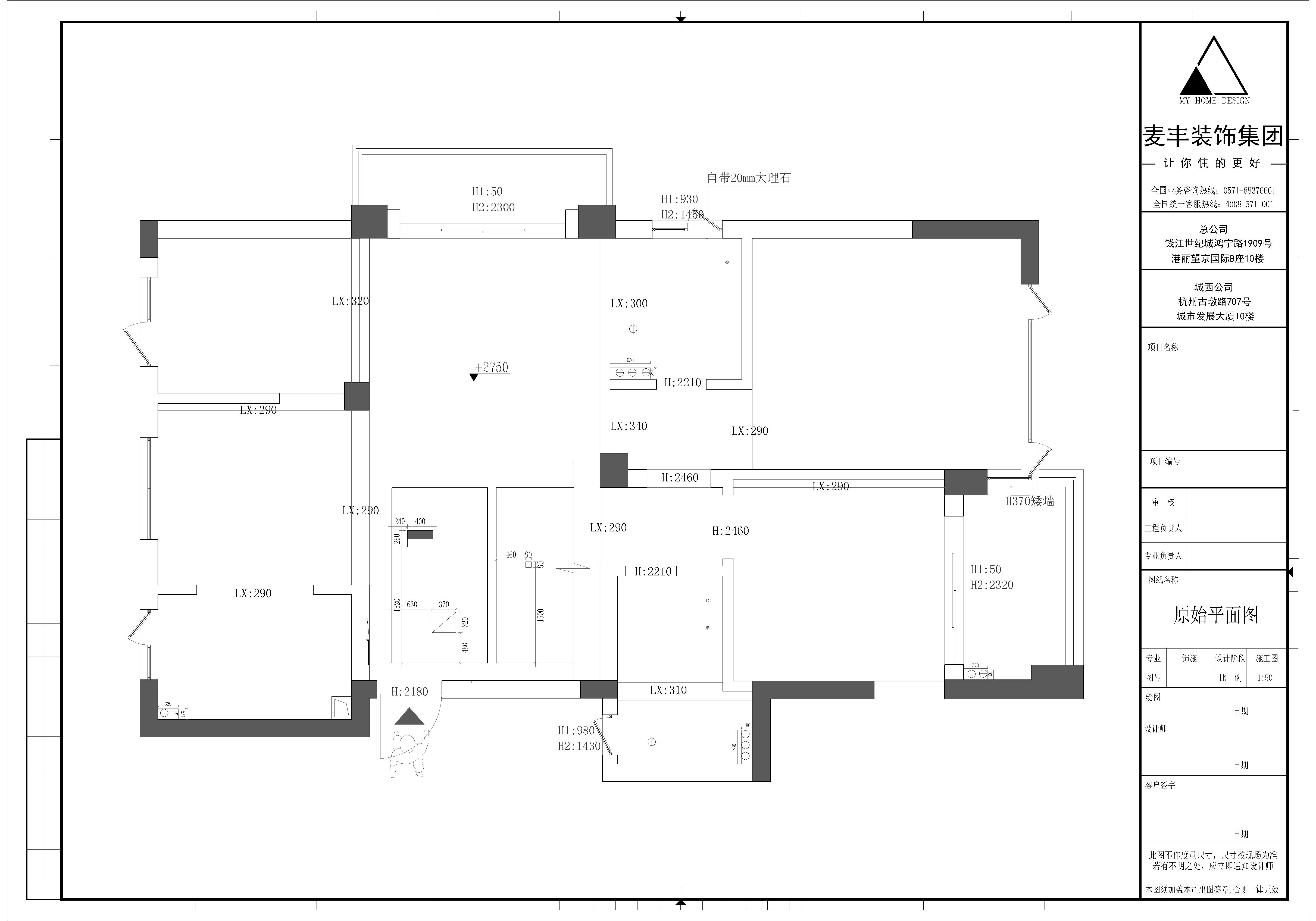
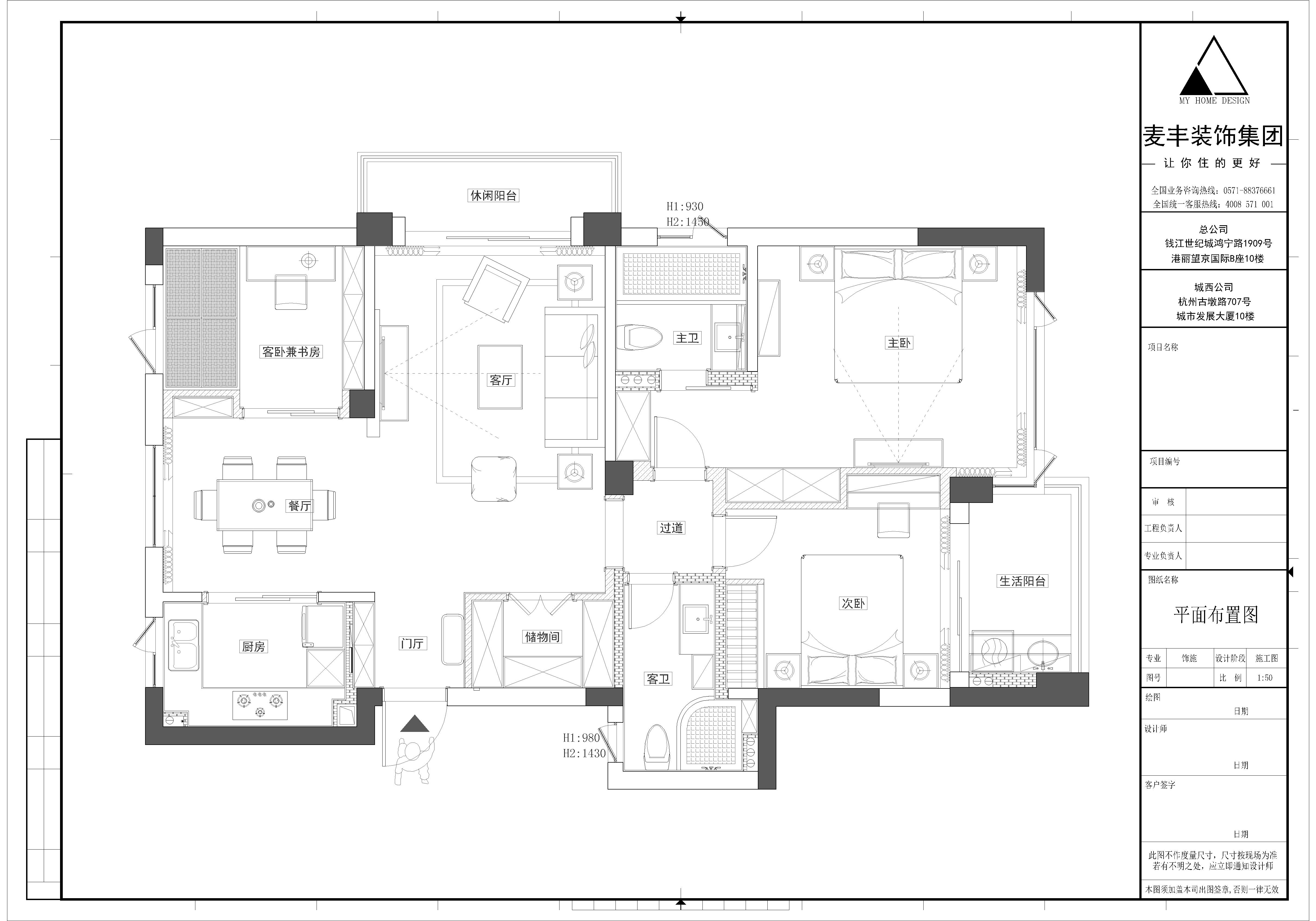
考虑了业主喜欢台式,现代风,喜欢灰色调或者冷暖色调,生活中,一般男业主主厨,平时喜欢音乐,唱歌,弹吉他,游戏,设计师为业主量身定制了具有现代混搭台式风格的设计。 设计方案(户型对比图)
户型改造 1.进户厨房原厚墙改为薄墙,原厨房利用率低,故把改的薄墙往厨房内移,顺势做一个鞋柜,内嵌灯带增加空间感。 2.原入户空白区域增加储物功能做了储藏间,与厨房外墙齐平,朝客厅处做了对开的影响门,这样能借用阳台过来的采光,储物功能也能最大化,进户右手边还能做个背景,下面是进门换鞋区,增加实用性。 3.原客卫厚墙改薄墙,增加储物间利用率,靠次卧面墙内移,让次卧借用客卫空间。 4.次卧与主卧的墙重新改动,一部分往主卧移,给次卧小孩房增加一个书房,书桌背后是主卧的电视背景墙,另一部分给主卧做储物。 5.书房墙体外移,跟榻榻米衔接处朝外做了个餐边柜,为了考虑采光跟通风,书房做了玻璃移门。 |
精华推荐
换一换
-
麦丰设计 2021-10-29 14:27:53
- 玄关处在设计师的整改下,将厚墙改为薄墙,腾出了一个鞋柜的空间,左侧的原木柜配以金属的边框来修饰,米白色柔软的皮质换鞋凳,提升了玄关处的质感,右侧墙壁上大幅黑白与南瓜色拼接的图在视觉上弱化了台式的内敛与沉闷,加强了现代风的视觉效果。远方归家的业主在进门的那一刻,疲惫感瞬间扫尽,等待他的有最爱的人,舒适温馨的家。
- 延伸进来的客厅,满足了业主喜欢的高级感,这里是一家人玩乐又充满欢声笑语的地方,沙发背后直线修饰的咖色墙面与右边的木质隐藏柜色彩统一,在设计师的修改下,木饰面后有增加了一个双开隐形门,推进去后是储藏间,满足了业主对空间,收纳,色调的需求。大面积的落地窗设计配以纱织透光窗帘和深色避光窗帘,加强了隐私性,又保留了采光度。大理石地板设计增强了空间的通透感,阳光倾进,满地生光。
- 浅灰色的皮质沙发搭配了毛绒质感和橙色元素的抱枕,茶几上金属质感的装饰物和水果篮打给原本灰调的空间增加了活泼的感觉,素色地毯上大面积流水般的金色线条与部分如墨画般的点缀增加了客厅的高级感,黑色木质镂空电视柜在视觉上起到了延伸空间的效果,客厅整体现代与台式巧妙糅合,高级不失沉稳。
暖阳洒入,连绿植都在欢快地呼吸,只想在这美好的日子里做自己喜欢的事情,听听音乐,弹弹吉他,与家人、爱宠为伴,尽享天伦。
茶几上的果盘边缘细节处采用花形设计,不仅增加了美观度,还具有实用性,色彩与茶几边沿呼应,整体黑金的搭配打造轻奢的质感。
- 古人云,君子远庖厨,但现在多的是女子十指不沾阳春水,在这个家中就是男业主主厨,这个空间将会是爱意浓浓的展现处,是亲情与爱情升华的地方。素色的整体设计,通透的灰色纹大理石餐桌与皮质灰椅搭配,墙顶排列的黑色几何吊灯与黑色餐桌脚呼应,右侧设计了一个餐边柜满足了业主对收纳的需求,餐厅与书房采用玻璃门,不仅延伸了空间上的视觉效果又提高了书房的采光度,右侧墙面上时钟的极简线条设计给素色墙面增添了装饰效果。
餐厅与客厅相通,大面积的落地窗设计和玻璃门的设计大大提升了空间的通透度与采光度,客厅橙色皮质单椅起到了画龙点睛的作用,整体上让人眼前一亮。
回复举报 - 玄关处在设计师的整改下,将厚墙改为薄墙,腾出了一个鞋柜的空间,左侧的原木柜配以金属的边框来修饰,米白色柔软的皮质换鞋凳,提升了玄关处的质感,右侧墙壁上大幅黑白与南瓜色拼接的图在视觉上弱化了台式的内敛与沉闷,加强了现代风的视觉效果。远方归家的业主在进门的那一刻,疲惫感瞬间扫尽,等待他的有最爱的人,舒适温馨的家。
-
麦丰设计 2021-10-29 13:40:20
本帖最后由 麦丰设计 于 2021-10-29 13:42 编辑
- 设计师在设计书房的时候在空间上进行了整改,墙体外移,榻榻米给书房整体增加了台式风格,榻榻米的衔接处朝外就是餐边柜,玻璃移门和窗台两面透光,将采光度放大到了极致。书桌靠着的灰蓝色墙面静谧而美好,书柜的设计采用木质板材与黑色版块的拼接,书桌也是原木质感,整体空间采用统一的直线线条设计,和家人玩闹之后进入书房,也能很快进入工作和学习的状态,复古的吊灯使空间饱满,体现了业主的品味。
- 设计师在女儿房的设计上考虑业主了孩子还小,大一点之后的使用,女儿房整体采用裸粉、浅黄、白色的巧妙搭配,满满的少女风,墙面上小鹿与兔子的装饰画展现了女孩美好的童年,两侧装饰物搭配轻盈纯白的羽毛,粉色狗狗身披华服,似乎要带着睡梦中的小公主漫游仙境。落地窗的设计是少女的梦想,玫瑰金色搭配素白色窗帘承载着美好,承载着少女的幻想...
- 主卧也是业主情感升温的地方,耳鬓厮磨,互诉心事,安然入梦。主卧的设计同样满足了业主对现代风格混搭台式风的需求,床后咖色墙面与浅色原木地板搭配,视觉上提高了舒适度,入梦更安心。梳妆台线条简约,搭配金属元素,使现代与台式风巧妙融合。独特的吊灯和床头灯设计无形增加了房间的高级感与现代感。
漫天星光璀璨照耀着我们彼此交握的手在整个苍穹下亿万颗星辰间我们显的多么渺小可是渺小的我们却能看见浩瀚的整个苍穹
- 浴室的空间不大,在设计师的整改下,加入了镜柜的设计,增加了储物功能,淋浴间采用全透明玻璃移门设计,增加了采光度,视觉上空间更通透,褐色大理石台面与墙面的设计与木质柜的搭配,使设计风格在这小小的空间中完美地展现出来
案例信息项目地点:紫金府项目类型:住宅项目性质:全包项目面积:120㎡项目风格:现代设计师:麦丰国际设计施工:浙江麦丰装饰设计工程有限公司软装:东麦家居主要用材:墙纸,硬包,不锈钢,木饰面文字编辑:橙子
- 设计师在设计书房的时候在空间上进行了整改,墙体外移,榻榻米给书房整体增加了台式风格,榻榻米的衔接处朝外就是餐边柜,玻璃移门和窗台两面透光,将采光度放大到了极致。书桌靠着的灰蓝色墙面静谧而美好,书柜的设计采用木质板材与黑色版块的拼接,书桌也是原木质感,整体空间采用统一的直线线条设计,和家人玩闹之后进入书房,也能很快进入工作和学习的状态,复古的吊灯使空间饱满,体现了业主的品味。




发表评论2