42m2两房挑空loft设计,求大神建议

仅供分享不做任何商业用途,版权归原作者所有,谢谢配合。

马上注册,结交更多好友,享用更多功能,让你轻松玩转社区。

您需要 登录 才可以下载或查看,没有帐号? 注册

x
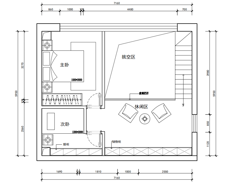
业主二楼需要两个卧室,还要带洗漱和马桶的卫生间。挑空不能取消,二楼卧室都要1.5米床,休闲区可以取消。各位大佬给给建议                                                                                                                                                  原始结构
                                                                            026c19fba05082e84dabd369e08f3fd.png
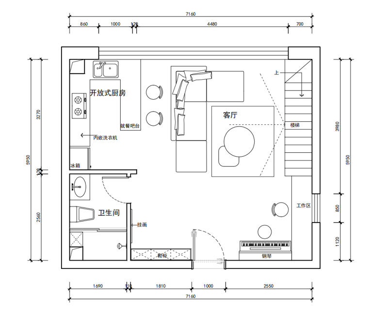
                                                                                                                 一楼
                                                                               ac445abffa86e3863decc7b398cca0b.png
                                                                                                               二楼
                                                                                 4f2319d82d83d791c5911622f69809a.png
精华推荐
换一换

发表评论1

  • 慢热~ 2021-11-23 14:20:41

    感觉二楼客卧有点憋屈了    休闲区都比他大

42m2两房挑空loft设计,求大神建议
拓者推荐
  • CCD--580㎡福州建总雍湾
  • 观享际 x 北谷地产
  • 会讲方案的设计师,行走的印钞机
  • 郝泽伟设计工作室 | 《木朴》
  • 【CCD+SRD】苏州·双湖玫瑰园
  • CCD-华润 CCBD 889㎡设计方案
  • 【召禾设计]天际江景超大平层方案
  • 【WSD世尊】建发·云启玉诸
  • CCD-华润玺宸上院中叠样板间
  • CCD-武汉绿城外滩玫瑰园别墅
  • 2025拓者年费+案例Vip会员说明!
  • 【 拓者年费--CAD图纸】
  • 【 拓者年费--户型方案】
  • 【 拓者年费--豪宅视频】
  • 【 拓者年费--灵感图库】