三月拾春花酿 六月流萤染夏 十月稻陌拾秋 腊月丛中吻雪 一年四季 四季最好都赠你 最美好的生活应该是,有一个不大不小的房子,但却完全属于自己,屋子里有自己喜欢的装饰,还有自己喜欢的人。
本案是坐落在西溪湿地边上的公寓房,走在小区里,温润而又干净的空气,让人好是舒适! 108方的房子,三房两厅的结构,很是规整!小区同户型的业主方案基本一致,但就空间而言,就好比一千个读者,就有一千个哈姆雷特。每个人,对于空间的需求和理解都是不一样的。所以,每个空间,都应根据业主的需求来设定。通过设定刻意的空间,潜移默化影响着自己!
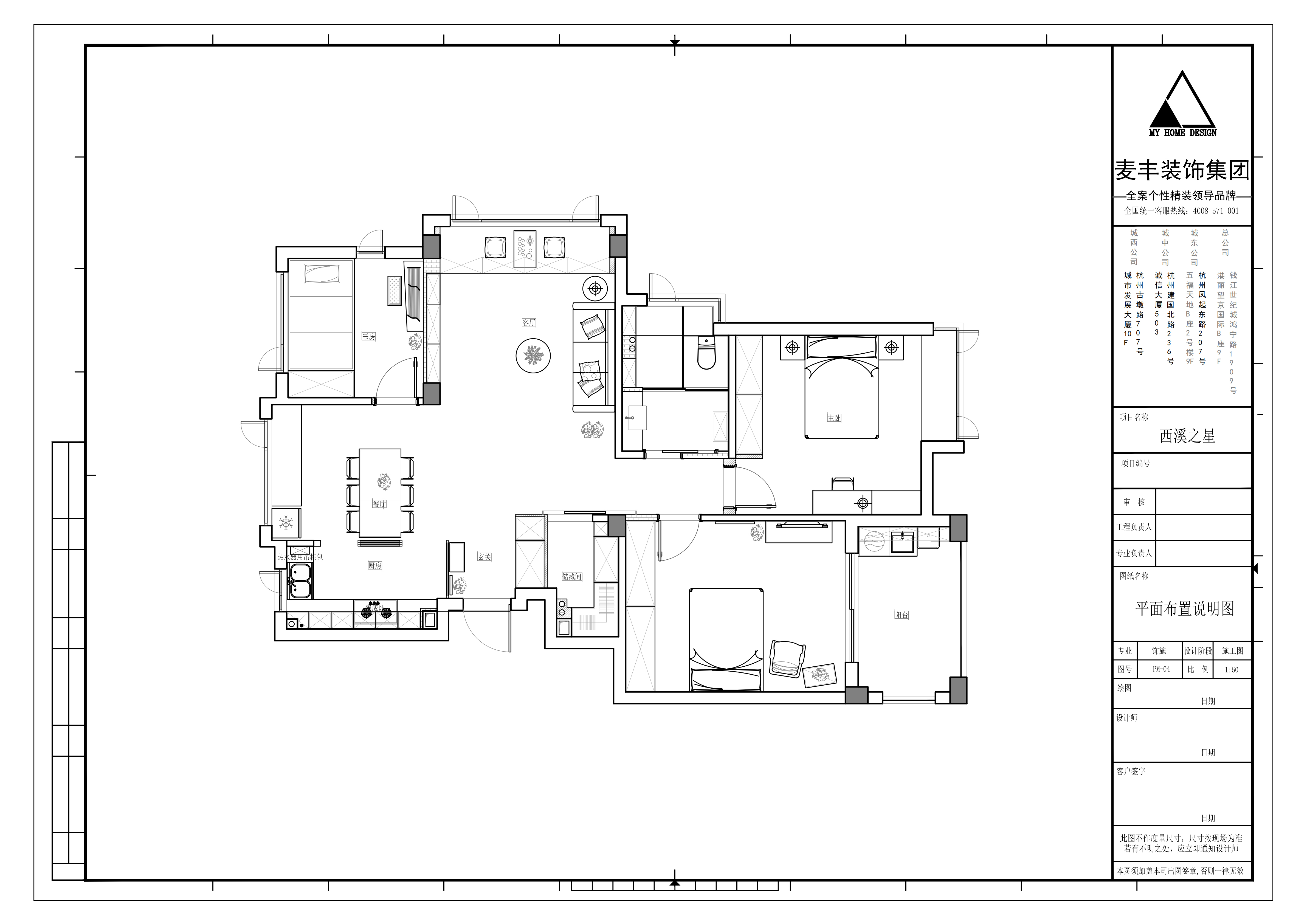
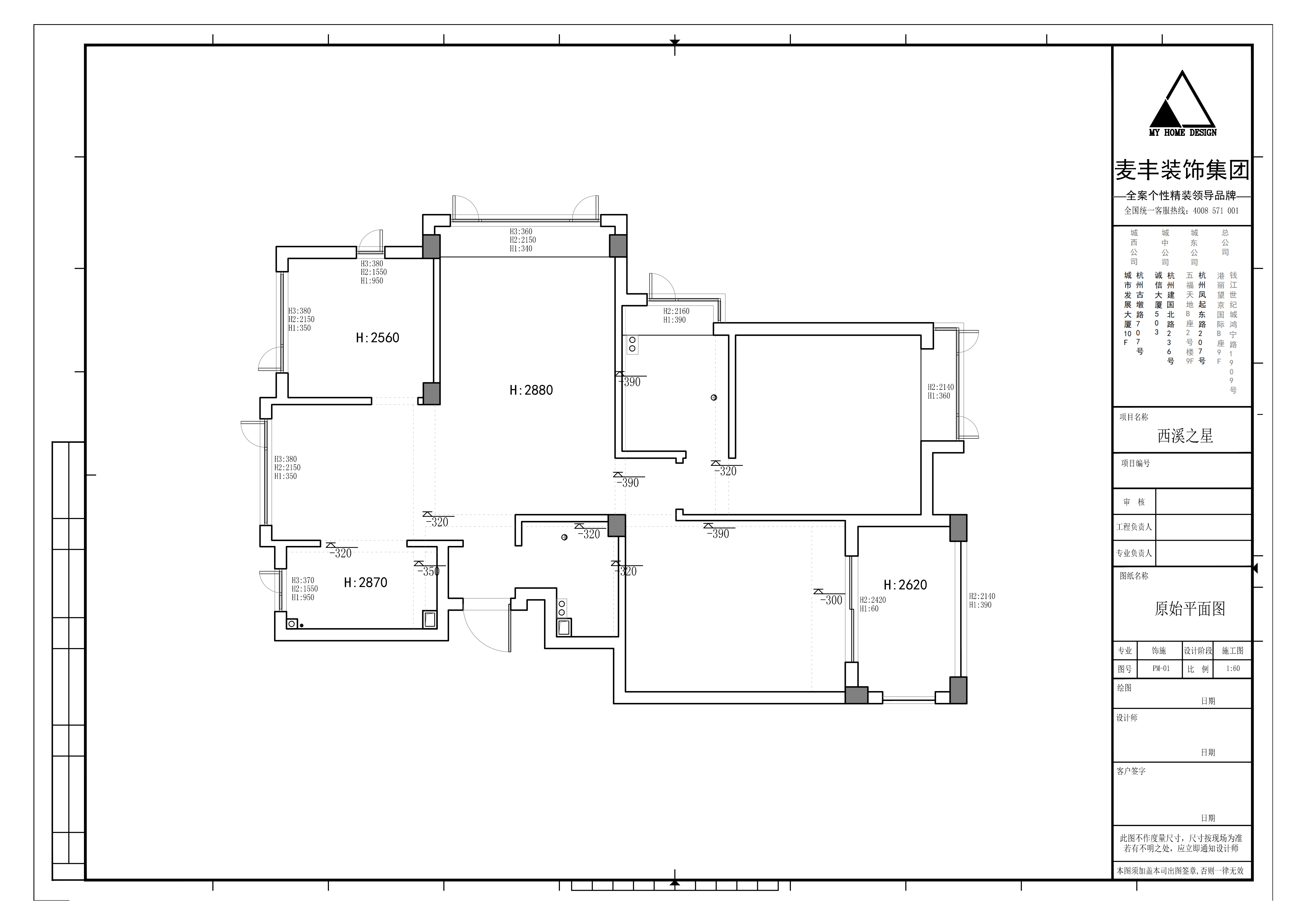
原始户型图: 很规整的三房两厅,采光通风都挺好。略有尴尬的是公卫暗卫,拐角多。主卫有飘窗,占用卫生间大块面积,玄关,餐厅,厨房,原有结构拥挤不通透。 业主基本需求: 需要三个独立的房间;书多,需要有大面的书柜;较多的储物功能 ;供小孩子玩耍的地方;可以大桌子做手工;家里鞋子多;客厅飘窗很长比较浪费空间。 经过长时间的反复沟通,最后方案终于出炉。
平面图改造: 1. 将公共卫生间改为储藏间,原主卫改为公共卫生间。 2. 将原有厨房餐厅,玄关之间的墙体,全部拆除。形成一个开放式空间。 3. 卫生间内部做分隔形成独立空间,解决同时用卫生间的弊端。 4. 客厅和北边房间的墙体拆除,利用墙体厚度做一个整面的大书架。
为解决鞋子摆放问题,玄关左边设置高到12层旋转鞋架。柜子的深度为60cm,旋转鞋架只需 40cm,多出的20cm放在最里面,放置活动层板,空间充分利用的同时,解决了旋转鞋架只能放短帮鞋子的bug! 厨房和玄关间的墙体,改为玻璃隔墙后,通透明亮。换鞋凳是业主精心挑选的,大人不会觉得太低难起来,小孩也不会觉得太高。 |
精华推荐
换一换
-
麦丰设计 2021-11-2 15:44:56
客厅。三人位沙发,圆茶几,留给小朋友更多玩耍空间。原来的飘窗不能拆除,索性加宽,多出来的柜体给小朋友收拾玩具。客厅茶几也可放置在飘窗,品茶,看书,晒太阳,如此惬意!
客厅以书墙代替电视墙。原住所书多,小朋友早上起床,会自己找书阅读,为了在新家延续这样的状态,专门做了这么大的书墙。空间为人服务,同时也能潜移默化的影响着人的生活方式。创造了良好的学习氛围,相信小朋友以后更爱学习。
客厅的木马,就像一个童话,每一个坐上它的人,无不怀着纯真的心和美好的幻想。
餐厅的布置很特别,能够和客厅有互动,也让空间更开阔!因厨房台面不够,餐厅窗边又增加一面西厨,既是餐边柜,又能当厨房使用。1.8m的大餐桌,既能家庭聚会,又能做手工,写作业。
最初方案,厨房和餐厅之间没有任何隔断,更为通透。因奶奶担心油烟问题,便加了玻璃隔断(后期使用集成灶完美解决了这个问题)。好的家居动线,是对人的体谅和关怀。在厨房布局上就考虑到动线问题,三扇可推拉门移门,中间固定,两边往中间移动,以餐桌为中心形成一个岛台形式。动线更加方便,避免来回穿梭。
移门的选择也别有讲究,采用吊轨形式,避免后期地面卫生难以打理,大面的玻璃增加通透感,移门的结构内置在玻璃里面,这样后期擦洗玻璃更为方便。回复举报
-
麦丰设计 2021-11-2 15:41:31
黑白灰为主调,简洁,干净!插座使用灰色盖子,和环境融为一体,同时也能防止油烟。带开关的插座减少了电器拔插。台盆的龙头采用抽拉式,清洗台盆更加方便。
主卧结构合理,也就没有太多改动。陈小姐更喜欢胡桃木的沉稳,内敛。简约的空间搭配简洁的胡桃木家具,带来更清爽的生活方式,这也是生活所应有的模样。
南次卧室是奶奶的房间。奶奶平时喜欢看电视,但考虑会影响小朋友,所以专门在奶奶房间放了电视。精心挑选的舒适沙发,相信奶奶使用起来更加惬意。
原主卫改为公卫,小小的空间内也做到了各区域独立,缓解了一个卫生间的压力。淋浴间的四个壁龛做了细化,花洒左边的高度,用来放置洗漱用品,右边的壁龛有高有低,为家里面大大小小的盆找到了位置。设计,可以给生活带来更多的可能性。它源于生活,而生活也因设计而改变!
案例信息项目地点:杭州·西溪之星项目类型:住宅项目性质:全包M3项目面积:108㎡项目风格:现代设计师:麦丰国际设计施工:浙江麦丰装饰设计工程有限公司软装:东麦家居主要用材:水泥砖,乳胶漆,实木复合地板文字编辑:叶子


发表评论2