MHOO|秋风起,北雁南归 150㎡现代自然风

仅供分享不做任何商业用途,版权归原作者所有,谢谢配合。

马上注册,结交更多好友,享用更多功能,让你轻松玩转社区。

您需要 登录 才可以下载或查看,没有帐号? 注册

x
    good24.jpg    good28.jpg    good20.jpg


夏天的翠绿葱茏逐渐褪色
秋的五彩缤纷潜入街头巷尾
三两秋事,听我与你娓娓道来
......

ABOUTTHEDESIGN
关于设计


喜欢烘焙,希望有个大厨房

做个简单的居家环境,能够有足够的空间给小朋友玩耍

希望自己有个手作的书房,同时兼客房

一点点实现自己的dreamhouse

Before
6a339a2abc713d3632c8824ea288c82.jpg
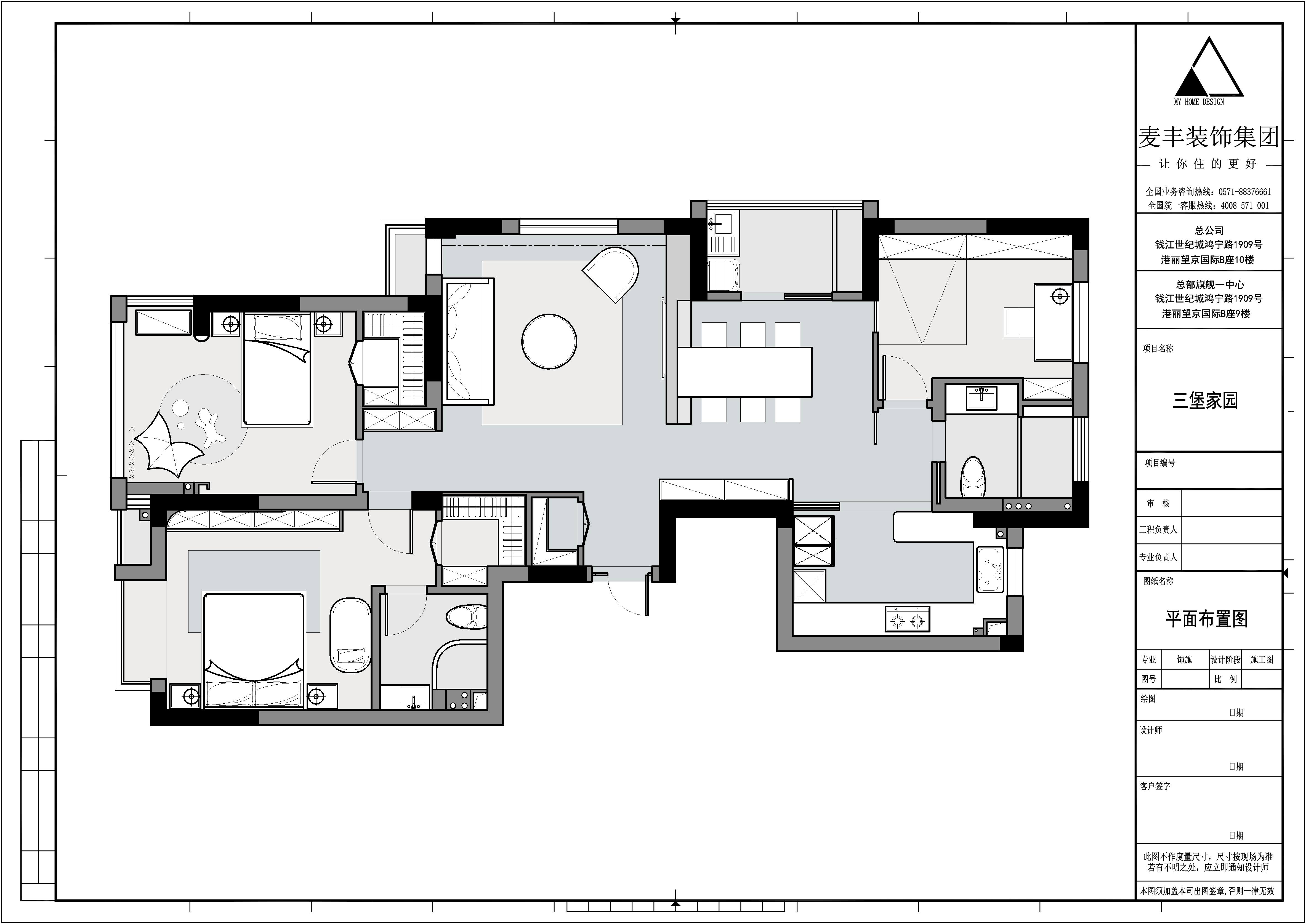
/原始户型图

After
3fb0bd733b4ca5818f04e46a7257d76.jpg
/平面布置图

原户型三房结构,房间宽敞,但收纳少。在平面规划的时候我们进行收纳分类并且增加了收纳空间。
精华推荐
换一换

发表评论2

  • 麦丰设计 2021-11-6 16:11:08

    ENTRANCE
    玄关
    good14.jpg
    需求感越多,满足感却越来越少
    不如遵循简单的生活方式
    回归更纯粹的生活

    LIVING ROOM
    客厅
    good1.jpg

    设计师为业主确定了
    较为素雅的色彩基调
    在此基础上
    又非常注重色彩的微妙变化
    浅咖色的皮质沙发
    搭配绿植和灰色地毯
    在自然朴素的基调中
    体现居家的温情

    good4.jpg
    空间中加了些许留白
    横平竖直的线条勾勒的配饰与家具
    配以温润的木质
    共同构成了居住者的理想之居
    good13.jpg
    客厅拥有充足的采
    不仅是大人们交谈、休息的场所
    也是陪伴孩子玩乐的空间
    good12.jpg

    good10.jpg

    good15.jpg

    good6.jpg

    餐厅与客厅之间以电视墙相隔
    利用满目清新的元素
    来营造用餐的仪式感

    good19.jpg

    生活的温柔
    就是让时间暂停
    和家人一起
    谈天说地 享受美食

    good29.jpg

    KITCHEN
    厨房
    good36.jpg

    厨房选择木质的橱柜,质朴又温馨
    采用U型布局
    人体工程学微动线的设计,洗切炒一体化
    美观且实用

    good18.jpg

  • 麦丰设计 2021-11-6 15:58:01

    本帖最后由 麦丰设计 于 2021-11-6 16:00 编辑

    STUDY
    书房
    good32.jpg
    木质的润感特别适合书房
    通过对光、色、形、材等元素的平衡运用
    创造出功能性以外的品味空间

    BEDROOM
    卧室
    good37.jpg
    好的睡眠不用太复杂
    摒弃多余,去繁从简
    几笔洗练的线条
    就能勾勒出一种返璞归真的意境,
    构成只属于居住者的休憩空间。


    TOILET
    卫生间
    good35.jpg
    卫生间采用同色墙地砖
    悬挂式洗手台,方便打理
    与整屋风格保持干净统一,调性宜人


    案例信息丨Case Information
    项目地点:三堡家园
    项目类型:住宅
    项目性质:全包
    项目面积:150㎡
    项目风格:现代自然风
    设计师:麦丰国际设计
    施工:浙江麦丰装饰设计工程有限公司
    软装:东麦家居
    主要用材:哑光地砖、木饰面、实木地板、水泥漆
    摄影:林峰
    文字编辑:cc.

MHOO|秋风起,北雁南归 150㎡现代自然风
拓者推荐
  • CCD--580㎡福州建总雍湾
  • 观享际 x 北谷地产
  • 会讲方案的设计师,行走的印钞机
  • 郝泽伟设计工作室 | 《木朴》
  • 【CCD+SRD】苏州·双湖玫瑰园
  • CCD-华润 CCBD 889㎡设计方案
  • 【召禾设计]天际江景超大平层方案
  • 【WSD世尊】建发·云启玉诸
  • CCD-华润玺宸上院中叠样板间
  • CCD-武汉绿城外滩玫瑰园别墅
  • 2025拓者年费+案例Vip会员说明!
  • 【 拓者年费--CAD图纸】
  • 【 拓者年费--户型方案】
  • 【 拓者年费--豪宅视频】
  • 【 拓者年费--灵感图库】