「给平凡日子的艺术·留白」 我曾经失落失望失掉所有方向 直到看见平凡才是唯一的答案 ——平凡之路 ABOUT THE DESIGN 关于设计 本案业主是一位非常有情怀的青年导演,享受生活,喜欢用画笔记录灵感,家里还有两只可爱的毛孩子。 硬装最初确定的是极简的方向,设计线条以“大框架”的方式呈现干净简洁感,但艺术存在偶然性,业主生活中的故事还是把家里打造成眼前这样生气勃勃的样子,脱离了原本没有烟火气的感觉,兼顾了艺术与生活。 Before
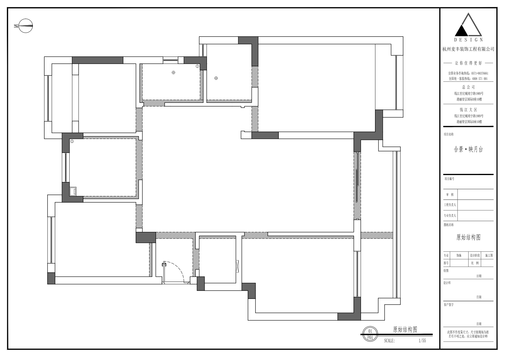
/原始户型图 本案是非常好的四叶草户型,客户目前是一个人居住,我们根据他的居住情况进行户型优化。 After
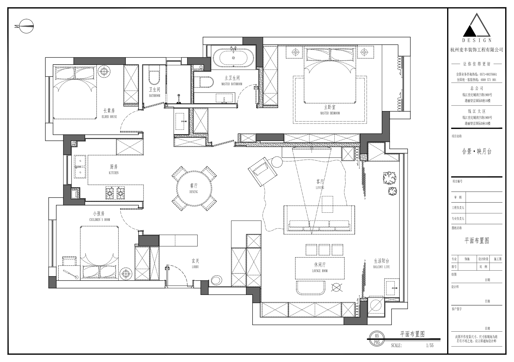
/平面布置图 四叶草的四房保留了北面两个小房间,主卧优化了配置,另一个南面房间融入公共区域,打造成业主使用率比较高的书房办公,入户在保障了同等储物量的收纳后打造了一个新的入户仪式,就有了眼前的呈现。 |
精华推荐
换一换
-
麦丰设计 2021-11-16 10:29:31ENTRANCE玄关
打破固有思维,创造全新的入户仪式。阶梯式设计融合了展示柜和换鞋凳,让空间自在融合。DINING HALL餐厅
餐厅位于空间中心。设计师利用顶面弧线造型,在视觉上将客厅,餐厅与工作区进行了划分,打破了普通平顶的沉闷感。
从各处淘来的家具单品,组合成眼前别具个性的用餐空间。时尚吊灯、风格迥异的餐椅、造型曼妙的花瓶,一切元素搭配都如此融洽协调,烘托出空间的质感。LIVING ROOM客厅
室内空间以白色为基调,营造出静谧安宁的居家氛围,琥珀与焦糖色的融入丰富了色彩层次,为冷静的空间带来温度感。
回复举报
-
麦丰设计 2021-11-16 10:19:52
本帖最后由 麦丰设计 于 2021-11-16 10:23 编辑
STUDY书房
/屋子的角角落落,皆是生活的藏宝箱。
处理好空间的每一处,让每一件艺术品都能在其所处的位置,继续向访客诉说它的奇妙故事。
原先次卧的位置做成业主使用率较高的工作区。这里存放着业主喜爱的手办、工艺品、挂画、书籍等,让人在惬意放松的场域里工作的同时,寻回生活的本味。
CAT猫
MASTER BEDROOM主卧
主卧延续整体的大白墙设计,流动感较强的弧形元素令空间得以延伸,舒缓安谧的气息氤氲出沉沉的睡意...
LITTLE BING小景
未完待续···
案例信息丨Case Information项目地点:合景映月台项目类型:住宅项目性质:全包项目面积:120㎡项目风格:现代风格设计师:麦丰国际设计施工:浙江麦丰装饰设计工程有限公司软装:东麦家居主要用材:不锈钢、油漆板、双色地板、镜面摄影:林峰文字编辑:BQ.




发表评论2